
Predaj bytu 3+kk • 91 m² bez realitkyBerlin Wilmersdorf Berlin 10715
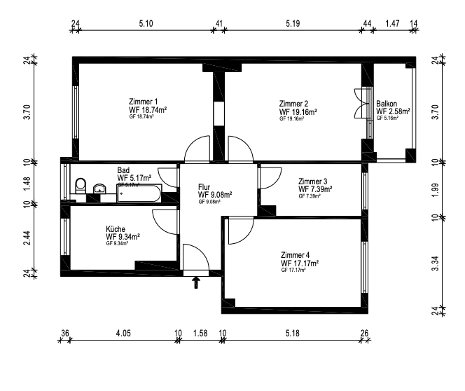
Predávaný byt sa nachádza v 1. nadzemnom podlaží starostlivo udržiavaného viacrodinného domu z približne roku 1929. Ide o 3,5-izbový byt so zastavanou plochou cca 91 m², pozostávajúci z obývacej izby, dvoch ďalších plnohodnotných izieb, jednej polovičnej izby (napríklad vhodnej na prácu alebo ako šatník), kuchyne, kúpeľne, chodby a balkóna orientovaného na západ.
Byt bol v roku 2020 komplexne zrekonštruovaný. V rámci rekonštrukcie bola kompletná elektroinštalácia vymenená, vrátane rozvádzania LAN prípojok v niekoľkých miestnostiach. Okrem toho bola kúpeľňa úplne zmodernizovaná, vrátane všetkých vodovodných rozvodov. V celom byte bol položený kvalitný vinylový podlahový kryt a všetky steny boli hladko omietnuté.
Vstavaná kuchyňa s indukčnou varnou doskou bola novoinštalovaná a je zahrnutá v kúpnej cene. V kúpeľni, kuchyni a chodbe boli inštalované stropné svetlá. Výbava je hodnotená ako prémiová.
K bytu patrí samostatná suterénna miestnosť, ktorá ponúka dodatočný úložný priestor.
Voliteľne existuje možnosť prevzatia existujúcej nájomnej zmluvy na parkovacie miesto v garáži. Aktuálny mesačný nájom činí 65,00 €. Prevzatie podlieha schváleniu prenajímateľom alebo spoločenstvom vlastníkov.
Byt sa nachádza v zrekonštruovanom a okamžite nastahovateľnom stave. Ďalšie investície momentálne nie sú potrebné.
Predaj prebieha bez provízie pre kupujúceho.
Ponúkaný byt sa nachádza v žiadanej lokalite Berlin-Wilmersdorf, v etablovanej štvrti City West, ktorá už roky vyniká vysokou kvalitou bývania, stabilným dopytom a ustálenou infraštruktúrou. Poloha spája centrálne umiestnenie s pokojným a udržiavaným obydlím.
Sama ulica je pokojná prístupová ulica s minimálnym tranzitom. Okolie je charakterizované klasickou berlínskou obytnou zástavbou, vysokým podielom vlastníkov a celkovo príjemnou susedskou atmosférou.
Všetky zariadenia dennej potreby sú pešo alebo v krátkej vzdialenosti. Patrí sem supermarket, pekárne, týždenné trhy, lekárne, lekári, ako aj rôzne služby. Ponuka je doplnená množstvom kaviarní a reštaurácií, najmä v oblasti Bundesallee a v okolí Prager Platz.
Dopravné spojenie je veľmi dobré. V krátkej vzdialenosti sa nachádzajú linky metra U7 a U9, ktoré poskytujú priamu dopravu do centrálnych berlínskych štvrti. Okrem toho je dobre prístupná aj okružná S-Bahn (S41 / S42), ktorá umožňuje rýchle a flexibilné prepojenie takmer všetkých berlínskych okresov. Viaceré autobusové linky, ako aj blízkosť mestskej cesty, dopĺňajú dopravnú infraštruktúru.
Pre rodiny ponúka lokalita širokú škálu materských škôl, základných škôl a ďalších vzdelávacích inštitúcií v bezprostrednom okolí. Možnosti voľnočasových a rekreačných aktivít sú k dispozícii v blízkych zelených plochách, ako sú Volkspark Wilmersdorf, Rudolph-Wilde-Park a Fennsee.
Bývanie v Berlin-Wilmersdorf patrí medzi hodnotovo najstabilnejšie oblasti City West. Kombinácia ustálenej infraštruktúry, veľmi dobrého spojenia, pokojného obydlia a obmedzenej ponuky robí túto lokalitu obzvlášť atraktívnou pre vlastníkov s dlhodobou perspektívou.
Parametre nehnuteľnosti
| Vek | Nad 50 rokov |
|---|---|
| Stav | Po rekonštrukcii |
| Poschodie | 1. poschodie z 6 |
| PENB | C - Hospodárne |
| Cena za jednotku | 6 538 € / m2 |
| Dostupné od | 24. 1. 2026 |
|---|---|
| Dispozícia | 3+kk |
| Číslo inzerátu | 984211 |
| Úžitková plocha | 91 m² |
Čo táto nehnuteľnosť ponúka?
| Balkón | |
| MHD 3 minúty pešo |
| Pivnica |
V okolí nehnuteľnosti nájdete
Stále hľadáte to pravé?
Nastavte si strážneho psa. Ponuky vybrané na mieru dostanete súhrnne 1× denne e-mailom. S Premium profilom máte po ruke rovno 5 strážcov a keď sa niečo objaví, informujú vás obratom.
















