
Predaj bytu 3+1 • 80 m² bez realitkyBerlin Moabit Berlin 10555
Tento kvalitný, približne 80 m² veľký 3-izbový penthouse na poslednom poschodí so strešnou terasou sa nachádza v 6. poschodí udržiavaného obytného domu a vznikol v rámci navýšenia v roku 1998. Výnimočná výška stropov okolo 3,30 m a nezaslnený výhľad na rieku Spree dodávajú bytu pravý charakter penthouse.
Súkromná strešná terasa s priamym vstupom z obývacej časti a elektrickými markízami ponúka exkluzívny vonkajší priestor s výhľadom na rieku Spree. Byt nie je prenajímaný, je okamžite dostupný a je veľmi slnečný. Výťah vedie až do 5. poschodia. K dispozícii je garáž a vlastná pivnica.
Pokojná a zároveň mimoriadne centrálná poloha – len niekoľko metrov od rieky Spree a promenády.
Bez provízií – priamy predaj od vlastníka.
Byt sa nachádza v žiadanej lokalite na Wikingerufer v berlínskej štvrti Tiergarten, priamo pri rieke Spree. Okolie je pokojné, zelené a zároveň mimoriadne centrálné s vynikajúcim dopravným spojením. Tiergarten je vzdialený približne 5 minút, ako aj Potsdamer Platz, hlavná stanica v Berlíne a Kurfürstendamm, pričom každý je vzdialený približne 10 minút. Letisko Berlin Brandenburg je vzdialené približne 30 minút jazdy.
Technická univerzita v Berlíne je vzdialená približne 10 minút, Komische Oper Berlin a Deutsche Oper Berlin sú dosiahnuteľné za približne 10–15 minút. Okolie je poznačené pamätnými bývalými priemyselnými a kancelárskymi budovami, ktoré dávajú štvrti výnimočný mestský charakter.
Byt disponuje priestrannými presklenými stenami, ktoré zabezpečujú svetlú a otvorenú atmosféru. Podlahové kúrenie poskytuje príjemný komfort vo všetkých obytných priestoroch. Súkromná terasa s voľným výhľadom na rieku Spree má rozlohu približne 12 m².
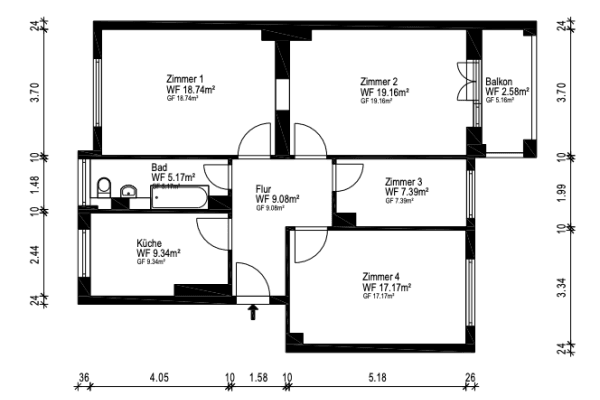
Byt je čerstvo zrekonštruovaný a novo natretý. Nové podlahové krytiny v byte, ako aj nový povrch terasy, zdôrazňujú udržiavaný stav. Okrem toho, byt zaujme veľmi premyslenou dispozíciou a funkčným pôdorysom, ktorý optimalizuje využitie priestorov. Pokojná spálňa s oknami od podlahy, klasická kúpeľňa s denným svetlom a vaňou, ako aj samostatná kuchyňa s denným svetlom dopĺňajú ponuku priestorov a zdôrazňujú kvalitné vybavenie.
Exkluzívny 3-izbový penthouse s nezaslneným výhľadom na rieku Spree, súkromnou terasou, garážou a pivnicou v centrálnom vodnom prostredí. Ideálny ako bývanie s vysokou kvalitou života, ale aj ako atraktívna investičná príležitosť. Prehliadka je možná po dohodnutí. Bez provízie (súkromný predaj).
Levan Khutchua
Tel kancelária: 030 / 257 624 60
Tel mobil: 0177 / 526 36 36
levan.khutchua(at)gmail.com
Telefónne služby:
Po-Sob 10:00-18:00
Parametre nehnuteľnosti
| Vek | Nad 50 rokov |
|---|---|
| Stav | Po rekonštrukcii |
| Číslo inzerátu | 983975 |
| Úžitková plocha | 80 m² |
| Dostupné od | 24. 1. 2026 |
|---|---|
| Dispozícia | 3+1 |
| PENB | B - Veľmi úsporné |
| Cena za jednotku | 8 125 € / m2 |
Čo táto nehnuteľnosť ponúka?
| Balkón | |
| Garáž | |
| MHD 1 minúta pešo |
| Pivnica | |
| Výťah | |
| Terasa |
V okolí nehnuteľnosti nájdete
Stále hľadáte to pravé?
Nastavte si strážneho psa. Ponuky vybrané na mieru dostanete súhrnne 1× denne e-mailom. S Premium profilom máte po ruke rovno 5 strážcov a keď sa niečo objaví, informujú vás obratom.































