
Predaj bytu 2+1 • 49 m² bez realitky, Bádensko-Wurttembersko
, Bádensko-WurttemberskoMHD 1 minúta pešo • ParkovanieVyužite teraz výhodu Early-Bird ceny a ušetrite 30.000 €: rezervujte si byt do 31.12.2025 a zabezpečte si cenovú výhodu – zaplatíte 240.000 € namiesto 270.000 €.
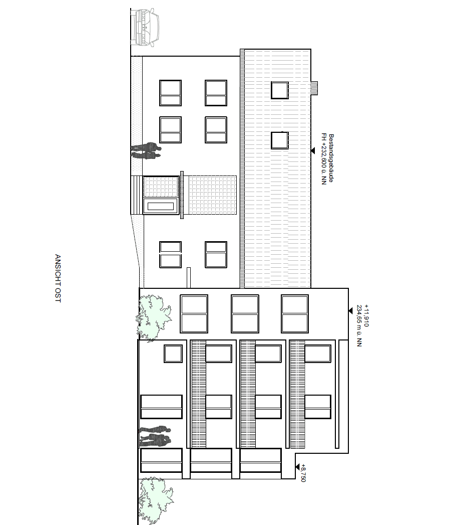
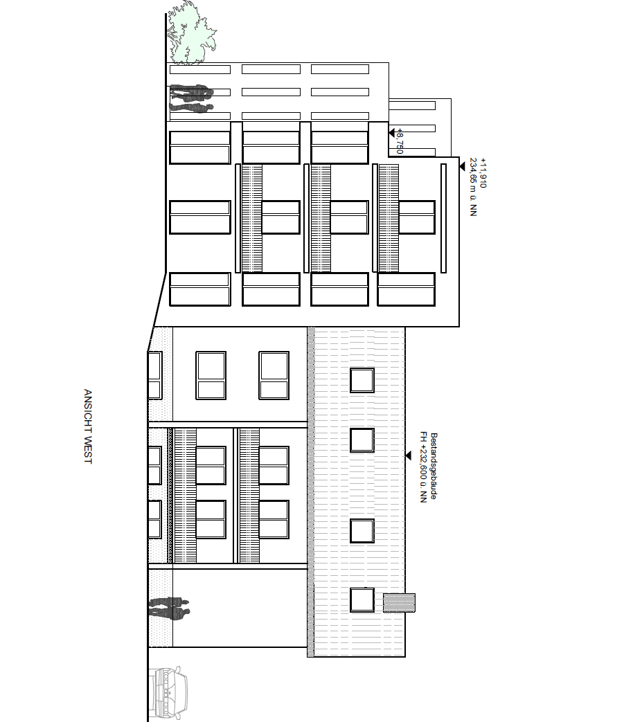
Neďaleko kúpeľného parku obce Bad Bellingen vzniká vedľa staršej budovy samostatný novostavbový projekt pozostávajúci zo siedmich bytových jednotiek. Oba byty v prízemí, na 1. poschodí a na 2. poschodí majú obytnú plochu medzi 48 m² a 49 m² a obsahujú dve izby. Penthouse byt na 3. poschodí sa vyznačuje ďalšou spálňou a obytnou plochou presahujúcou 80 m². Všetky byty profitujú vďaka množstvu okien od podlahy až po strop, ktoré umožňujú jasné a príjemné bývanie. Premyslený dispozícia s otvoreným obývacím, kuchynským a jedálenským priestorom podčiarkuje moderný charakter projektu. Kúpeľne vo všetkých bytoch sú vybavené bezbariérovou sprchou – tri z nich sú orientované na východ a veľká kúpeľňa v podkroví má navyše okno.
Byty v prízemí sú bezbariérovo prístupné, a preto sú ideálne pre seniorské páry. Na veľkej terase si môžete vychutnať buď ranné, alebo večerné slnko. Byty vo vyšších poschodiach sú prístupné cez schodisko, pričom počet schodov je kvôli malému počtu poschodí prehľadný. Tieto jednotky majú namiesto terasy balkón, pričom penthouse byt disponuje dokonca dvoma balkónmi.
Bad Bellingen je obec s viac ako 5 000 obyvateľmi, nachádzajúca sa na severozápade okresu Lörrach, presne v trojuholníku medzi Nemeckom, Francúzskom a Švajčiarskom. Vjazd na diaľnicu č. 5 je vzdialený iba 10 minút jazdy, čo umožňuje dojazd do Lörrach za 30 minút, do Mülhouse za 40 minút a do Basle tiež za 30 minút. Basel navyše disponuje medzinárodným letiskom. Dopravnú sieť dopĺňajú regionálne a expresné vlaky na riečnej trati, pričom Bad Bellingen má vlastnú vlakovú stanicu.
Od 50. rokov 20. storočia, kedy boli objavené termálne pramene, sa obec presadila ako kúpeľné a turistické miesto s medzinárodnou reputáciou. Z toho výrazne profitujú miestna ekonomika aj infraštruktúra. V okolí kúpeľného parku, ktorý je pešo dostupný z novostavby a ponúka množstvo voľnočasových aktivít – ako je obľúbený Balinea Thermalbad, cestička na chôdzu naboso, ihrisko alebo fitness trasa – nájdete rôzne obchody dennej potreby, veľký supermarket a širokú ponuku gastronomických zážitkov. Priľahlý Rýn a nedaleký les Hertinger navyše rozširujú prírodnú rozmanitosť.
- Udržateľná stavba podľa energeticky efektívneho štandardu KfW 40
- Podlahové kúrenie vo všetkých miestnostiach (vzduch-voda s tepelným čerpadlom)
- Moderný navrhnutý obytný koncept s otvorenou kuchyňou
- Plastové okná od podlahy až po strop (trojsklo) s elektrickými hliníkovými žalúziami
- Podlahová krytina: parketová podlaha v obývacej a spálňovej časti a dlaždice 60x60 cm v kúpeľni
- Obklad stien: malírska tkanina v obývacej a spálňovej časti a dlaždice 60x30 cm v kúpeľni
- Nadčasový dizajn kúpeľne s bezbariérovou sprchou, oknom a sanitárnym vybavením či armaturami renomovaných firiem Duravit a Hansgrohe
Parametre nehnuteľnosti
| Vek | Nad 50 rokov |
|---|---|
| Stav | Novostavba |
| Číslo inzerátu | 981080 |
| Cena za jednotku | 4 490 € / m2 |
| Dostupné od | 1. 12. 2026 |
|---|---|
| Dispozícia | 2+1 |
| Úžitková plocha | 49 m² |
Čo táto nehnuteľnosť ponúka?
| Bezbariérový prístup | |
| Parkovanie | |
| Terasa |
| Pivnica | |
| MHD 1 minúta pešo |
V okolí nehnuteľnosti nájdete
Stále hľadáte to pravé?
Nastavte si strážneho psa. Ponuky vybrané na mieru dostanete súhrnne 1× denne e-mailom. S Premium profilom máte po ruke rovno 5 strážcov a keď sa niečo objaví, informujú vás obratom.


















