
Predaj bytu 2+1 • 49 m² bez realitky, Bádensko-Wurttembersko
, Bádensko-WurttemberskoMHD 1 minúta pešo • ParkovanieVyužite výhodu early-bird ceny a ušetrite 30 000 €: Rezervujte si byt do 31.12.2025 a získajte cenovú výhodu 240 000 € namiesto 270 000 €.
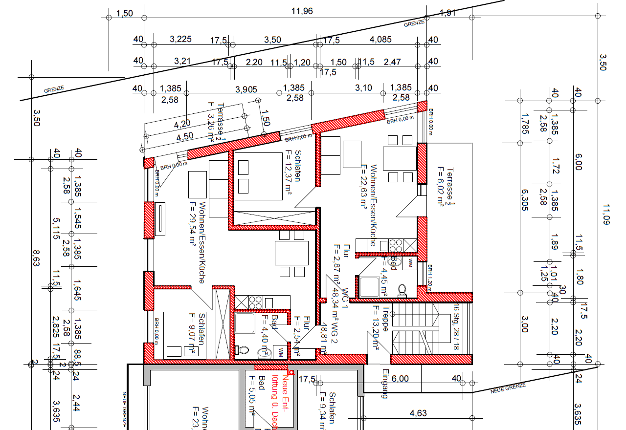
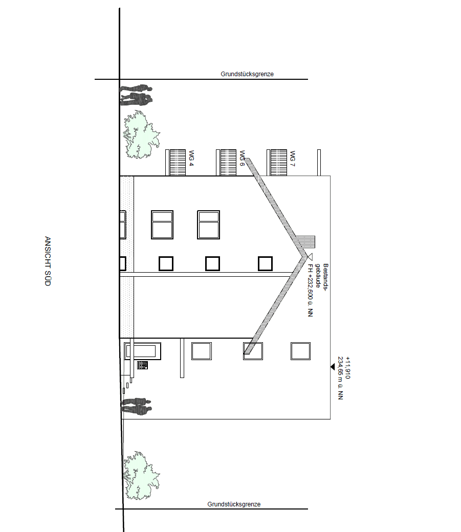
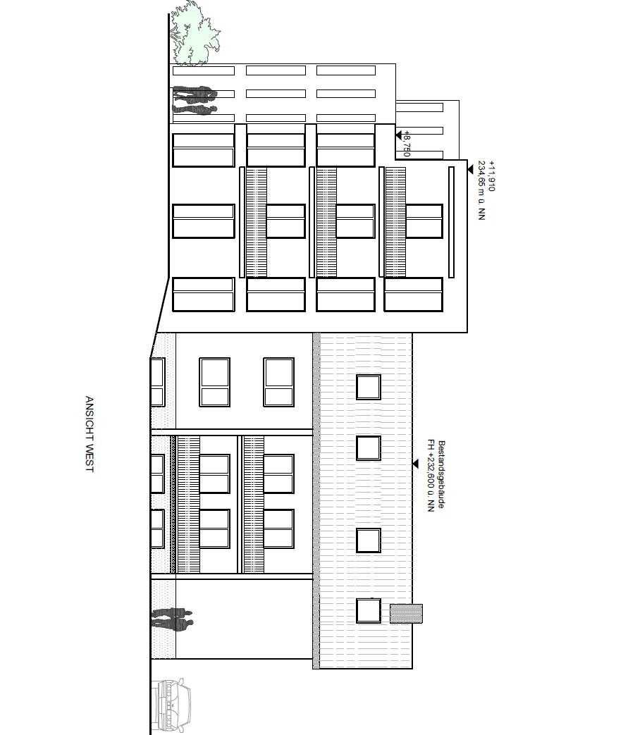
Neďaleko areálu kúpeľného parku obce Bad Bellingen vzniká pri staršej budove samostatný nový projekt pozostávajúci zo siedmich bytových jednotiek. Dva byty v prízemí, v 1. a 2. poschodí majú obytnú plochu medzi 48 m² a 49 m² a pozostávajú zo dvoch miestností. Penthouse byt v 3. poschodí sa vyznačuje ďalšou spálňou a obytnou plochou presahujúcou 80 m². Všetky byty profitujú z množstva podlahových okien, ktoré zaisťujú svetlú a príjemnú atmosféru bývania. Premyslené pôdorysy s otvoreným obývacím, kuchynským aj jedálenským priestorom zdôrazňujú moderný charakter projektu. Kúpeľne vo všetkých bytoch sú vybavené bezbariérovou sprchou – tie tri byty s východnou orientáciou a veľká kúpeľňa v podkroví navyše disponujú oknom. Byty v prízemí sú bezbariérové a preto sú ideálne napríklad pre seniorský pár. Na veľkej terase si možno vychutnať buď ranné, alebo večerné slnečné lúče. Byty na poschodiach sú prístupné po schodisku, pričom počet schodov je vzhľadom na menší počet poschodí primeraný. Tieto jednotky majú namiesto terasy balkón, penthouse byt dokonca disponuje dvoma balkónmi.
Bad Bellingen je obec s viac ako 5 000 obyvateľmi na severozápade okresu Lörrach, a nachádza sa teda priamo v trojhraní Nemecko–Francúzsko–Švajčiarsko. Prístup na diaľnicu č. 5 je vzdialený len 10 minút jazdy, čo umožňuje dojazd do mesta Lörrach za 30 minút, do Mülhausenu za 40 minút a Basel taktiež za 30 minút. Basel má navyše svoje medzinárodné letisko. Dopravnú sieť dopĺňajú regionálne a expresné vlaky na trase Rýn, pričom Bad Bellingen má vlastnú železničnú stanicu.
Obec sa odobjavila ako kúpeľné a turistické stredisko na celonárodnej úrovni už od 50. rokov minulého storočia, kedy boli objavené termálne pramene. Z toho profituje aj miestna ekonomika, a tým aj infraštruktúra obce. V areáli kúpeľov, ktorý je pešo dostupný od nového projektu a ponúka množstvo voľnočasových aktivít, ako je obľúbené termálne kúpalisko Balinea, chodník naboso, ihrisko či fitness dráha, nájdete rôzne obchody dennej potreby, veľký supermarket a gastronomické reštaurácie. Priľahlý Rýn a nedaleký Hertinger Wald navyše rozširujú prírodnú rozmanitosť.
• Udržateľná výstavba v energeticky úspornom štandarde KfW 40
• Podlahové kúrenie vo všetkých miestnostiach (vzduch-voda tepelné čerpadlo)
• Moderný obytný koncept s otvorenou kuchyňou
• Podlahové plastové okná (trojnásobne zasklené) s elektrickými hliníkovými rolietovými žalúziami
• Podlahová krytina: parketová podlaha v obývacej a spálňovej časti a dlažba 60x60 cm v kúpeľni
• Nástenná krytina: malervlies v obývacej a spálňovej časti a dlažba 60x30 cm v kúpeľni
• Nadčasový dizajn kúpeľne s bezbariérovou sprchou, oknom a sanitárnym vybavením či armaturami renomovaných firiem Duravit a Hansgrohe
Parametre nehnuteľnosti
| Vek | Nad 50 rokov |
|---|---|
| Stav | Novostavba |
| Číslo inzerátu | 981079 |
| Cena za jednotku | 4 490 € / m2 |
| Dostupné od | 1. 12. 2026 |
|---|---|
| Dispozícia | 2+1 |
| Úžitková plocha | 49 m² |
Čo táto nehnuteľnosť ponúka?
| Bezbariérový prístup | |
| Parkovanie | |
| Terasa |
| Pivnica | |
| MHD 1 minúta pešo |
V okolí nehnuteľnosti nájdete
Stále hľadáte to pravé?
Nastavte si strážneho psa. Ponuky vybrané na mieru dostanete súhrnne 1× denne e-mailom. S Premium profilom máte po ruke rovno 5 strážcov a keď sa niečo objaví, informujú vás obratom.


















