
Predaj bytu 2+1 • 49 m² bez realitky, Bádensko-Wurttembersko
, Bádensko-WurttemberskoMHD 1 minúta pešo • ParkovanieTeraz využite výhodu early-bird ceny a ušetríte 30.000 €: rezervujte si byt do 31.12.2025 a zabezpečte si cenovú výhodu 230.000 € namiesto 260.000 €.
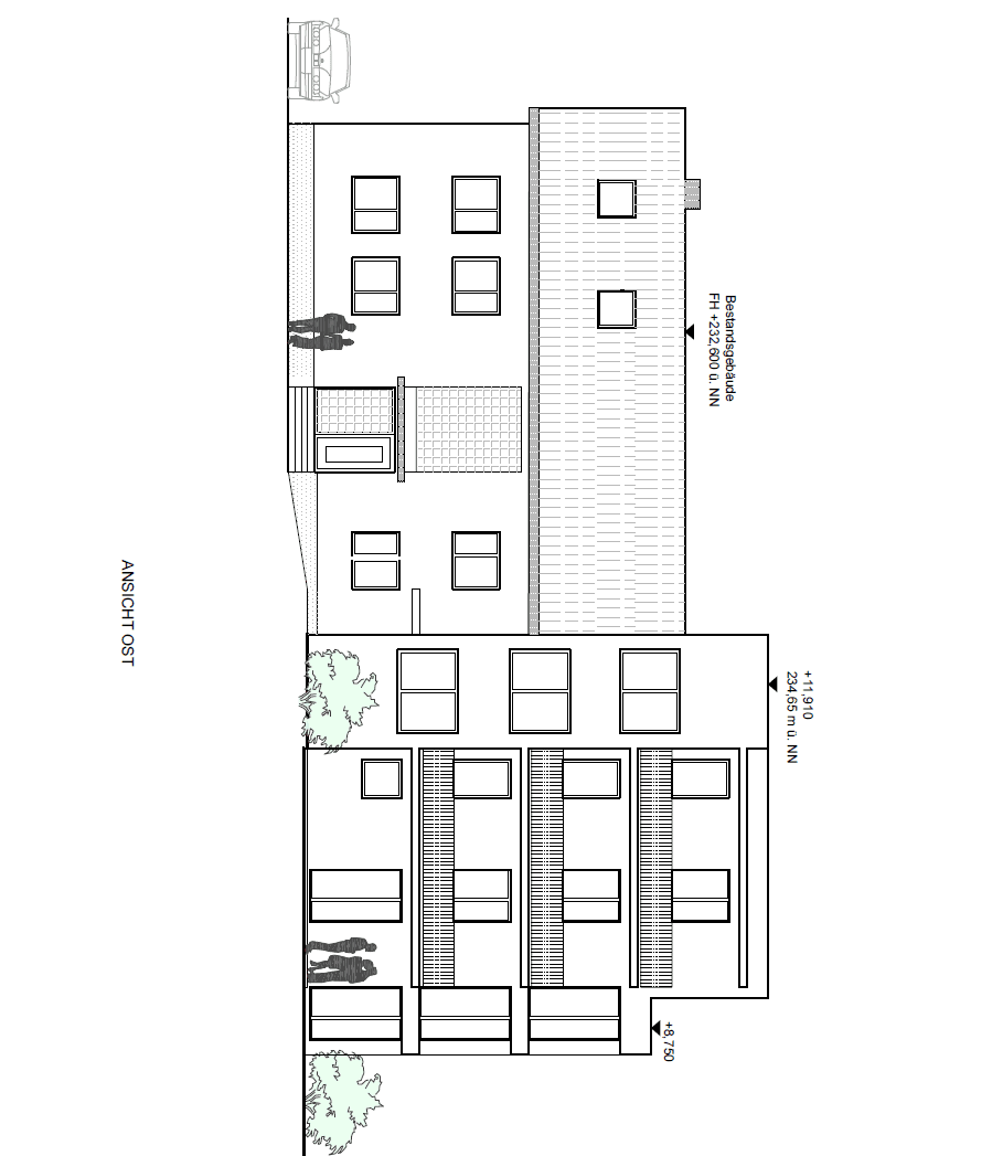
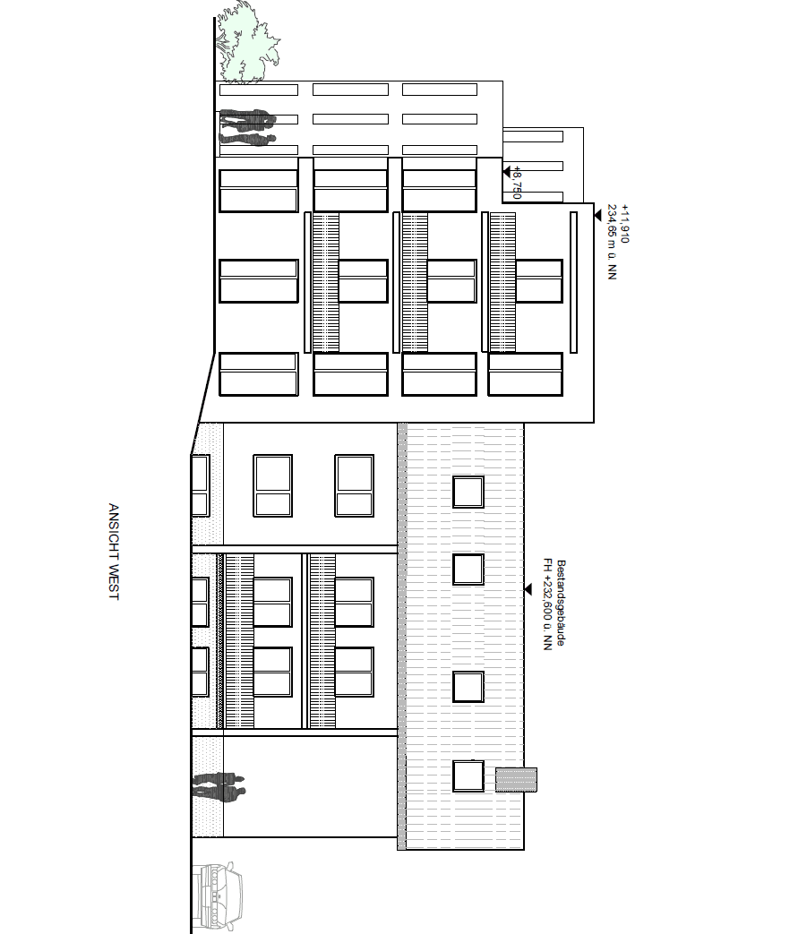
Neďaleko areálu kúpeľného parku obce Bad Bellingen vzniká pri staršej existujúcej budove samostatný nový projekt pozostávajúci zo siedmich bytových jednotiek. Dva byty sa nachádzajú v prízemí, ďalšie dva v 1. poschodí a ďalšie dva v 2. poschodí, pričom majú obytnú plochu medzi 48 m² a 49 m² a pozostávajú z dvoch izieb. Penthouse byt vo 3. poschodí sa vyznačuje ďalšou spálňou a obytnou plochou presahujúcou 80 m². Všetky byty ťažia z množstva až od podlahy až po strop oken, vďaka čomu panuje svetlé a príjemné bývanie. Premyslený dispozícia s otvoreným obytným, kuchynským a jedálenským priestorom podčiarkuje modernitu projektu. Kúpeľne vo všetkých bytoch disponujú bezbariérovým sprchovacím rohožom; troch bytov orientovaných na východ a veľká kúpeľňa na poslednom poschodí navyše oknom. Byty v prízemí sú bezbariérové, a preto sú ideálne pre seniorský pár. Na veľkej terase si môžete vychutnať ráno alebo večer slnko. Byty na poschodiach sú prístupné schodiskom, pričom počet schodov je vzhľadom na malý počet poschodí obmedzený. Tieto jednotky majú namiesto terasy balkón, penthouse byt dokonca má dva balkóny.
Bad Bellingen je obec s viac ako 5 000 obyvateľmi na severozápade okresu Lörrach a nachádza sa presne v trojkrajine – Nemecko, Francúzsko a Švajčiarsko. Prístup na diaľničné napojenie Bundesautobahn č. 5 je vzdialený iba 10 minút jazdy, vďaka čomu sa do mesta Lörrach dostanete za 30 minút, Mülhausen za 40 minút a Basel taktiež za 30 minút. Posledné disponuje známy medzinárodným letiskom. Dopravná infraštruktúra je doplnená regionálnymi vlakmi a expresnými vlakmi na trati Rheintalschiene, pričom samotný Bad Bellingen má aj vlastnú železničnú stanicu.
Od objavu termálnych prameňov v 50. rokoch minulého storočia sa obec presadila ako kúpeľné a turistické stredisko s medzinárodnou povesťou. Z toho výrazne profitujú miestna ekonomika a infraštruktúra obce. K areálu kúpeľného parku, ktorý je pešo vzdialený od nového projektu a ponúka množstvo voľnočasových aktivít, ako je obľúbené Balinea termálne kúpalisko, chodník naboso, ihrisko či fitness prekážková dráha, patria rôzne obchody každodenných potrieb, veľký supermarket a kulinárske gastronomické ponuky. Priľahlý Rýn a nedaleký Hertinger les ďalej rozširujú bohatstvo prírody.
- Udržateľná konštrukcia v energeticky efektívnom štandarde KfW 40
- Podlahové kúrenie vo všetkých miestnostiach (vzduch-voda tepelné čerpadlo)
- Moderný koncept bývania s otvorenou kuchyňou
- Až od podlahy až po strop plastové okná (trojitá izolácia) so elektrickými hliníkovými rolety
- Podlahové krytiny: parketová podlaha v obývacej a spálni a dlaždice 60x60 cm v kúpeľni
- Steny: maľovacie plátno v obývacej a spálni a dlaždice 60x30 cm v kúpeľni
- Nadčasový dizajn kúpeľne s bezbariérovou sprchou, oknom a sanitárnymi zariadeniami či armaturami od renomovaných firiem Duravit a Hansgrohe
Parametre nehnuteľnosti
| Vek | Nad 50 rokov |
|---|---|
| Stav | Novostavba |
| Poschodie | 1. poschodie z 4 |
| Úžitková plocha | 49 m² |
| Dostupné od | 1. 12. 2026 |
|---|---|
| Dispozícia | 2+1 |
| Číslo inzerátu | 981077 |
| Cena za jednotku | 4 286 € / m2 |
Čo táto nehnuteľnosť ponúka?
| Balkón | |
| Parkovanie |
| Pivnica | |
| MHD 1 minúta pešo |
V okolí nehnuteľnosti nájdete
Stále hľadáte to pravé?
Nastavte si strážneho psa. Ponuky vybrané na mieru dostanete súhrnne 1× denne e-mailom. S Premium profilom máte po ruke rovno 5 strážcov a keď sa niečo objaví, informujú vás obratom.


















