
Predaj bytu 2+1 • 49 m² bez realitky, Bádensko-Wurttembersko
, Bádensko-WurttemberskoMHD 1 minúta pešo • ParkovanieVyužite výhodu early bird ceny a ušetríte 30.000 €: rezervujte si byt do 31.12.2025 a zabezpečte si cenovú výhodu 235.000 € namiesto 265.000 €.
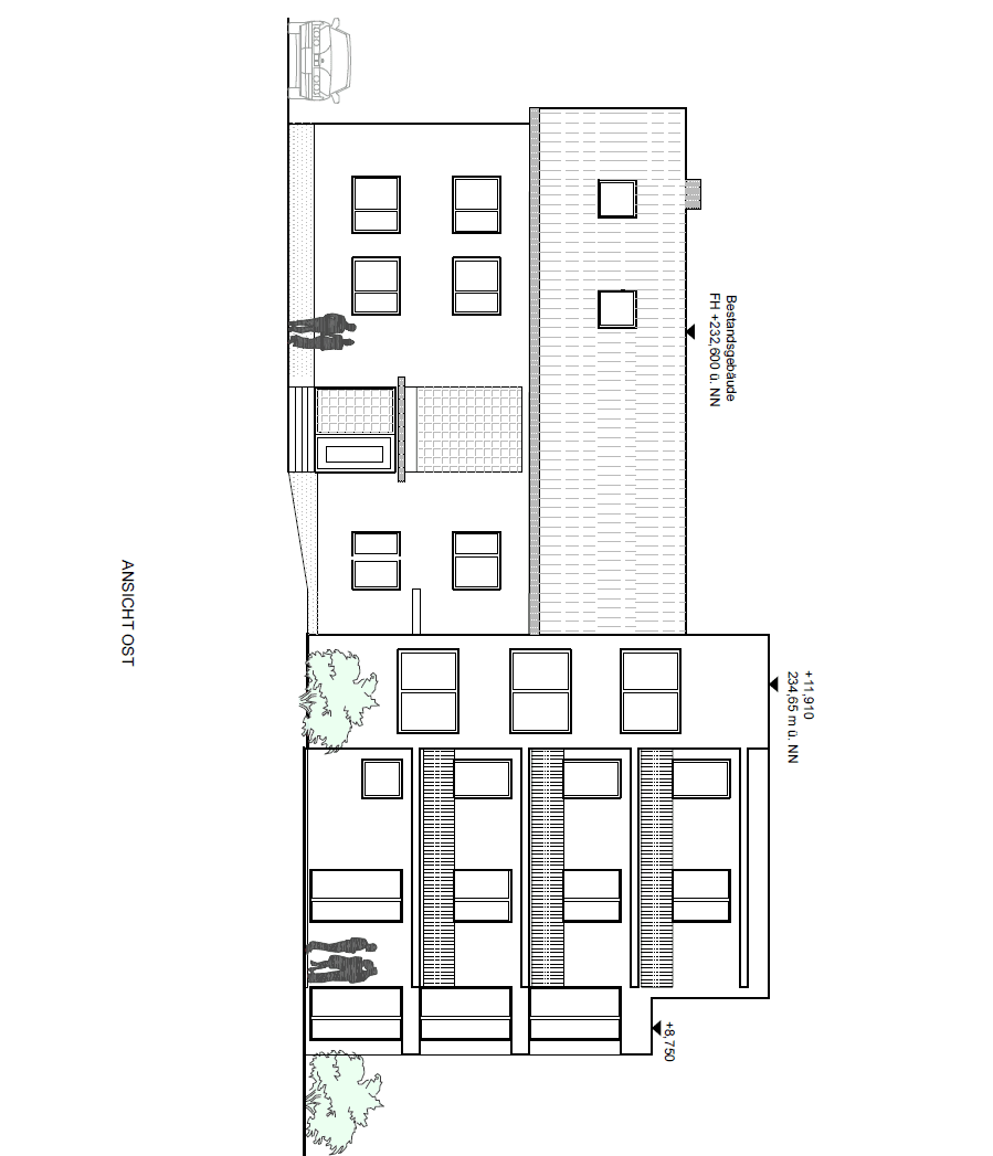
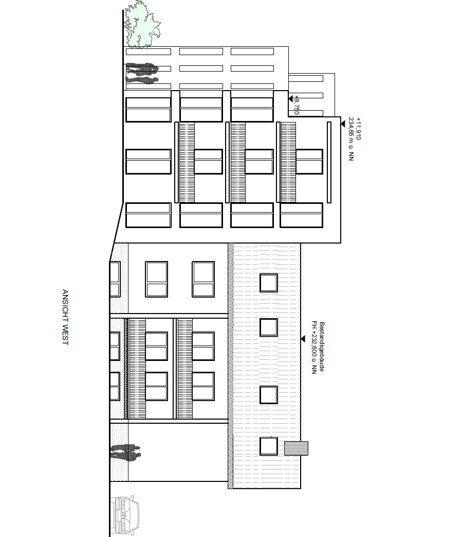
Neďaleko územia liečebného parku obce Bad Bellingen vzniká pri existujúcej staršej budove samostatný novostavbový projekt pozostávajúci zo siedmich obytných jednotiek. Obidva byty, každý v prízemí, 1. poschodí a 2. poschodí, majú obytnú plochu medzi 48 m² a 49 m² a pozostávajú z dvoch izieb. Penthouse byt v 3. poschodí sa vyznačuje pridanou spálňou a obytnou plochou viac ako 80 m². Všetky byty profitujú vďaka množstvu okien od zeme po strop zo svetlého a príjemného bývania. Premyslený pôdorys s otvoreným obyvaním, kuchyňou a jedálenským priestorom zdôrazňuje moderný charakter projektu. Kúpeľne vo všetkých bytoch sú vybavené bezbariérovou sprchou, pričom tri z nich majú orientáciu na východ a veľká kúpeľňa v podkroví navyše obsahuje okno. Byty v prízemí sú bezbariérové a sú preto ideálne pre seniorský pár. Na veľkej terase si môžete vychutnať buď ranné, alebo večerné slnko. Byty na poschodiach sú prístupné spoločným schodiskom, pričom vzhľadom na malý počet poschodí je počet schodov veľmi prehľadný. Tieto jednotky majú namiesto terasy balkón, penthouse byt dokonca disponuje dvoma balkónmi.
Bad Bellingen je obec s viac ako 5.000 obyvateľmi na severozápade okresu Lörrach a nachádza sa priamo v trojhraní Nemecka, Francúzska a Švajčiarska. Prístupová cesta k diaľnici č. 5 je vzdialená len 10 minút jazdy, preto je možné sa dostať do mesta Lörrach do 30 minút, Mülhausen do 40 minút a bazilejského letiska do 30 minút. Mestečko Bazilej je známe tým, že má medzinárodné letisko. Dopravnú sieť dopĺňajú regionálne a expresné vlaky na trati Rýnoden, pričom Bad Bellingen má vlastnú železničnú stanicu.
Od objavenia termálnych prameňov v 50. rokoch 20. storočia si obec vydobyla renomé ako liečebné a turistické stredisko aj za hranicami regiónu. Z toho výrazne profitujú miestny hospodársky sektor a infraštruktúra obce. V okolí liečebného parku, do ktorého je možné sa dostať pešo z nového projektu a ktorý ponúka množstvo voľnočasových aktivít – ako je obľúbené termálne kúpalisko Balinea, cestička naboso, ihrisko alebo fitness prekážková dráha – sa nachádza celá rada obchodov s bežným tovarom, veľký supermarket a široká ponuka gastronomických zážitkov. Priľahlý Rýn a nedaleký Hertinger les len rozširujú prírodnú rozmanitosť.
– Udržateľná stavebná konštrukcia podľa energeticky efektívneho štandardu KfW 40
– Podlahové kúrenie vo všetkých miestnostiach (vzduch-voda tepelné čerpadlo)
– Moderný obytný koncept s otvorenou kuchyňou
– Plastové okná od zeme po strop (trojsklo) s elektrickými hliníkovými rolety
– Podlahové krytiny: parketová podlaha v obytných a spálňových priestoroch a dlaždice 60 x 60 cm v kúpeľni
– Nástenná úprava: maľovací vlákno v obytných a spálňových priestoroch a dlaždice 60 x 30 cm v kúpeľni
– Nadčasový dizajn kúpeľne s bezbariérovou sprchou, oknom a sanitárnymi zariadeniami či armátormi renomovaných firiem Duravit a Hansgrohe
Parametre nehnuteľnosti
| Vek | Nad 50 rokov |
|---|---|
| Stav | Novostavba |
| Poschodie | 2. poschodie z 4 |
| Úžitková plocha | 49 m² |
| Dostupné od | 1. 12. 2026 |
|---|---|
| Dispozícia | 2+1 |
| Číslo inzerátu | 981075 |
| Cena za jednotku | 4 388 € / m2 |
Čo táto nehnuteľnosť ponúka?
| Balkón | |
| Parkovanie |
| Pivnica | |
| MHD 1 minúta pešo |
V okolí nehnuteľnosti nájdete
Stále hľadáte to pravé?
Nastavte si strážneho psa. Ponuky vybrané na mieru dostanete súhrnne 1× denne e-mailom. S Premium profilom máte po ruke rovno 5 strážcov a keď sa niečo objaví, informujú vás obratom.


















