
Inzerát už nie je v ponuke
Predaj bytu 1+1 • 38 m² bez realitkyBerlin Baumschulenweg Berlin 12437
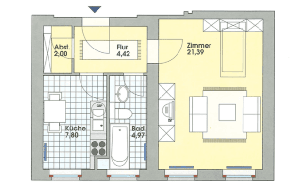
Berlin Baumschulenweg Berlin 12437MHD 1 minúta pešoNa predaj je veľmi dobre dispozíčne usporiadaný vlastnícky byt s obytnou plochou približne 38 m² v pokojnej štvrti Berlin-Baumschulenweg v Treptow-Köpenick.
Byt na druhom poschodí sa nachádza v viacrodinnom dome postavenom okolo roku 1925, ktorý je starostlivo udržiavaný. Okolo roku 2000 prebehlo množstvo modernizácií. Boli obnovené rozvody, kúrenie, okná, elektroinštalácia a strecha bola zcela prekrytá novým materiálom.
Atraktívny vlastnícky byt disponuje príjemnou obývacou izbou, oddelenou kuchyňou a kúpeľňou s vaňou. Okúzľuje pôvodnými, čerstvo zrekonštruovanými podlahovými doskami typickými pre staršie stavby a celkovo sa nachádza vo veľmi dobrom stave, nakoľko bol nedávno zrekonštruovaný pre vlastnú potrebu.
Objekt je zásobovaný teplom prostredníctvom plynového centrálneho kúrenia, ktoré je každoročne kontrolované odbornou firmou. K dispozícii je aktuálny energetický preukaz, ktorý si na požiadanie samozrejme môžete prezrieť.
Pod nasledujúcim odkazom si môžete samostatne prezrieť byt:
https://360.immophoto.de/vr/Heidekampweg-21/
Pokojné, zelené a neďaleko rieky Spree.
Objekt sa nachádza na juhovýchode Berlína, v mestskej časti Treptow-Köpenick, konkrétne v štvrti Baumschulenweg. Centrálna poloha v kombinácii s pokojnou slepou uličkou, v ktorej sa byt nachádza, ponúka príjemnú atmosféru bývania. Berlin-Baumschulenweg je známy svojou rodinne priateľskou atmosférou a vynikajúcim spojením s centrom mesta. Nájdete tu vyváženú zmes mestského života a prírody. Rieka Spree tečie priamo v blízkosti a rozľahlý Treptower Park je dostupný na bicykli len za pár minút. Všetko, čo na denné potreby potrebujete, je dostupné aj pešo. Pozdĺž ulice Baumschulenstraße sa nachádza množstvo obchodov, medzi ktoré patria supermarkety, pekárne a lekárne. Materské školy, základné školy a rôzne lekárske ordinácie sú tiež v bezprostrednom okolí. Dopravné spojenie je ideálne: Stanica S-Bahn „Baumschulenweg“ ponúka spojenia linkami S45, S46, S47, S8, S9 a S85, ako aj rôznymi autobusovými linkami. Autom je možné za pár minút dosiahnuť cestu B96a, ktorá zabezpečuje rýchle spojenie so mestskou diaľnicou.
Parametre nehnuteľnosti
| Vek | Nad 50 rokov |
|---|---|
| Stav | Po rekonštrukcii |
| Poschodie | 2. poschodie z 5 |
| PENB | D - Menej hospodárne |
| Cena za jednotku | 6 026 € / m2 |
| Dostupné od | 14. 11. 2025 |
|---|---|
| Dispozícia | 1+1 |
| Číslo inzerátu | 954239 |
| Úžitková plocha | 38 m² |
Čo táto nehnuteľnosť ponúka?
| MHD 1 minúta pešo |
V okolí nehnuteľnosti nájdete
Stále hľadáte to pravé?
Nastavte si strážneho psa. Ponuky vybrané na mieru dostanete súhrnne 1× denne e-mailom. S Premium profilom máte po ruke rovno 5 strážcov a keď sa niečo objaví, informujú vás obratom.




