
Predaj domu 4+1 • 133 m² bez realitkySilker Weiche 7, , Šlezvicko-Holštajnsko
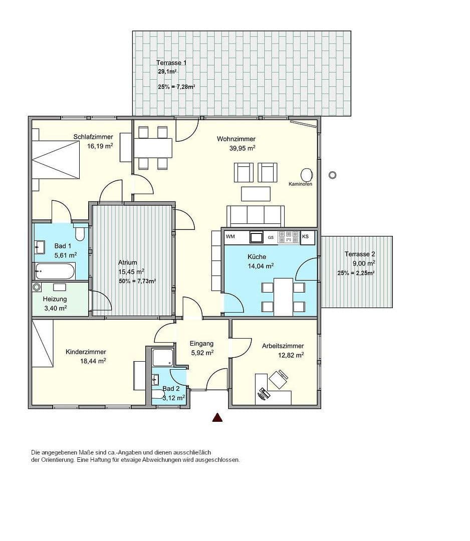
Silker Weiche 7, , Šlezvicko-HolštajnskoMHD 8minút pešo • Parkovanie • GarážTento svetlom preniknutý bungalow s atriom z roku 1981, orientovaný na juhozápad, na konci pokojnej slepej ulice priamo pri chránenom území, vám ponúka nádherný nový domov s obytnou plochou približne 133,3 m². Aj keď je stanica S-Bahn Wohltorf dostupná pešo, školy aj materské školy sa nachádzajú v blízkosti.
Bungalow bol rozsiahlo zmodernizovaný a disponuje trojnásobne zasklenenými drevenými oknami, novo izolovanou strechou, novým plynovým kúrením so solárnou termikou (teplá voda zo slnka), novou elektroinštaláciou, modernou kuchynou so 6-plamenným sporákom, novou kúpeľňou a parketovou podlahou vo všetkých miestnostiach.
Dve izby a sprchová kúpeľňa sa nachádzajú vo prednej časti domu. Srdcom je otvorená obývačka s kachľovou pecou, podlažnými oknami a južnou terasou. Ďalším vrcholom je príjemná obývacia kuchyňa s priamym vstupom na západnú terasu. Izba orientovaná k záhrade s dvoma oknami, terasové dvere vedúce do atria a kúpeľňa en suite dokončujú štýlovú architektúru domu.
Na zrelom pozemku o rozlohe 850 m² s krásnymi stromami vás navyše pozýva záhradná sauna s elektrickou pecou na oddych.
K nehnuteľnosti patrí aj garáž so servisnými priestormi a prístrešok pre auto, ako aj ďalšie parkovacie miesto, napríklad pre obytný príves.
Ak máte záujem, neváhajte nás kontaktovať, aby sme si dohodli termín obhliadky.
Obytná plocha: 133,3 m² (vrátane podielu 17,3 m² terasovej plochy)
Izby: 4
Kúpeľne: 2
Terasy: 2
Garáž: 1
Carport: 1
Extra parkovacie miesto: 1
Záhradná sauna
Kachľová pec
Sklad s dielňou
Rok výstavby: 1981
Koncová spotreba energie: 100,9 kWh/(m²·rok)
Energetická trieda: D
Energetický certifikát platný do: 28.04.2035
Plynové kúrenie so solárnou termikou – 2022
Fasádový nátierok – 2022
Strešná izolácia a hydroizolácia – 2018
Kúpeľňu – 2018
Saunu – 2015 (saunová pec od 2025)
Kachľovú pec – 2014
Drevené okná, trojnásobne zasklenené – 2012
Parketovú podlahu – 2012
Elektroinštaláciu – 2012
Kuchyňu – 2012
Dom sa nachádza priamo pri chránenom území Billetal, neďaleko od Sachsenwaldu.
Reinbek, obľúbené sídlo v okrese Stormarn, ponúka vynikajúcu kvalitu života vďaka blízkosti prírody a skvelej dostupnosti do Hamburgu. Infraštruktúra je dobre rozvinutá s množstvom nákupných možností, lekárov a škôl. Dopravná dostupnosť je zabezpečená verejnou dopravou a blízkosťou diaľnic, čo obzvlášť ocenia cestujúci do práce. Množstvo zelených plôch a parkov pozýva na oddych.
Kachľová pec
6-plamenný sporák
Záhradná sauna
2 kúpeľne s prirodzeným svetlom
Parketová podlaha vo všetkých miestnostiach
Veľké atrium
2 terasy
Drevené okná s trojnásobným zasklením
Parametre nehnuteľnosti
| Vek | Nad 50 rokov |
|---|---|
| Dispozícia | 4+1 |
| PENB | D - Menej hospodárne |
| Plocha pozemku | 850 m² |
| Stav | Dobrý |
|---|---|
| Číslo inzerátu | 1014098 |
| Úžitková plocha | 133 m² |
| Cena za jednotku | 5 481,20 € / m2 |
Čo táto nehnuteľnosť ponúka?
| Bezbariérový prístup | |
| Parkovanie | |
| Terasa |
| Garáž | |
| MHD 8 minút pešo |
V okolí nehnuteľnosti nájdete
Stále hľadáte to pravé?
Nastavte si strážneho psa. Ponuky vybrané na mieru dostanete súhrnne 1× denne e-mailom. S Premium profilom máte po ruke rovno 5 strážcov a keď sa niečo objaví, informujú vás obratom.





































