
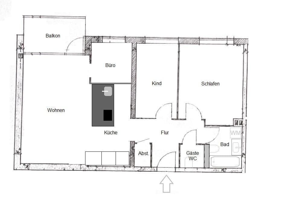
Predaj bytu 3+kk • 77 m² bez realitkyHamburg Hummelsbüttel Hamburg 22339
Na predaj je rozsiahlo modernizovaný 3,5-izbový vlastenský byt s balkónom, ktorý sa nachádza v pešej vzdialenosti od Alsterlauf. Nedávno ukončené práce zahŕňali kompletnú prestavbu bytu vrátane kúpeľní a kuchyne, napríklad s omietnutými a brúsenými stenami, veľkoformátovými dlaždicami 60x120 cm a 80x80 cm a LED stropnými svetlami na chodbe a v kúpeľniach. Nová a otvorená kuchyňa je vybavená modernými bezúchytkovými frontami, umývačkou riadu, indukčnou varnou doskou, chladiacou/zmrazovacou kombináciou, rúrou umiestnenou v modernej výške a mnoho ďalším.
V domácom poplatku sú zahrnuté všetky bežné položky, ako napríklad tvorba rezerv, správcovský poplatok, náklady na vykurovanie, ostatné prevádzkové náklady, a v tomto prípade aj náklady na ohrev teplej vody prostredníctvom ústredného vykurovania vrátane samotnej vody. K bytu patrí aj parkovacie miesto v podzemnej garáži, ktoré je už zahrnuté v cene.
Budova z roku 1971 sa nachádza v udržiavanom stave, mnoho vlastníkov v nej býva vlastnými silami a bežne ju udržiava.
Parametre nehnuteľnosti
| Vek | Nad 50 rokov |
|---|---|
| Stav | Po rekonštrukcii |
| Poschodie | 1. poschodie |
| Úžitková plocha | 77 m² |
| Dostupné od | 17. 4. 2026 |
|---|---|
| Dispozícia | 3+kk |
| Číslo inzerátu | 1013479 |
| Cena za jednotku | 4 675,32 € / m2 |
Čo táto nehnuteľnosť ponúka?
| Balkón | |
| Garáž | |
| MHD 0 minút pešo |
| Pivnica | |
| Výťah |
V okolí nehnuteľnosti nájdete
Stále hľadáte to pravé?
Nastavte si strážneho psa. Ponuky vybrané na mieru dostanete súhrnne 1× denne e-mailom. S Premium profilom máte po ruke rovno 5 strážcov a keď sa niečo objaví, informujú vás obratom.




















