
Predaj bytu 3+1 • 70 m² bez realitkyKöln Innenstadt Nordrhein-Westfalen 50674
Köln Innenstadt Nordrhein-Westfalen 50674MHD 3 minúty pešo • VýťahBetóngold v najlepšej forme
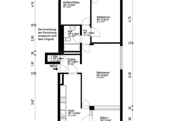
Svetlom naplnený, na juh orientovaný trojizbový byt s balkónom sa nachádza v centrálnej lokalite mesta, priamo pri mestskom parku, na ulici Veedel-Meile v Belgickej štvrti. Nachádza sa v 2. poschodí bytového domu zo šesťdesiatych rokov, ktorý bol v roku 2006 zrekonštruovaný/modernizovaný v štandarde novostavby a rozšírený o novú nadstavbu aj prístavbou k dvoru.
Predaj prebieha priamo od vlastníka. Majiteľ pripravoval byt ako individuálne riešenie s nadčasovým dizajnom a optimálnou ergonomikou priestoru. Disponuje dvoma spálňami s prístupom na balkón, otvorenou kuchyňou, veľkou kúpeľňou s vaňou a sprchou, ako aj vysoko kvalitným vybavením vrátane výťahu a pivničného priestoru. Ideálny balík pre najväčší a najplatobnejší dopyt na trvalo obmedzenom kólskej realitnom trhu preto zostáva dlhodobo úplne na špici trendov.
Už vtedy sa kládol dôraz na kvalitu, izoláciu a energetickú efektívnosť. Výsledkom je dnes napríklad veľmi nízky domový poplatok s minimálnymi nákladmi na kúrenie/teplú vodu (len rekordných 0,74 € za m²).
Byt sa odovzdáva v modernom, upravenom stave (bez zaostávajúcich potrebných rekonštrukcií/modernizácií) vrátane už 11 rokov bezproblémovo prebiehajúceho nájomného vzťahu. V prípade vlastnej potreby je nájomná zmluva možné kedykoľvek vypovedať v rámci zákonnej výpovednej lehoty.
Najlepšie na tom všetkom: Ideálny trojizbový pôdorys v spojení s prémiovým vybavením garantuje trvalo rastúci dopyt a optimálny potenciál zhodnotenia hodnoty. Súčasne sa byt pre kapitálových investorov v najvyššej daňovej skupine sam sama „vypláca“ prostredníctvom nájmu a daňových výhod už od začiatku. Eskalujúca nájomná zmluva každoročne automaticky zvyšuje čisté príjmy. A nákup priamo od vlastníka ešte ušetrí províziu makléra vo výške 20 000,00 €. Takto idú dôchodkové sporenie a budovanie majetku v najlepšej forme!
Skratka – takéto porovnateľné ponuky v Belgickej štvrti, v rovnako prestížnej kólskej lokalite alebo v nemeckej miliónovke nájdete sotva alebo vôbec! Tešte sa preto na vynikajúci pomer ceny a kvality a na budúcnosť zabezpečujúci dopyt po celosvetovo jedinečnom kólskej city-life štýle.
KÖLN PRI VAŠICH NOHÁCH
Nachádzate sa v srdci Belgickej štvrte, jednej z najtrendovejších a najžiadanejších štvrťí metropolity s katedrálou. O dva kroky ste od mestského parku, kde si môžete vychutnať rozsiahlu zeleň a jeden z najobľúbenejších pivných záhrad v Kolíne.
Zároveň ste v lokálnej nákupnej a prechádzkovej zóne. Hneď za dverami vás čaká mestský život a najvyššia koncentrácia obchodov, kaviarní, miestnych krčiem, trendy barov, klubov a reštaurácií. Na rozdiel od toho však nemusíte čeliť negatívam rušného diania priamo vonku, pretože ulica Venloer so svojím jedným pruhom dopravy a množstvom červených semaforov je v porovnaní s okolím omnoho pokojnejšia. Navyše sú obe spálne/pracovné/detskí izby orientované k tichému dvoru.
Centrálnu prípojku na metro, S-/U- a vlakovú dopravu (Hans-Böckler- alebo Friesenplatz), zelený pás, Ehrenstraße, Friesenviertel, „Quartier Lateng“ a pešo dostupné nákupné centrum dosiahnete za pár minút chôdze. Priame dopravné a diaľničné spojenia smerujú hviezdicovo do všetkých smerov. Hlavná stanica je len o jednu zastávku ďalej. Zvyšok mesta, väčšina kultúrnych zariadení aj univerzita sú v krátkej dobe pohodlne dostupné pešo, na bicykli či verejnou dopravou.
Skratka – mesto s katedrálou vám leží pri nohách (ako aj najväčšiemu a najplatobnejšiemu dopytu).
NADČASOVÉ A BUDÚCNOSŤOU ZABEZPEČENÉ
+ moderný, udržiavaný trojizbový byt s balkónom s ideálnou ergonomikou priestoru
+ žiadny zaostávajúci problém s rekonštrukciami alebo modernizáciou, zároveň vynikajúce rezervy
+ hoci sa byt nachádza v centre, je pomerne pokojný (spálňa smerom k kompletne prerábanému/uzavrenému/tichému dvoru)
+ balkón s 6m² podlahou z masívneho dreva orientovaný k dvoru
+ spálňa a pracovné/detské izby s priamym vstupom na balkón
+ oba prístupy na balkón cez dvojité rozkladacie okná
+ otvorená kuchyňa s masívnou kuchynskou linkou
+ vysoko kvalitný parkietový podlahový povrch z pravého dreva
+ veľká, prémiová kúpeľňa s vaňou a sprchou s prístupom po úrovni podlahy a s ohrievačom uterákov
+ kvalitné značkové sanitárne zariadenia a kúpeľňové vybavenie (napr. Duravit Starck, Hans Grohe)
+ zariadenie na zmäkčovanie vody (aktuálne vo výrobe)
+ hladko omietnuté steny
+ výška stropov 2,50 m
+ cca 5 m² pivničný priestor
+ komplexná rekonštrukcia/modernizácia v roku 2006 s prebudovaním jednotiek do štandardu novostavby a obnovou:
- okien (zadná časť budovy)
- centrálneho plynového vykurovania
- výťahu
- schodiska
- zvončekového/rozhovorového systému
- omietky fasády
- nadstavby budovy
- tepelnej izolácie budovy
- strechy
+ BEZ PROVÍZIE, priamo od vlastníka
(Budúcnosť s CO2) ZABEZPEČENÁ
+ veľmi nízke náklady na kúrenie/teplú vodu (vďaka štandardu novostavby a vynikajúcej izolácii) len 0,74 € za m² mesačne
+ nízka energetická spotreba budovy len 116,8 kWh/(m²xa)
+ CO2-pripravené do budúcnosti vďaka energetickému preukazu triedy D (= dobre zrekonštruované a podľa GEG/Zákona o energetickej náročnosti budov nevyžadujúce ďalšiu obnovu)
+ veľmi nízky domový poplatok len 3,21 € za m² mesačne
+ od roku 2006 sa osvedčila pevná a dobre nastavená spoločenstvo vlastníkov
+ vďaka top lokalite, vynikajúcemu stavu, prémiovému vybaveniu, ideálnej veľkosti rozloženia 3 izieb,
balkónu orientovaného k dvoru, nízkym/malým mesačným poplatkom a CO2-budúcnosti…
=> … najvyšší a trvalo rastúci dopyt pri prenájme aj predaji!
=> … veľmi dobrý až optimálny potenciál pre vývoj nájmu a hodnoty!
DOSTUPNÉ PRE OSOBNÉ POUŽÍVANIE
Nájomná zmluva môže byť pri vlastnej potrebe kedykoľvek vypovedaná v rámci zákonnej výpovednej lehoty
TOP INVESTÍCIA PRE KAPITÁLOVÝCH INVESTOROV
+ Jedinečný balík ponuky (lokalita, objekt, byt, vybavenie, nájomná zmluva, spoločenstvo vlastníkov, budúcnosť)
+ Za prémiovú nehnuteľnosť v najlepšej lokalite vynikajúci pomer ceny a kvality: byt sa sám „financuje“ pre kapitálových investorov v najvyššej daňovej skupine prostredníctvom nájmu a daňových výhod
+ najvyššia „bezpečnosť betóngoldu“ v paralelne rastúcich neistotách na akciových/finančných trhoch a geopolitických nejasnostiach
=> bezpečný, pasívny príjem a budovanie majetku v najlepšej forme!
= v centre mesta ide o veľmi zriedkavú až jedinečnú a maximálne budúcnosťou zabezpečenú top investíciu!
PROSÍM, POSKYTNITE INFORMÁCIE O SEBE A FINANCOVANÍ
POZOR: Spracovávame iba dopyty, v ktorých sa krátko predstavíte a uvediete informácie o financovaní a telefónne číslo.
Parametre nehnuteľnosti
| Vek | Nad 50 rokov |
|---|---|
| Stav | Dobrý |
| Poschodie | 2. poschodie z 8 |
| Úžitková plocha | 70 m² |
| Dostupné od | 19. 4. 2026 |
|---|---|
| Dispozícia | 3+1 |
| Číslo inzerátu | 1013128 |
| Cena za jednotku | 7 300 € / m2 |
Čo táto nehnuteľnosť ponúka?
| Balkón | |
| Výťah |
| Pivnica | |
| MHD 3 minúty pešo |
V okolí nehnuteľnosti nájdete
Stále hľadáte to pravé?
Nastavte si strážneho psa. Ponuky vybrané na mieru dostanete súhrnne 1× denne e-mailom. S Premium profilom máte po ruke rovno 5 strážcov a keď sa niečo objaví, informujú vás obratom.
















