
Predaj bytu 3+1 • 96 m² bez realitkyReinbeker Redder 57a Hamburg Lohbrügge Hamburg 21031
Na ulici Reinbeker Redder 55, 55a, 57, 57a Hamburg, katastrálne územie Boberg, vzniká nový obytný kvartál „Alte Gärtnerei“ s celkovým počtom 71 obytných jednotiek rozdelených do štyroch domov a podzemnej garáže s 64 parkovacími miestami.
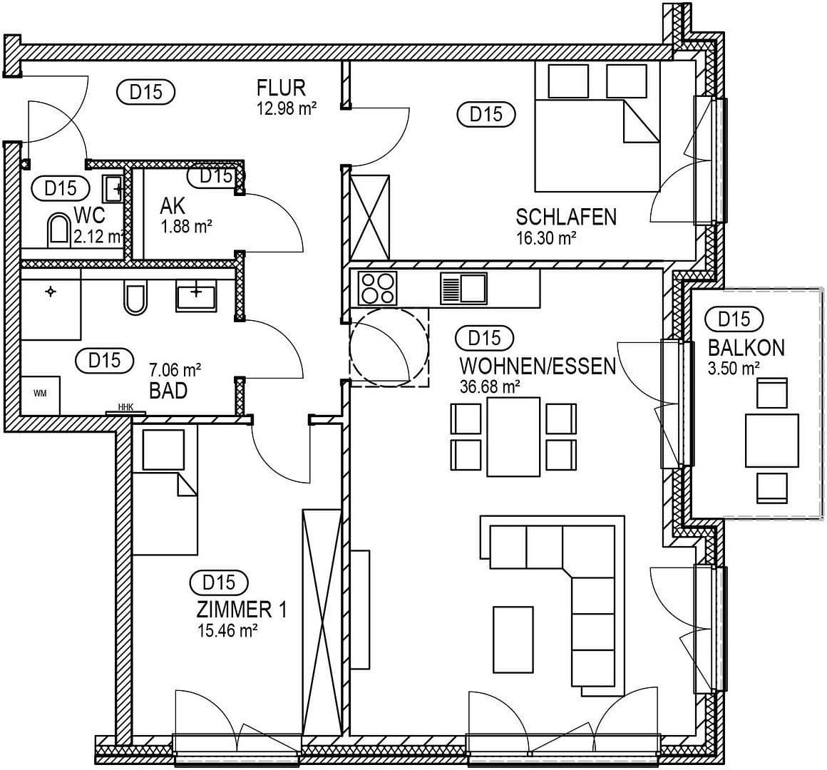
Ponúkaný 3-izbový byt D15 v obytnom kvartáli „Alte Gärtnerei“ sa nachádza v 1. nadzemnom poschodí domu D. Srdcom bytu tvorí priestranná obývacia a jedálenská časť s približne 36,7 m², kde si vychutnáte dostatok priestoru pre pohodlné večery, spoločenské stretnutia a individuálne možnosti zariadenia. Odtiaľ sa dostanete priamo na slnečný balkón s rozlohou okolo 7 m², ktorý vás pozýva na oddych na čerstvom vzduchu. Pri navrhovaní obytných priestorov bolo myslených na všetko, čo prispieva k komfortnému bývaniu.
Pri vstupe do bytu vás privíta príjemná predsieň, ktorá poskytuje prístup ku všetkým miestnostiam. V predsieni, hneď vpravo, sa nachádza návštevné WC a o niečo ďalej úložná miestnosť. Následne vás čaká kúpeľňa s bezbariérovou sprchou. Z predsiene je taktiež prístupná ďalšia miestnosť s flexibilným využitím – ideálna ako pracovňa, izba pre hostí alebo detská izba. Byt kompletizuje pokojná spálňa, príjemné útočisko na oddych.
Komplexný, premyslený byt so všetkým, čo potrebujete pre svoje pohodlie.
Predaj prebieha bez provízie priamo od developera a je možné si ho odteraz obhliadnuť. Dokončenie kvartálu je predpokladané na jún 2026.
Zasadený medzi záhradnícke spolky a rodinné či viacgeneračné domy sa kvartál „Alte Gärtnerei“ prezentuje v atraktívnej lokalite. Lokalita Reinbeker Redder 57a, v Hamburg Boberg, je rovnako centrálna ako obývateľne príjemná.
Pešo je možné preskúmať očarujúce okolie neďaleko rekreačnej oblasti Boberger Dünen a Boberger Ausgleichswiesen.
Na hranici medzi Hamburgom a Šlesvickom-Holštajnsko budú vaši budúci nájomníci, okrem výhodnej centrálnej polohy medzi hamburským centrom a Hamburg Bergedorf, zažívať vysoký faktor voľnočasových aktivít a zážitkov.
Krátke cesty do prírody či voľnočasové aktivity ako golf, fitness, tenis alebo exkluzívny SPA komplex Vabali dodávajú tejto lokalite mimoriadnu hodnotu z hľadiska voľnočasového vyžitia.
Verejné ihriská, prechádzky prírodou a dostupnosť základného občianskeho vybavenia pešo dopĺňajú lokalitu „Alte Gärtnerei“ a robia ju mimoriadne atraktívnou pre všetky generácie.
K tomuto bytu patrí aj úložný priestor o rozlohe približne 7,7 m² v suteréne.
Vybavenie:
- Efektívny dom podľa bývalého štandardu KfW 55
- Výťah spájajúci podzemnú garáž s obytnými poschodiami
- Podlahové kúrenie
- Vonkajšie rolety na všetkých oknách a terasových dverách
- Steny s malerským vláknom a bielym nátierom
- Kúpeľne: obkladané dlažbou, nástenné WC, ohrievač na uteráky, bezbariérový sprchový priestor
- Dizajnová vinylová podlaha v drevotreťovom prevedení v obytných a spálňových miestnostiach
- Prívod tepelnej energie cez ústredné kúrenie (centrálne teplo)
Ďalšie vybavenie je uvedené v prerokovanom stavebnom popise, ktorý vám radi zašleme.
Špeciálne služby:
- Kuchyne (vlastná práca) – radi vám sprostredkujeme nášho dlhoročného špecialistu na kuchyne
- Parkovacie miesta v podzemnej garáži je možné dokúpiť za cenu od 35.000,-€
Všetky vizualizácie, zariadenia, návrhy nábytku, grafiky a rozmery slúžia výhradne na ilustráciu, majú iba ilustračný charakter a nepredstavujú právny podklad.
Krátke informácie:
Spolková krajina: Hamburg, mestská časť: Hamburg-Lohbrügge – katastrálne územie Boberg, kvartál: Alte Gärtnerei – 71 obytných jednotiek, budova: dom B – 15 obytných jednotiek, 1. bicykelový priestor – 65 parkovacích miest, 2. bicykelový priestor – 113 parkovacích miest, podzemná garáž – 64 parkovacích miest; vzdialenosti: materská škola: 1,2 km, základná škola: 1,6 km, stredná škola: 2,8 km, gymnázium: 1,7 km, BG Klinikum: 1,7 km, Praxis Klinik Bergedorf: 3,3 km, Univerzita Hamburg Bergedorf: 4,8 km, City Center Bergedorf: 4,5 km, Reinbeker Zentrum: 5,4 km, centrum Hamburgu: 14,5 km, zjazd A1 Hannover/Lübeck: 3,2 km, zjazd A24 Berlin: 8,2 km, obchodné služby: 600 m, verejné ihrisko: 450 m.
Stavebným investorom je developerská spoločnosť Reinbeker Redder 55 mbH.
# Realizáciu zabezpečuje np Projektentwicklung GmbH z Mölln s viac ako 25-ročnými skúsenosťami v bytovej výstavbe.
Kontakt pre otázky k tomuto expozé je pán Robert Wolff, np Projektentwicklung GmbH z Mölln.
Impressum
Informácie podľa § 5 TMG:
np Projektentwicklung GmbH
Hindenburgstraße 15e
23879 Mölln
Zastupuje:
pán Marcus Pape – konateľ np Projektentwicklung GmbH
Kontakt:
Telefón: +49 (0) 4542 99 59 10
Telefaks: +49 (0) 4542 99 59 199
E-mail: info@np-projektentwicklung.de
Zápis v obchodnom registri:
Zápis v obchodnom registri.
Obchodný register vedený u Okresného súdu Lübeck,
Registračné číslo: HRB 18431 HL
Parametre nehnuteľnosti
| Vek | Nad 50 rokov |
|---|---|
| Dispozícia | 3+1 |
| Číslo inzerátu | 1012700 |
| Úžitková plocha | 96 m² |
| Stav | Novostavba |
|---|---|
| Poschodie | 1. poschodie z 3 |
| PENB | B - Veľmi úsporné |
| Cena za jednotku | 6 197,40 € / m2 |
Čo táto nehnuteľnosť ponúka?
| Balkón | |
| Garáž | |
| MHD 3 minúty pešo |
| Pivnica | |
| Výťah |
V okolí nehnuteľnosti nájdete
Stále hľadáte to pravé?
Nastavte si strážneho psa. Ponuky vybrané na mieru dostanete súhrnne 1× denne e-mailom. S Premium profilom máte po ruke rovno 5 strážcov a keď sa niečo objaví, informujú vás obratom.


























