
Predaj domu 4+1 • 132 m² bez realitkyMünchen-Ramersdorf Ramersdorf Bayern 81669
München-Ramersdorf Ramersdorf Bayern 81669MHD 1 minúta pešoNehnuteľ bola v roku 2010 kompletně zrekonštruovaná a ponúka priestranné usporiadanie pre rodiny alebo páry so záujmom o priestor a kvalitu bývania.
Na obytnom priestore okolo 132 m², záhradnej ploche približne 104 m² a kólerovej ploche okolo 63 m² (prístupnej z vonkajších schodov zo záhrady) sú k dispozícii rôzne možnosti upravenia priestoru.
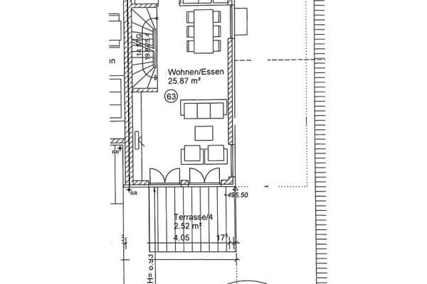
Zadná a veľmi pokojne situovaná záhrada disponuje krytou terasou s rozlohou približne 15 m² – ideálna na oddych, grilovanie alebo príjemné večery vonku.
Veľkosti sú uvádzané približne:
Predzáhrada: ~56 m²
Záhrada: ~48 m²
Kólera: ~63 m²
Krytá terasa: ~15 m² (0,5 = 7,5 m²)
Prízemie:
Kuchyňa: ~11,5 m²
Obývacia izba: ~29 m²
Toaleta: ~1,2 m²
Chodba: ~5 m²
Prvé poschodie:
Pravá izba: ~23 m²
Ľavá izba: ~11 m²
Chodba: ~2,5 m²
Kúpeľňa: ~3 m²
Poschodie pod strechou:
Predpriehon: ~3 m²
Priestor s výškou nad 2 metre: ~20 m²
Priestor s výškou pod 2 metre: ~11 m²
Tento pôvabný radečný dom sa nachádza vo východnej Münchene, v centrálnej, no zároveň pokojnej a prírodou obklopenej lokalite. V bezprostrednej blízkosti sa nachádza prírodný areál „Gartenschau“.
Dom spája klasický šarm s moderným komfortom bývania.
Nákupné možnosti a iné potreby sú pešo veľmi dobre dostupné, rovnako ako školy.
Okrem toho je vynikajúce spojenie s verejnou dopravou – metro aj autobus sú tiež pešo dostupné.
Stredný okruh je rýchlo dostupný a diaľničný okruh cez A8 do Salzburgu je takisto ľahko prístupný.
• Útulná pec v obývacej izbe
• Zabudovaná kuchyňa
• Kúpeľňa s rohovou vaňou
• Vysokokvalitné masívne dvere z javorového dreva
• Hliníkové okná a okenné kryty, ako aj žalúzie
• Hliníkové vstupné a terasové dvere
• Krytá terasa
• 2 záhradné domčeky
• Vonkajší gril a ohnivisko
Parametre nehnuteľnosti
| Vek | Nad 50 rokov |
|---|---|
| Stav | Po rekonštrukcii |
| Číslo inzerátu | 1011242 |
| Úžitková plocha | 132 m² |
| Celkové poschodia | 2 |
| Dostupné od | 14. 4. 2026 |
|---|---|
| Dispozícia | 4+1 |
| PENB | A - Mimoriadne úsporné |
| Plocha pozemku | 180 m² |
| Cena za jednotku | 9 772,73 € / m2 |
Čo táto nehnuteľnosť ponúka?
| Pivnica | |
| Terasa |
| MHD 1 minúta pešo |
V okolí nehnuteľnosti nájdete
Stále hľadáte to pravé?
Nastavte si strážneho psa. Ponuky vybrané na mieru dostanete súhrnne 1× denne e-mailom. S Premium profilom máte po ruke rovno 5 strážcov a keď sa niečo objaví, informujú vás obratom.






















