Zobraziť mapu
Byty na predaj • Nemecko • Hesensko
(91 nehnuteľností)
Prenájom
Byt
Vybrať nejaké
Predaj bytuWiesbaden-Biebrich Wiesbaden Hessen 65187
- 3+1
- 84 m²
MHD 1 minúta pešo • Výťah • Garáž
365 000 € + 347 €(4 345 € / m²)
Predaj bytuFrankfurt Unterliederbach Hessen 65929
- 3+1
- 74 m²
MHD 2 minúty pešo
290 000 € + 190 €(3 919 € / m²)
Predaj bytuWilhelm-Leuschner-Str. 40 Darmstadt Darmstadt Hessen 64293
- 6+kk
- 152 m²
MHD 3 minúty pešo
790 000 € + 350 €(5 197 € / m²)
Predaj bytuTerrassenstr. 8, , Hesensko
- 1+1
- 40 m²
MHD 1 minúta pešo • Výťah
252 000 € + 270 €(6 300 € / m²)
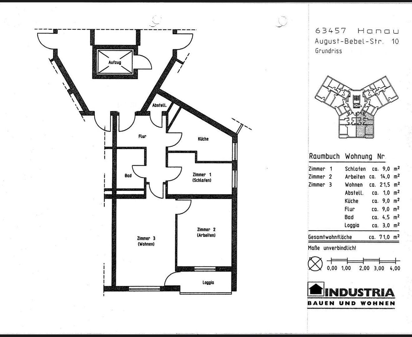
Predaj bytuAugust-Bebel-Straße 10, , Hesensko
- 3+1
- 72 m²
MHD 7minút pešo • Výťah • Garáž
189 000 € + 480 €(2 625 € / m²)
Predaj bytuFrankfurt am Main Bockenheim Hessen 60486
- 4+1
- 99 m²
MHD 3 minúty pešo • Výťah • Garáž
690 000 € + 380 €(6 970 € / m²)
Predaj bytu, Hesensko
- 4+kk
- 117 m²
MHD 2 minúty pešo • Výťah • Parkovanie • Garáž
430 000 € + 377 €(3 675 € / m²)










































