
Predaj bytu 3+1 • 76 m² bez realitkyFichtestr. 13 Nürnberg Wöhrd Bayern 90489
Tu sa ponúka na predaj byt, ktorý je vhodný nielen pre vlastné bývanie, ale aj ako investícia.
-Predaj je bez provízie-
Byt ponúka všetky moderné vymoženos ť.
-Byt sa nachádza na 4. z 5 poschodí, takže si v lete môžete vychutnať krásne západy slnka.
-Vstavaná kuchyňa s vybavením
-Výťah
-Iba dva byty na rovnakej poschodí
-Juhozápadná poloha
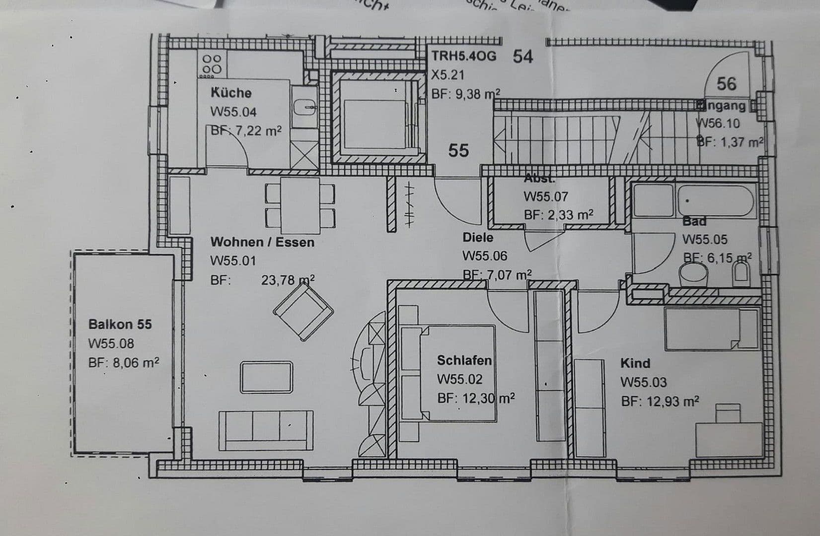
-Byt má celkovo 76 m²
-Podlahové kúrenie v každej miestnosti
-Elektrické rolety v každej miestnosti
-Štedrá terasa s výhľadom na západ
-Terasa je úplne zakrytá a chránená pred vetrom
-Markíza s diaľkovým ovládaním
-Priestranná pivnica s uzamykateľným priestorom
-Priečný zámok
-Sieťky proti hmyzu na všetkých oknách
-Práčovňa v pivničnej časti
-Úložný priestor na bicykle
-Dve parkovacie miesta v podzemnej garáži (v cene bytu nie sú zahrnuté a predávajú sa spolu s bytom). Parkovacie miesto môže byť prenajaté za 100 € za miesto, ak sa nepoužíva.
-Prvé parkovacie miesto vedľa vchodu
-Nábytok zobrazený na obrázkoch je tiež zahrnutý v cene a bez ďalších poplatkov.
Jedna z najobľúbenejších obytných oblastí v Norimberku – Záhrady pri Wöhrd.
V blízkosti centra mesta a jazera Wöhrd.
V bezprostrednej blízkosti sa nachádzajú školy a materské školy, rovnako aj lekári a nákupné možnosti.
Doprava do centra mesta je veľmi dobrá pomocou električky, metra a autobusu.
Najbližšia stanica metra je vzdialená približne 700–750 m, ďalšia 1 km.
Najbližšia zastávka autobusu a električky je vzdialená približne 200–250 m.
Jazero Wöhrd cca. 300 m.
Predaj bytu je plánovaný po 15.03.2026.
V prípade záujmu nám, prosím, pošlite úplné vyhlásenie o kupujúcom.
Nemáme záujem o spoluprácu s realitnými agentúrami.
Byt bol pôvodne plánovaný na 3 izby, avšak na požiadanie prvého majiteľa boli vykonané úpravy, aby ponúkal viac priestoru vo všetkých ohľadoch, ako je zobrazené v pôdoryse.
Samozrejme, môže byť podľa vkusu a prianí upravený.
Cena dohodou.
Parametre nehnuteľnosti
| Vek | Nad 50 rokov |
|---|---|
| Dispozícia | 3+1 |
| Číslo inzerátu | 997789 |
| Cena za jednotku | 6 053 € / m2 |
| Stav | Veľmi dobrý |
|---|---|
| Poschodie | 4. poschodie z 5 |
| Úžitková plocha | 76 m² |
Čo táto nehnuteľnosť ponúka?
| Balkón | |
| Pivnica | |
| Výťah | |
| Terasa |
| Bezbariérový prístup | |
| Garáž | |
| MHD 2 minúty pešo |
V okolí nehnuteľnosti nájdete
Stále hľadáte to pravé?
Nastavte si strážneho psa. Ponuky vybrané na mieru dostanete súhrnne 1× denne e-mailom. S Premium profilom máte po ruke rovno 5 strážcov a keď sa niečo objaví, informujú vás obratom.






















