
Predaj domu • 183 m² bez realitky, Bádensko-Wurttembersko
Samostatný rodinný dom / viacgeneračný dom
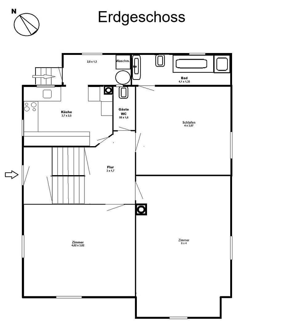
Dom sa rozprestiera na 3 obytných úrovniach a disponuje celkovo 8 izbami, hosťovacie WC, 2 kúpeľňami a 2 novými zabudovanými kuchynskými linkami (2019), ako aj malou záhradou so záhradnou chatou (postavenou z tehál) a dvoma veľkými pivnicami.
V prízemí sa nachádza 3-izbový byt s kuchyňou, kúpeľňou s denným svetlom vybavenou vaňou a sprchou, hosťovacie WC a práčovňa s plynovým kondenzáčnym kotlom (2016).
V 1. nadzemnom podlaží nájdete ďalšie tri izby, druhú kuchyňu, novú kúpeľňu so sprchou s denným svetlom (2019) a prístup na šikmý priestor pod strechou s dvoma ďalšími izbami.
Dom je momentálne uvoľňovaný.
Dom bol priebežne modernizovaný a renovovaný:
2016: nové prípojky pre plyn, vodu a elektrinu, nový plynový kondenzáčný kotol, elektrická inštalácia v nadzemnom podlaží
2019: nová kúpeľňa so sprchou v nadzemnom podlaží a nové zabudované kuchynske linky v prízemí aj nadzemnom podlaží
2022: nové dvere v prízemí, nový laminátový podlahový kryt v podkroví....
Tento všestranne využiteľný dom sa nachádza na strategickom mieste v blízkosti stanice S-Bahn Oberesslingen a je ideálny pre väčšiu rodinu alebo ako viacgeneračný dom. Stanica S-Bahn, autobusová doprava a všetky možnosti nákupu, lekári, materská škola a školy sú v pešej vzdialenosti.
Parametre nehnuteľnosti
| Vek | Nad 50 rokov |
|---|---|
| Číslo inzerátu | 993033 |
| Úžitková plocha | 183 m² |
| Celkové poschodia | 3 |
| Stav | Po rekonštrukcii |
|---|---|
| PENB | C - Hospodárne |
| Plocha pozemku | 300 m² |
| Cena za jednotku | 3 492 € / m2 |
Čo táto nehnuteľnosť ponúka?
| Pivnica |
| MHD 2 minúty pešo |
V okolí nehnuteľnosti nájdete
Stále hľadáte to pravé?
Nastavte si strážneho psa. Ponuky vybrané na mieru dostanete súhrnne 1× denne e-mailom. S Premium profilom máte po ruke rovno 5 strážcov a keď sa niečo objaví, informujú vás obratom.



















