
Predaj domu 4+1 • 120 m² bez realitky, Bádensko-Wurttembersko
Váš nový domov: Pôvabný radový dom v idylickej lokalite.
Vitajte v tomto starostlivo udržiavanom rade domov na Guckenrain v Dettingen unter Teck (PSČ 73265) – v pokojnej, rodinne prívetivej oblasti s vysokým komfortom bývania.
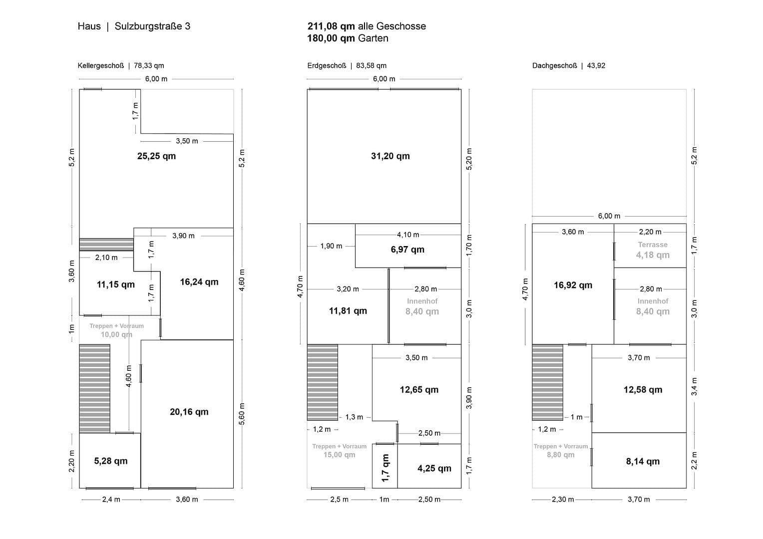
Už pri vstupe vás privíta premyslené riešenie priestorového usporiadania: Hneď vpravo sa nachádza útulná spálňa pre rodičov, ktorú vďaka prilehlému vnútornému dvoru s rozlohou približne 9 m² naplňuje denné svetlo.
Vedľa nej sa nachádza štýlová kúpeľňa so sprchou a vaňou v jednej kombinácii, ako aj samostatná návštevná toaleta.
Pokračovaním rovno sa dostanete do otvorenej jedálne, ktorú dopĺňa samostatne oddelená kuchyňa. Nasledujte chodbu ďalej, kde sa otvára srdce domu – impozantná obývacia izba s vysokými stropmi a oknami od podlahy, ktoré ponúkajú výhľad do záhrady so zachovaným súkromím.
V chladnejších mesiacoch zabezpečuje príjemné teplo v celom obytnom priestore pôvabný pec na špekovom kameni.
Krásnym a dobre udržiavaným dreveným schodiskom sa dostanete do poschodia. Tu vás čaká priestranná kúpeľňa so sprchou, izba pre hostí, kancelária alebo detská izba, ako aj ďalšia priestranná detská izba s prístupom na malý balkón v svetlej nádvorí. Stredomorská atmosféra a premyslená architektúra zabezpečujú, že všetky miestnosti sú prežité prirodzeným svetlom.
V suteréne máte k dispozícii štyri multifunkčné miestnosti – ideálne ako hobby izba, home office, úložný priestor alebo práčovňa. Najväčšia z týchto miestností navyše poskytuje priamy vstup do záhrady.
Vonkajšia časť vás ohromí priestrannou, vetru chránenou slnečnou terasou, ktorá garantuje súkromie a relax. Tu je dosť miesta pre záhradný nábytok, bazén alebo individuálne úpravy. K domu patrí aj podzemné parkovacie miesto, ktoré poskytuje bezpečný priestor pre vaše auto. Okrem toho sú k dispozícii aj ďalšie miesta pre bicykle alebo motocykle, určené na spoločné využitie.
Tento pôvabný dom spája kvalitu bývania s premyslenou architektúrou a pozýva vás, aby ste si vytvorili svoj nový domov. Nechajte sa očariť!
Nehnuteľnosť sa nachádza v atraktívnej lokalite na Guckenrain v Dettingen unter Teck (PSČ 73265), v pokojnej a vyvinutej časti obce na okraji s vysokou rekreačnou hodnotou. Zvýšená poloha ponúka príjemné bývanie a čiastočne aj nádherné výhľady na okolitú prírodu a úpätie Švábskych Alb.
Dettingen unter Teck zaujme vynikajúcou infraštruktúrou a blízkosťou k prírode. Obchody pre každodenné potreby, materské školy, školy, lekári aj gastronomické zariadenia sú v obci dostupné a dosiahnuteľné počas niekoľkých minút. Historické staré mesto Kirchheim unter Teck so svojou pestrou ponukou nákupov a kultúrnych podujatí je vzdialené len niekoľko minút autom.
Okolie ponúka množstvo rekreačných aktivít: prechádzkové a cyklistické trasy, vinice aj turistické chodníky smerujúce k Švábskym Alb sa začínajú takmer priamo od vašich dverí. Zároveň je výborné spojenie s regionálnou aj nadregionálnou dopravnou sieťou. Vďaka blízkosti diaľnic a diaľnice A8 sú Stuttgart, letisko aj výstavné centrá rýchlo dostupné. Verejná doprava poskytuje pravidelné spoje do okolitého regiónu.
Poloha na Guckenrain tak spája pokojné bývanie v blízkosti prírody s vynikajúcou dostupnosťou mestských centier – ideálna pre rodiny, dochádzajúcich pracovníkov aj milovníkov prírody.
Nehnuteľnosť bola nedávno komplexne a kvalitne zrekonštruovaná a prezentuje sa v modernom, no zároveň stredomorskom štýle. Nový, energeticky efektívny vykurovací systém zabezpečuje moderný komfort bývania. Vykurovací koncept dopĺňa pec, ktorá nielen počas chladnejších dní poskytuje príjemné teplo, ale aj vytvára mimoriadne útulnú atmosféru.
Kúpeľňa bola kompletne zrekonštruovaná a ohromuje moderným vybavením, kvalitnými sanitárnymi prvkami a štýlovým dizajnom. Nová dlažba v taliansko-stredomorskom štýle dodáva priestorom elegantnú a zároveň útulnú atmosféru a podčiarkuje prvotriedny celkový dojem z nehnuteľnosti.
Vkusný výber materiálov a čerstvá rekonštrukcia robia z tejto nehnuteľnosti okamžite nasťahovateľný domov, ideálny pre kupujúcich, ktorí kladú dôraz na kvalitu, štýl a komfort.
Parametre nehnuteľnosti
| Vek | Nad 50 rokov |
|---|---|
| Stav | Po rekonštrukcii |
| Číslo inzerátu | 985641 |
| Plocha pozemku | 280 m² |
| Cena za jednotku | 5 583 € / m2 |
| Dostupné od | 30. 1. 2026 |
|---|---|
| Dispozícia | 4+1 |
| Úžitková plocha | 120 m² |
| Celkové poschodia | 1 |
Čo táto nehnuteľnosť ponúka?
| Balkón | |
| Garáž | |
| MHD 1 minúta pešo |
| Pivnica | |
| Parkovanie | |
| Terasa |
V okolí nehnuteľnosti nájdete
Stále hľadáte to pravé?
Nastavte si strážneho psa. Ponuky vybrané na mieru dostanete súhrnne 1× denne e-mailom. S Premium profilom máte po ruke rovno 5 strážcov a keď sa niečo objaví, informujú vás obratom.












