
Predaj bytu 2+1 • 58 m² bez realitky, Dolné Sasko
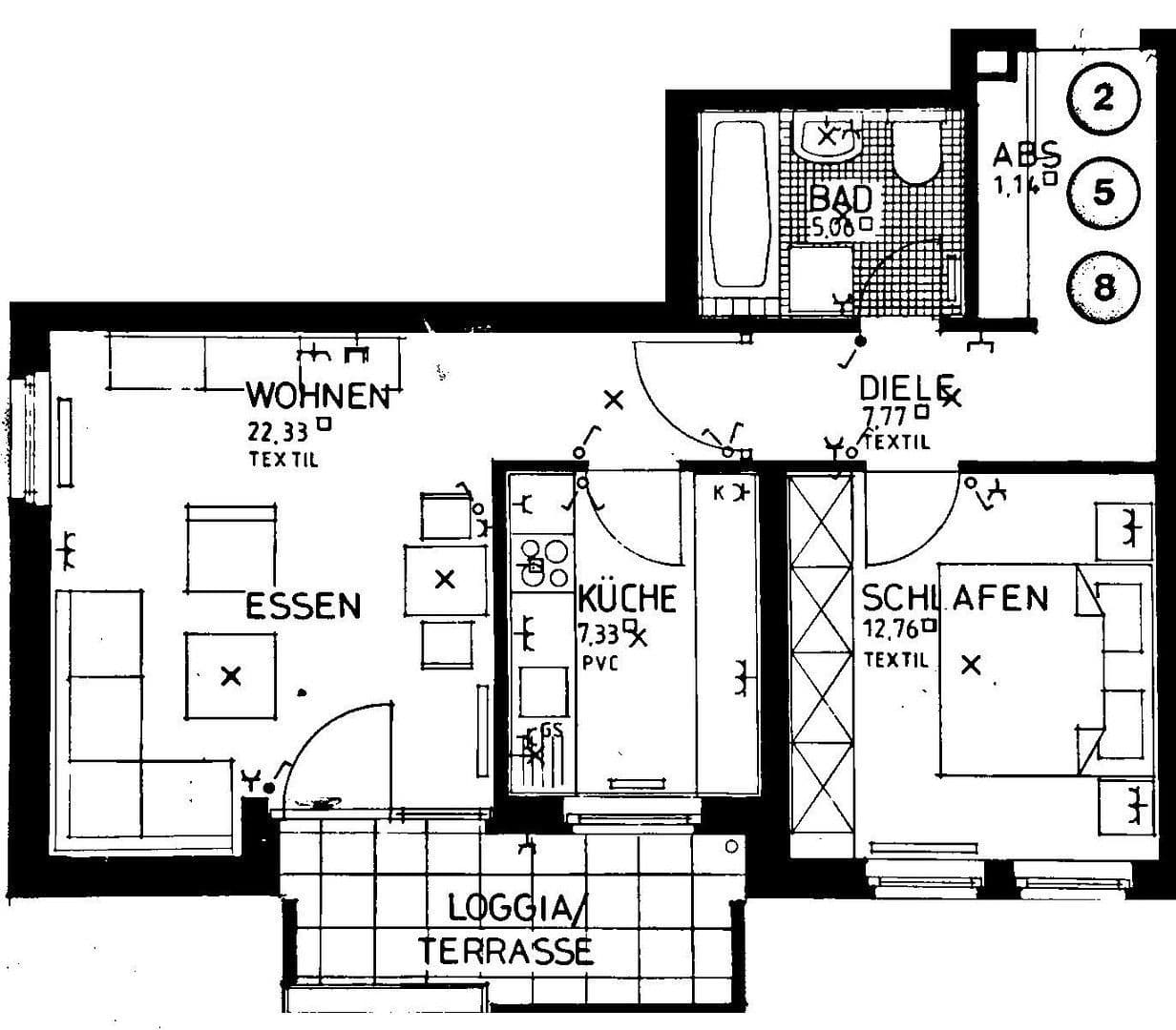
Tento kompletne zrekonštruovaný 2-izbový byt sa nachádza na 2. poschodí udržiavaného viacrodinného domu. S približne 58 m² obytnej plochy a juhozápadnou orientáciou ponúka svetlý a funkčný pôdorys.
Slnečný obývací priestor disponuje priamym prístupom na južný balkón, ktorý je vybavený elektrickou markízou. Veľký strom v lete zabezpečuje príjemnú ochranu pred výhľadom.
V rámci modernizácie boli všetky obytné miestnosti dôkladne prepracované – obývacia izba, predsieň aj spálňa boli vybavené novým parketom. Všetky vnútorné dvere boli obnovené. V kuchyni boli položené kvalitné podlahové dlaždice.
Okrem toho je novinkou vstavaná kuchyňa, ktorá disponuje množstvom vysúvateľných priehrad a úložného priestoru, ako aj elektrospotrebičmi od výrobcov Miele a Bosch. Aj sprchovňa bola počas rekonštrukcie modernizovaná.
Ďalej bola vykonaná technická modernizácia – bola inštalovaná nová domofónna sústava a boli obnovené vypínače a zásuvky. Existujúca zakázková vstavaná skriňa v predsieni bola tiež zrekonštruovaná.
Rekonštrukcia balkóna sa momentálne nachádza vo záverečnej fáze. Boli vykonané podlahové práce, nové dlažby už boli položené. Momentálne prebiehajú posledné maliarské a opravárenské práce.
K bytu patrí aj vlastné parkovacie miesto. Priestranný pozemok je zalesnený starým stromovým porastom a je funkčne členěný. Obyvateľom sú k dispozícii spoločná záhrada, vlastná pivnica a spoločná pivnica určená pre bicykle a sušenie. K dispozícii je aj samostatná, oddelená zóna pre zber odpadu.
Byt je vhodný pre singlov alebo páry. Vďaka atraktívnej lokalite je zaujímavý aj pre kapitálových investorov. Predaj prebieha bez provízie.
Nehnuteľnosť sa nachádza v žiadanej časti Hannover-Ricklingen, len asi desať minút chôdze od zelenej Leinemasch. Poloha spája pokojnú, prírodnú atmosféru bývania s blízkosťou centra mesta. V bezprostrednom okolí budovy sa nachádza rozľahlé, zeleňou obklopené ihrisko.
Doprava verejnou dopravou je vynikajúca: Konečná zastávka autobusových liniek na August-Holweg-Platz, zastávka S-Bahn Bf. Linden/Fischerhof a zastávka MHD Schünemannplatz sú rýchlo dosiahnuteľné a zaisťujú krátke cesty do centra a do okolia. Prostredníctvom blízkych hlavných dopravných ťahov (medzi inými B6 / Westschnellweg) existuje rýchle spojenie smerom do centra, Linden, Herrenhausen ako aj na diaľnice A2 a A7.
Všetky zariadenia dennej potreby sú v blízkosti: lekári, lekárne, školy a materské školy, ako aj možnosti nakupovania – od týždenného trhu, cez supermarkety až po diskontné obchody – sú ľahko dostupné.
Výhody výbavy:
- Slnečný 2-izbový byt na 2. poschodí
- Približne 58 m² obytnej plochy
- Juhozápadná orientácia so svetlým obývacím priestorom
- Priestranný južný balkón s elektrickou markízou a výhľadom do zelene, cca 6 m²
- Novo položený, kvalitný parket
- Nové vnútorné dvere
- Nové podlahové dlaždice v kuchyni
- Kvalitná, nová vstavaná kuchyňa s veľkým úložným priestorom a elektrospotrebičmi od Miele/Bosch
- Modernizovaná sprchovňa, bezbariérová sprcha
- Praktická, priestranná vstavaná skriňa v predsieni
- Spoločná záhrada
- Vlastná pivnica
- Spoločná pivnica pre bicykle/sušenie
- Vlastné parkovacie miesto na pozemku
Predaj bytu prebieha bez provízie pre kupujúceho.
Parametre nehnuteľnosti
| Vek | Nad 50 rokov |
|---|---|
| Stav | Veľmi dobrý |
| Poschodie | 2. poschodie z 3 |
| PENB | C - Hospodárne |
| Cena za jednotku | 3 845 € / m2 |
| Dostupné od | 14. 2. 2026 |
|---|---|
| Dispozícia | 2+1 |
| Číslo inzerátu | 991034 |
| Úžitková plocha | 58 m² |
Čo táto nehnuteľnosť ponúka?
| Balkón | |
| Parkovanie |
| Pivnica | |
| MHD 1 minúta pešo |
V okolí nehnuteľnosti nájdete
Stále hľadáte to pravé?
Nastavte si strážneho psa. Ponuky vybrané na mieru dostanete súhrnne 1× denne e-mailom. S Premium profilom máte po ruke rovno 5 strážcov a keď sa niečo objaví, informujú vás obratom.





















