
Predaj bytu 3+1 • 70 m² bez realitkyGroße Pranke 7b, , Dolné Sasko
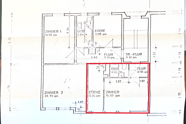
Byt č. 14 v prízemí (vpravo vysoké prízemie) s obytnou plochou 69,4 m² a dobre usporiadaným dispozíciou – patrí k nemu spálňa, obývačka s balkónom a obkladaná dlažbou kúpeľňa s WC, detská izba a kuchyňa so vstavanou kuchynskou linkou. K tomuto bytu patrí aj stredne veľká pivnica. Budova bola postavená v roku 1965 a pravidelne prešla údržbovými zásahmi. Od 01.01.2026 činí domový poplatok 440 €. Budova je zásobená diaľkovým teplom a teplá voda sa vyrába pomocou prebiehového ohrievača.
Viacrodinný dom pozostáva zo stredne umiestneného vstupu, z ktorého vedie do celkovo 6 bytov rozložených do 3 podlaží (prízemie – 2. poschodie). V každom podlaží sú usporiadané po dvoch bytoch.
Energetický preukaz z roku 2019 je k dispozícii. Objekt je označený energetickou spotrebou 126 kWh/m² ročne.
Dostupnosť infraštruktúry je veľmi dobrá…
Materské školy, základné školy, špecialisti i všeobecní lekári, ako aj nákupné možnosti sú v bezprostrednej blízkosti. Spojenie s verejnou dopravou – autobusy a vlaky – je optimálne. Letisko Hannover / Langenhagen a centrum Hannoveru sú autom dosiahnuteľné za 15 minút.
Nákupné možnosti sú dostupné pešo (Netto) a v Garbsene, kde sú k dispozícii všetky veľké supermarkety (Kaufland, Edeka, nákupné centrum) pre väčšie nákupy. Les v mestskej časti Marienwerder láka na prechádzky.
Byt bol zrenovovaný pred predposlednou zmenou nájomníkov. Bola inštalovaná vstavaná kuchynská linka, položený laminát (v obývačke, detskej izbe a spálni) a v kúpeľni, na chodbách a v kuchyni boli položené podlahové dlažby. V roku 2023 boli zrenovované schodisko a namontované nové dvere do domu aj bytu.
Všetky okná sú vybavené elektrickými žalúziami.
(Nejde o štandardný stav)
Parametre nehnuteľnosti
| Vek | Nad 50 rokov |
|---|---|
| Dispozícia | 3+1 |
| PENB | D - Menej hospodárne |
| Cena za jednotku | 2 686 € / m2 |
| Stav | Dobrý |
|---|---|
| Číslo inzerátu | 983490 |
| Úžitková plocha | 70 m² |
Čo táto nehnuteľnosť ponúka?
| Balkón | |
| MHD 3 minúty pešo |
| Pivnica |
V okolí nehnuteľnosti nájdete
Stále hľadáte to pravé?
Nastavte si strážneho psa. Ponuky vybrané na mieru dostanete súhrnne 1× denne e-mailom. S Premium profilom máte po ruke rovno 5 strážcov a keď sa niečo objaví, informujú vás obratom.






