
Predaj bytu 2+kk • 66 m² bez realitkyTorstraße 220 Berlin Mitte Berlin 10115
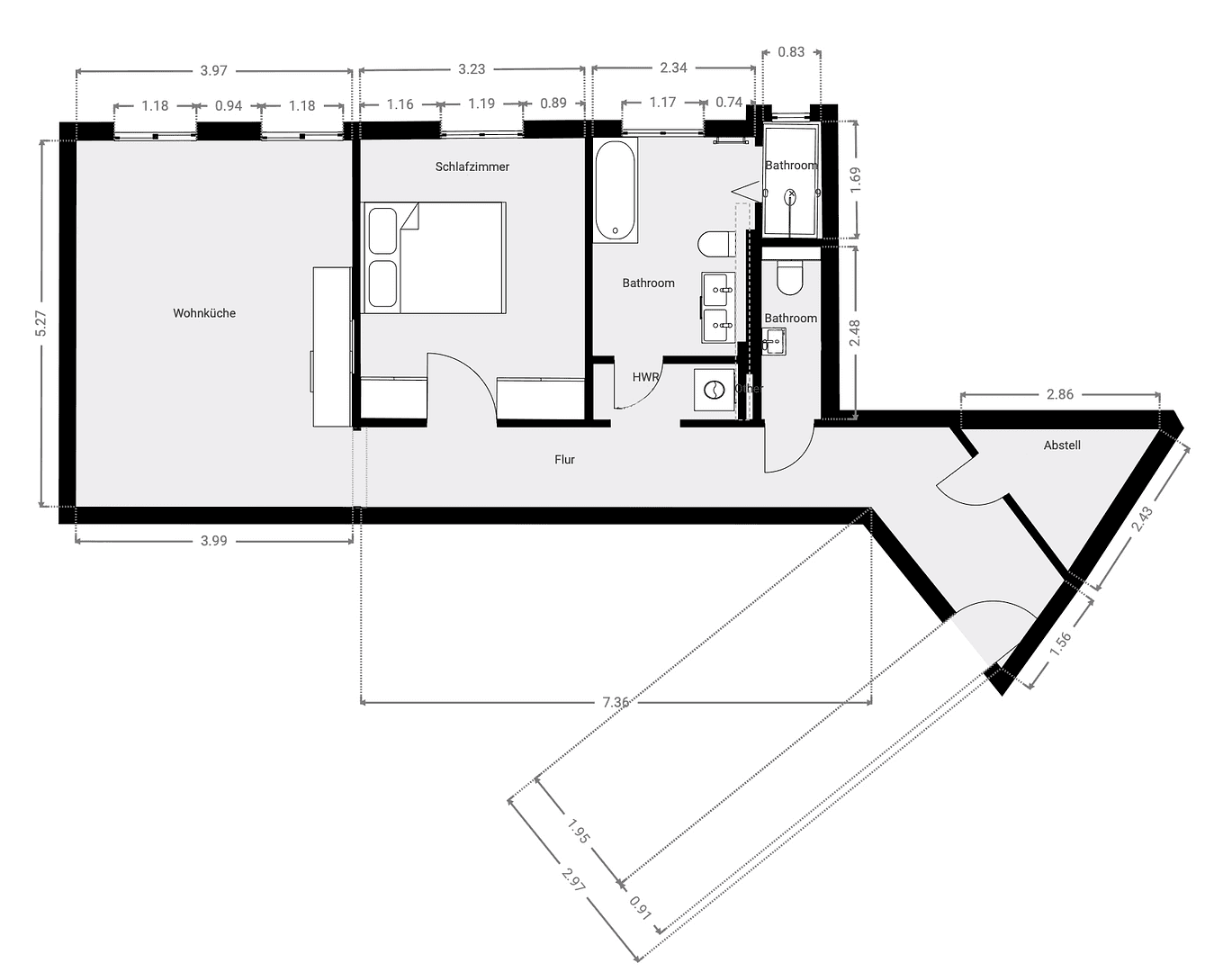
Torstraße 220 Berlin Mitte Berlin 10115MHD 2 minúty pešoTento mimoriadne kvalitne zrekonštruovaný starý byt sa nachádza v 2. poschodí památkovo chráneného domu zo zakladateľského obdobia z roku 1900 v Torstraße v Berlíne-Mitte. Byt zaujme okamžite svojimi pôsobivými výškami stropov okolo 360 cm a zrekonštruovaným historickým omietkovým štukom, ktorý objektu dodáva osobitnú veľkorysosť a eleganciu. Na približne 66 m² bol realizovaný moderný koncept bývania, ktorý kombinuje čaro staršieho domu s moderným dizajnom. Novo položená dubová parketa s rybou kostrou zaručuje teplú a vysoko kvalitnú atmosféru. Z chodby vedú všetky izby dokonale prepojené: najprv praktická komora, za ktorou nasleduje štýlová hosťovská toaleta s designovou tapetou. Potom sa dostanete do domácej práčovne s integrovaným pripojením pre práčku a množstvom úložného priestoru. Veľká kúpeľňa je absolútnym vrcholom bytu. Ručne vyrábané cementové dlaždice, kvalitná keramika na stenu, umývadlová batéria od Duravit, čierne armatúry od Steinberg a vstavaná sprchová zóna pod zrekonštruovaným oblúkom z tehál vytvárajú exkluzívne, hotelové prostredie. Vaňa a priestranná sprcha sú navrhnuté v harmonickom celkovom dizajne. Pokojná spálňa ponúka vďaka vysokým oknám a štukovanej strope príjemnú atmosféru na odpočinok. Na konci chodby sa otvára osvetlená obývacia a kuchynská časť, ktorá zaujme veľkým stropným priestorm a výhľadom do dvora. Zobrazená kuchyňa je súčasťou profesionálneho home-stagingu a slúži pre lepšiu predstavu o priestore; všetky prípojky pre individuálne riešenie kuchyne sú pripravené. Zobrazený nábytok a doplnky nie sú súčasťou predajnej ceny, môžu sa však na požiadanie zakúpiť samostatne. Nové plynové kotlove vybavenie, kvalitné značkové produkty a premyslený celkový koncept dotvárajú túto výnimočnú nehnuteľnosť.
Tento byt je dokonalou voľbou pre kupujúcich, ktorí hľadajú dizajn, vysoko kvalitnú rekonštrukciu a autentické kúzlo starých budov priamo v srdci Berlína.
Byt sa nachádza v absolútnej skvelej lokalite Berlína-Mitte, priamo na slávnej Torstraße – jednej z najživších a najžiadanejších lokalít hlavného mesta. Málo uličiek symbolizuje moderný, kreatívny a medzinárodný Berlín tak ako Torstraße: tu sa stretáva scéna, gastronómia, dizajn, architektúra a mestský životný štýl.
V bezprostrednom okolí sa nachádzajú módne kaviarne, kvalitné reštaurácie, bary, concept obchody, galérie a malé butiky – všetko, čo dnes definuje Berlín-Mitte. Okolie je charakteristické historickým stavbou starých budov, súčasnou architektúrou a jedinečnou kultúrnou rozmanitosťou. Doprava je vynikajúca: niekoľko električkových a metro liniek (okrem iného U8, U2, U6 a rôzne električkové linky) je dosiahnuteľných pešo za pár minút. Prostredníctvom Alexanderplatz, Rosenthaler Platz alebo Hackeschen Markt sa dostanete v priebehu krátkej doby ku všetkým hlavným uzlom mesta. Súčasne ponúkajú pokojné bočné uličky, zeleňou obklopené nádvoria a množstvo malých parkov v okolí príjemné možnosti úniku z mestského zhonu. Torstraße patrí medzi ulice, ktoré v posledných rokoch zažili obrovské zhodnotenie a dnes sa považujú za prémiovú lokalitu pre byty, a to nielen pre vlastníkov, ale aj pre investorov. Skrátka: jedna z najžiadanejších, najživších a hodnotovo najstabilnejších lokalít Berlína – mestská, autentická, centrálná a plná charakteru.
• Kompletná rekonštrukcia 2025 – prvé nasťahovanie po rekonštrukcii
• Impozantná výška stropu približne 360 cm so zrekonštruovanými štukovanými prvkami
• Novo položená dubová parketa s rybou kostrou (PARAT, prírodný olej/vosk)
• Kvalitné plynové kotlové vybavenie (nové 2025)
• Pamätkovo chránený dom zo zakladateľského obdobia z roku 1890 (ochrana celého komplexu)
• Veľká dizajnérska kúpeľňa s:
– ručne vyrábanými cementovými dlaždicami
– nástennými dlaždicami „Lume Bone Lux“
– umývadlom od Duravit Qatego
– čiernymi armatúrami od Steinberg
– vaňou a priestrannou sprchou
– vstavanou sprchovou zónou pod historickým tehálovým oblúkom
• Samostatná hosťovská toaleta s kvalitnou dizajnovou tapetou od Hooked on Walls
• Domáca práčovňa (HWR) s pripojením pre práčku a úložným priestorom
• Moderné nové elektrické inštalácie a nové svetelné body
• Kvalitné drevené dvere s čiernymi okovými prvkami
• Praktická komora priamo pri vstupe
• Otvorená obývacia a kuchynská časť orientovaná do dvora
• Zobrazená kuchyňa slúži na home-staging – prípojky pre vstavanú kuchyňu sú pripravené
• Všetok nábytok, lampy a dekorácie nie sú zahrnuté v predajnej cene a môžu byť zakúpené samostatne na požiadanie
• Pokojná spálňa so štukom, vysokými oknami a elegantnou atmosférou
• K dispozícii je aj pivničné úložisko
• Miestá pre bicykle vo vnútornej dvore
• Mimoriadne žiadaná lokalita na slávnej Torstraße – priamo v srdci Berlína-Mitte
Zaujal vás tento inzerát?
Tešíme sa na vašu požiadavku. Prosím, využite na to kontaktný formulár alebo nám zavolajte, ak si želáte ďalšie informácie alebo dohodnúť si termín prehliadky.
Tento inzerát je ponúkaný priamo majiteľom a je bez provízie.
Všetky údaje boli zostavené podľa najlepších vedomostí. Za úplnosť, správnosť a aktuálnosť však nezodpovedáme.
Parametre nehnuteľnosti
| Vek | Nad 50 rokov |
|---|---|
| Stav | Po rekonštrukcii |
| Poschodie | 2. poschodie z 5 |
| PENB | D - Menej hospodárne |
| Cena za jednotku | 8 182 € / m2 |
| Dostupné od | 19. 2. 2026 |
|---|---|
| Dispozícia | 2+kk |
| Číslo inzerátu | 990973 |
| Úžitková plocha | 66 m² |
Čo táto nehnuteľnosť ponúka?
| Pivnica |
| MHD 2 minúty pešo |
V okolí nehnuteľnosti nájdete




Predaj bytuAlt Pichelsdorf 33a Wilhelmstadt-Spandau Wilhelmstadt Berlin 13595- 3+1
- 86 m²
499 000 € + 540 €
Stále hľadáte to pravé?
Nastavte si strážneho psa. Ponuky vybrané na mieru dostanete súhrnne 1× denne e-mailom. S Premium profilom máte po ruke rovno 5 strážcov a keď sa niečo objaví, informujú vás obratom.





















