
Predaj bytu 3+1 • 88 m² bez realitkyAnnastr.48, , Hesensko
Táto zmodernizovaná trojizbová prízemná bytosť je ideálna pre majiteľov, ktorí hľadajú neprovíznu a reálne financovateľnú nehnuteľnosť.
Vstavaná kuchyňa, parkovacie miesto, pivnica aj dodatočný úložný priestor sú už zahrnuté v kúpnej cene.
Byt sa nachádza v upravovanej obytné zástavbe a bol komplexne zmodernizovaný.
Elektrina, rozvody, podlahy, kúpeľňa a kuchyňa boli obnovené. Byt môžete nasťahovať bez ďalších investícií.
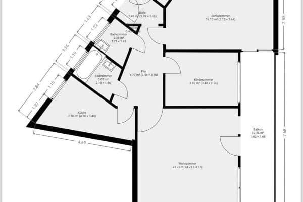
Rozloženie izieb je funkčné a vhodné na každodenné bývanie:
- Obývačka s prístupom na balkón
- Dve dobre usporiadané spálne
- Samostatná kuchyňa s modernou vstavanou kuchyňou
- Zmodernizovaná kúpeľňa
K bytu patrí navyše:
- Parkovacie miesto pre osobné auto
- Priestranná pivnica
- Dodatočný skladovací priestor v podkroví
Vybavenie
- Prízemie
- 3 izby
- Moderná vstavaná kuchyňa vrátane vybavenia
- Balkón
- Parkovacie miesto
- Pivnica + dodatočný úložný priestor
- Zmodernizovaná elektrina a rozvody
- Udržiavané spoločné vlastníctvo
- Bez provízie.
Aktuálne uvádzané domové poplatky obsahujú dočasne zvýšenú zálohu vyplývajúcu z predchádzajúceho obdobia spotreby. Pri bežnom vlastnom bývaní sa dá očakávať nižšie pravidelné zaťaženie. Detaily s radosťou vysvetlíme osobne.
Nehnuteľnosť sa nachádza v meste Langen, v žiadanej lokalite, ktorá ponúka ideálnu kombináciu pokoja a centrálneho napojenia. Železničná stanica Langen so S-Bahn a regionálnymi spojmi do Frankfurtu, Darmstadtu a Offenbachu je vzdialená len niekoľko minút, a taktiež sú diaľnice A5 a A661 rýchlo dostupné, takže je výborné spojenie s celým regiónom Rhein-Main.
Obchodné príležitosti, supermarkety, pekárne a lekárne sú v pešej vzdialenosti, rovnako ako materské školy, základné školy a zdravotná starostlivosť, čo robí lokalitu mimoriadne atraktívnou najmä pre rodiny.
Pre voľný čas a oddych ponúkajú blízke zelené plochy, ihriská aj Langenské Waldsee, ktorý je v krátkej dojazdovej vzdialenosti obľúbeným výletným cieľom. Kaviarne, reštaurácie a pestrá ponuka športových a spoločenských aktivít navyše prispievajú k vysokej kvalite života.
Sama lokalita sa vyznačuje upraveným a priateľským obytným prostredím, charakterizovaným rodinnými domami, byty vo vlastníctve aj modernými rezidenčnými projektmi, čo vytvára príjemnú a zároveň centrálnu atmosféru obyvania.
Mesto Langen s viac ako 39 000 obyvateľmi leží len 13 km južne od Frankfurtu v okrese Offenbach. Výhodná poloha v srdci regiónu Rhein-Main a veľmi dobré dopravné spojenie na diaľnice A3, A5 a A661, ako aj na letisko vo Frankfurte, si získavajú veľkú obľubu.
Lekáreň, diskont potravín, všeobecný lekár, materská škola, základná škola, stredná škola, verejná doprava
Parametre nehnuteľnosti
| Vek | Nad 50 rokov |
|---|---|
| Dispozícia | 3+1 |
| PENB | D - Menej hospodárne |
| Cena za jednotku | 3 977 € / m2 |
| Stav | Veľmi dobrý |
|---|---|
| Číslo inzerátu | 989983 |
| Úžitková plocha | 88 m² |
Čo táto nehnuteľnosť ponúka?
| Balkón | |
| Parkovanie |
| Pivnica | |
| MHD 0 minút pešo |
V okolí nehnuteľnosti nájdete
Stále hľadáte to pravé?
Nastavte si strážneho psa. Ponuky vybrané na mieru dostanete súhrnne 1× denne e-mailom. S Premium profilom máte po ruke rovno 5 strážcov a keď sa niečo objaví, informujú vás obratom.

















