
Predaj bytu 3+1 • 85 m² bez realitky, Hesensko
Highlights zmodernizovaného bytu:
- Prvé nadobudnutie po modernizácii
- Zmodernizovaný 3-izbový byt v centrálnej časti Mörfelden-Walldorf
- Slnečná južná loggia s pekným výhľadom
- Veľký, svetlý obývací priestor
- Dve spálne
- Zmodernizovaná kúpeľňa
- Zmodernizovaná návštevná toaleta
- Ideálny na vlastné bývanie
- Atraktívny pre investorov: vhodný aj na zdieľané bývanie a s nadpriemerným výnosom
- Výťah v dome
- Bezbariérový prístup
- Súkromná pivnica a vonkajšie parkovacie miesto pre auto
- Spoločná práčovňa a pivnica pre bicykle na spoločné využitie
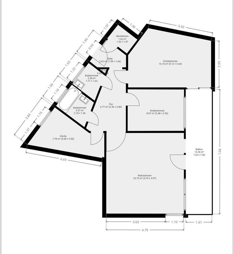
V centrálnej časti Mörfelden-Walldorf na vás čaká tento čerstvo zmodernizovaný 3-izbový byt so slnečnou južnou loggiou v udržiavanom viacrodinnom dome. Vďaka výťahu sa pohodlne dostanete do svojho nového domova. Prvé nadobudnutie po modernizácii umožňuje bývanie na súčasnej úrovni.
Priestranná predsieň vedie k moderne zariadeným, prehľadne rozloženým obytným priestorom: zmodernizovanej návštevnej toalete, zmodernizovanej kúpeľni a k veľkému, svetlému obývaciemu priestoru s prístupom na južnú loggiu a širokým výhľadom do regiónu. Dve pokojné spálne ponúkajú flexibilné možnosti využitia a komfort – jedna z nich má priamy vstup na loggiu.
Byt je ideálny na vlastné bývanie, no vďaka atraktívnej dispozícii je vhodný aj pre zdieľané bývanie, čo ho robí zvlášť zaujímavým pre investorov. Vďaka svojej polohe a vybaveniu ponúka nadpriemerný výhľad na výnos.
Súkromná pivnica, vonkajšie parkovacie miesto a spoločná práčovňa s pivnicou na bicykle dokonale dopĺňajú túto atraktívnu ponuku bývania.
Mörfelden-Walldorf sa vyznačuje centrálnou polohou v regióne Rýn-Majnske, v trojuholníku medzi južnohessijskými veľkomestami Frankfurt nad Mohanom, Darmstadtom a Wiesbadenom a južne od frankfurtského letiska. Letisko aj centrum Frankfurtu sú rýchlo dostupné vlakom, autobusom aj autom. Zároveň mesto charakterizujú okolité lúky a lesy. Napríklad susedná obec Mönchbruch – bývalé lovecké územie vojvodcov Hessenska v Darmstadte a dnes druhá najväčšia prírodná rezervácia Hessenska – je vyhľadávanou rekreačnou oblasťou. Číha tu množstvo športovísk, klubov, rovnako aj Walldorfer Badesee, Langener Waldsee a lesné kúpalisko v časti Mörfelden, čo všetko prispieva k vysokej úrovni voľnočasových aktivít. Všetky obchody, reštaurácie, materské školy a školy sú v bezprostrednej blízkosti. Napojenie na medziregionálnu cestnú sieť (A5, A67, B44, B486 a L3113) je veľmi dobré. Autom trvá cesta do Frankfurtu nad Mohanom, Wiesbadenu a Darmstadtu približne 15 minút. Na frankfurtské letisko je to asi 10 minút a do Medzinárodnej školy vo Frankfurte nad Mohanom približne 20 minút. Obchody bežných denných potrieb sa nachádzajú v bezprostrednej blízkosti bytu.
Parametre nehnuteľnosti
| Vek | Nad 50 rokov |
|---|---|
| Stav | Po rekonštrukcii |
| Poschodie | 5. poschodie z 7 |
| PENB | D - Menej hospodárne |
| Cena za jednotku | 3 494 € / m2 |
| Dostupné od | 1. 2. 2026 |
|---|---|
| Dispozícia | 3+1 |
| Číslo inzerátu | 986274 |
| Úžitková plocha | 85 m² |
Čo táto nehnuteľnosť ponúka?
| Balkón | |
| Pivnica | |
| Parkovanie |
| Bezbariérový prístup | |
| Výťah | |
| MHD 1 minúta pešo |
V okolí nehnuteľnosti nájdete
Stále hľadáte to pravé?
Nastavte si strážneho psa. Ponuky vybrané na mieru dostanete súhrnne 1× denne e-mailom. S Premium profilom máte po ruke rovno 5 strážcov a keď sa niečo objaví, informujú vás obratom.










































