
Predaj bytu 3+1 • 111 m² bez realitkyHamburg Stellingen Hamburg 22527
Hamburg Stellingen Hamburg 22527MHD 3 minúty pešo • VýťahOtvorený koncept priestoru stretáva exkluzívny komfort
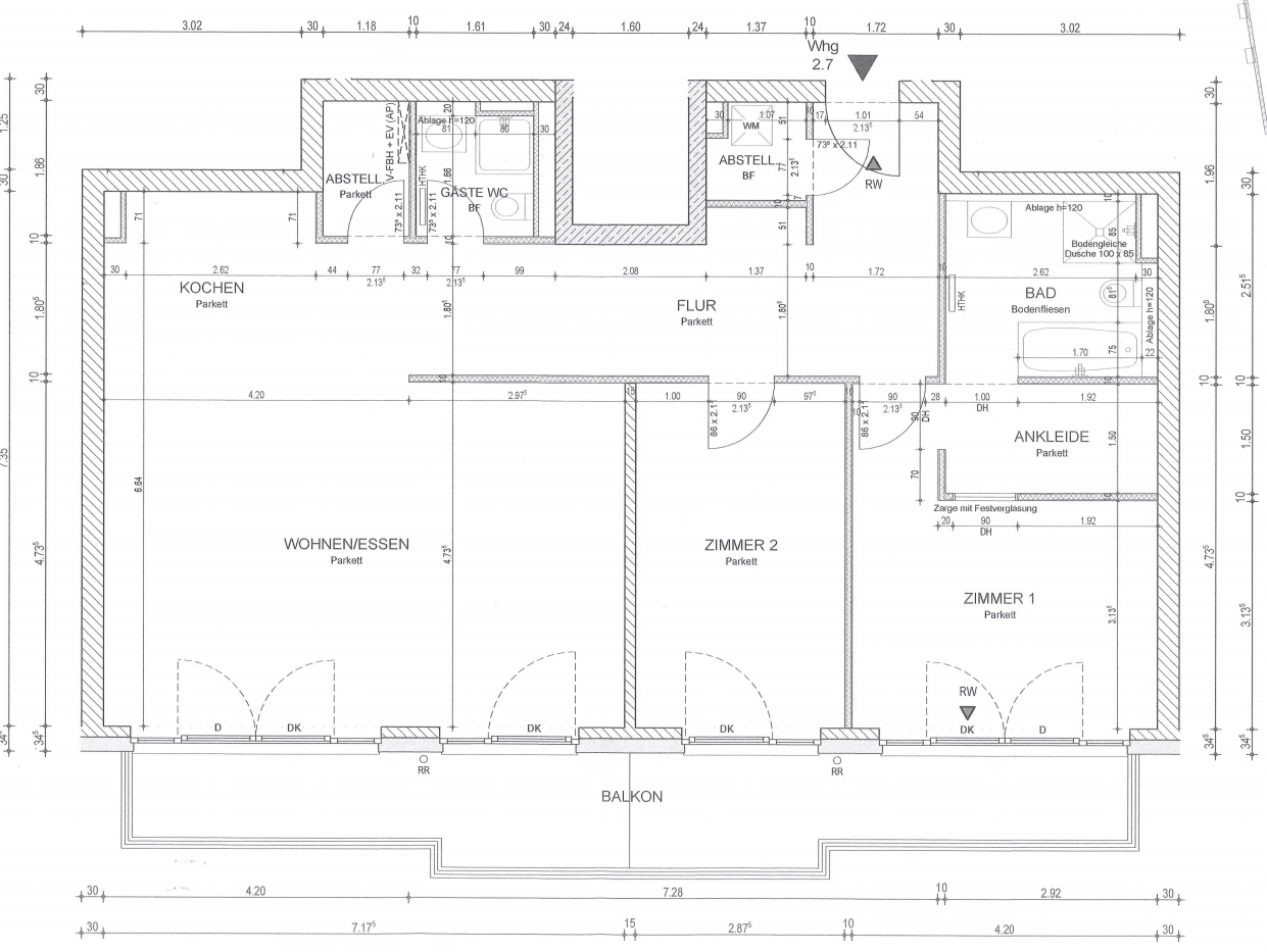
Vitajte v byte, ktorého premyslený koncept priestoru dokonale odráža moderný životný štýl náročných singlov a párov. Tu sa spájajú otvorená rozľahlosť, maximálna flexibilita a súkromné útočiská.
USP: Otvorenosť, svetlo a výhľad
Štýlový viacfamilijný dom (2016) v modernej architektúre ponúka vďaka svetlej fasáde a podlahovým oknám vzdušné prostredie. Na 2. poschodí tento skoro nový, výnimočný byt optimálne zachytáva svetlo: Všetky izby majú prístup na priestranný balkón orientovaný na juh, pričom trojnásobne zasklené okná napĺňajú miestnosti jasným, širokým denným svetlom. Tichý výťah je samozrejmosťou.
Srdce bytu: Obývanie a varenie na 40 m²
Takmer 40 m² veľká, svetlom naplnená obývacia a jedáleň je centrálnym miestom stretnutí. Prvotriedna, otvorená Häcker kuchyňa s indukčnou varnou doskou Bora (integrovaná odsávačka) a vysoko kvalitnými značkovými spotrebičmi (Bosch) predstavuje funkčný dizajnový klenot. Priľahlá spižiareň dodáva usporiadanú eleganciu.
Zónovanie: Súkromná suite a flexibilita
Koncept vytvára jasné, luxusné zóny:
Exkluzívna hlavná časť tvorí súkromná suite s prezliekovňou (mierne vyrábané skrine) a luxusnou en-suite hlavnou kúpeľňou (vaňa a sprchovací kút bez prahu).
Samostatná druhá izba predstavuje ideálnu odpoveď na novú formu práce: ideálna ako reprezentatívna domáca kancelária alebo štýlová izba pre hostí.
Vyššia výbava a komfort
Vyšší nárok sa prejavuje v materiáloch, ako je dubová parketa a veľkoformátové dlaždice. Ohrev podlahou (kombinácia slnečnou podporou zo zahrievaného plynového centrálneho kúrenia) zabezpečuje komfortné teplo. Samostatná kúpeľňa pre hostí, úložňa s prípojkou pre práčku, súkromný pivnica a spoločná miestnosť pre bicykle dokonale dopĺňajú premyslený celkový balík.
Záver: Dizajnová orientácia, maximálna flexibilita a vysoký životný komfort – ideálne pre moderné nároky.
Stellingen: Mestský životný štýl stretáva zelenú idylu – Vaše miesto v Hamburgu na západe
Predstavte si, že bývate tam, kde Hamburg nachádza odpočinok, bez toho aby ste museli vzdať pulzu mesta. Pokojné, stromami lemované ulice okolo Tierparku Hagenbeck ponúkajú presne tú exkluzivitu a relax, ktorú hľadajte po dni strávenom v centre. Či už ako single, pár alebo malá rodina – tu nájdete ideálnu rovnováhu medzi útočiskom a mestským hotspotom.
Najlepšie napojenie pre dochádzajúcich aj objavovateľov
Vaše spojenie s trendovými štvrťami Hamburgu je neprekonateľné:
Mobilita: Cca 5-6 minútou na bicykli sa dostanete na stanicu U-Bahn Hagenbecks Tierpark alebo S-Bahn Stellingen. Odtiaľ ste vzdialení len cca 15 minút od hlavnej stanice.
Výhľad do budúcnosti: S novou linkou U5, ktorá už okolo roku 2032 zastaví priamo pred dverami, a vznikajúcim „Novým centrom Stellingen“ nezískate len na kvalite života vďaka novým kaviarňam a trhom, ale zároveň investujete do lokality s obrovským potenciálom rastu hodnoty.
Flexibilita: Vďaka prístupovej ceste Stellingen ste okamžite na diaľnici A7 – a napriek modernému „Stellinger decklu“ si zároveň užívate absolútny pokoj.
Voľný čas priamo pred dverami: Medzi bežeckou trasou a štýlovou štvrťou
Kto tu býva, nemusí sa rozhodovať. O víkende lákajú kaviarne v Eimsbüttelu, Eppendorfe alebo Ottensene, ktoré sú vzdialené len pár krokov. Ak túžite po hlbšom nádychu, využite zelenú rozmanitosť priamo vo vašom okolí:
Šport a príroda: Beh v Altonaer Volkspark, dlhé prechádzky v Niendorfer Gehege alebo cyklistický výlet cez „Stellinger Schweiz“.
Čistý relax: Kde kedysi hučala diaľnica, priamo vo vašom susedstve vzniká nová, sýtá zeleň parkovo-záhradná krajina na diaľničnom moste.
To najlepšie zo všetkých svetov
Nezáleží na tom, či hľadáte prvé spoločné hniezdo pre malú rodinu alebo ako pár oceňujete rýchly prístup do štýlových štvrťí: Táto lokalita vám poskytuje potrebný pokoj pre home office, dokonalú infraštruktúru pre každodenný život a nespočetné možnosti športu a oddychu v zelene.
Tu neplatí len bývanie – tu ste skutočne doma.
- En Suite hlavná kúpeľňa s prístupnou sprchou, vaňou a ohrievačom uterákov (Grohe, Keramag)
- En Suite prezliekovňa s veľkou vstavanou skriňou
- Priestranný, slnečný obývací a jedálenský priestor (cca 40 m²)
- Vysoko kvalitná Häcker zabudovaná kuchyňa vrátane značkových spotrebičov (Bora, Bosch)
- Kúpeľňa pre hostí vrátane prístupnej sprchy a ohrievača uterákov (Grohe, Keramag)
- Prírodný dubový parket vo všetkých obytných priestoroch
- Keramické dlaždice vo oboch kúpeľniach a praní
- Samostatná práčovňa vrátane prípojky pre práčku
- Pohodlná spižiareň pri kuchyni
- Veľké balkónové dvere v každej izbe umožňujú prístup na 19 m² veľký južný balkón
- Podlahové okná s trojnásobným zasklením a slnečnou ochranou vo všetkých izbách
- KNX Smart Home inštalácia s ovládaním kúrenia a osvetlenia cez aplikáciu
- Dostupné optické pripojenie s možnosťou rýchlosti až 1 000 Mbit/s
- Podlahové kúrenie vo všetkých miestnostiach (okrem práčovne)
- Prémiová balkónová solárna elektráreň s 1 kWh batériou šetrí až 25 % ročných nákladov na elektrinu
- Vysoko kvalitné bezpečnostné vstupné dvere vrátane zvukovej a prievetrávacej ochrany
- Videodverová interkomová sústava
- Výťah umožňujúci takmer bezbariérové bývanie
- Uzamykateľná pivnica s plochou cca 5 m²
- Spoločný cyklistický kôlň pre zdieľané použitie
Parametre nehnuteľnosti
| Vek | Nad 50 rokov |
|---|---|
| Dispozícia | 3+1 |
| Číslo inzerátu | 977313 |
| Úžitková plocha | 111 m² |
| Stav | Veľmi dobrý |
|---|---|
| Poschodie | 2. poschodie z 2 |
| PENB | B - Veľmi úsporné |
| Cena za jednotku | 7 198 € / m2 |
Čo táto nehnuteľnosť ponúka?
| Balkón | |
| Výťah |
| Pivnica | |
| MHD 3 minúty pešo |
V okolí nehnuteľnosti nájdete
Stále hľadáte to pravé?
Nastavte si strážneho psa. Ponuky vybrané na mieru dostanete súhrnne 1× denne e-mailom. S Premium profilom máte po ruke rovno 5 strážcov a keď sa niečo objaví, informujú vás obratom.




















