
Predaj bytu 3+1 • 94 m² bez realitkyMünchen Johanneskirchen Bayern 81927
Die lichtdurchflutete 3-izbová mezonétová bytosť v 3. a 4. poschodí udržiavaného viacrodinného domu na ulici Preziosastr. 5a ponúka s približne 93,3 m² obytného priestoru ideálny domov pre rodiny, páry s potrebom väčšieho priestoru alebo náročných singlov. Oceníte ju pre inteligentné, priestranné rozloženie, množstvo svetla a vysoko kvalitné vybavenie. Koncepcia bývania je jasne zameraná na celkové pohodlie.
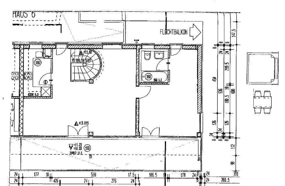
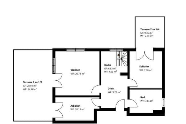
Jadrom bytu je svetlom naplnený obývací priestor na štvrtom poschodí (približne 30 m²) s vysokým stropom a priamym vstupom na priestrannú strešnú terasu, ktorá sa takmer dá využiť ako štvrtá izba. Štvrté poschodie je dostupné z bytu cez špirálové schody a samo o sebe nemá vonkajší vstup. Vďaka orientácii na východ panuje aj počas teplých letných dní príjemná klima. Dve priestranné markízy navyše poskytujú tieň a súkromie – ideálne na raňajky alebo relax po práci.
Samostatná kuchyňa je vybavená vysoko kvalitnou zabudovanou kuchynskou linkou značky Schüller (2010), granitovou pracovnou doskou a elektrospotrebičmi od spoločností Siemens a Miele. Veľká časť spotrebičov bola v posledných piatich rokoch nahradená.
Obe priestranné spálne (19,6 m² resp. 16,2 m²) sú orientované na východ a ponúkajú flexibilné využitie ako detské izby alebo pracovňa. Na rozdiel od pôvodného pôdorysu bola na 4. poschodí odstránená príčka medzi miestnosťou v pôdoryse označenou ako „šatník“ a spálňou, čo výrazne zlepšilo pocit priestrannosti. Ku každej spálni patrí vlastná kúpeľňa so sprchou, umývadlom, zrkadlovou skriňou a záchodom. Obe kúpeľne boli v roku 2012 resp. 2013 komplexne zmodernizované. Kúpeľňa s denným svetlom na 4. poschodí ponúka miesto pre práčku aj sušičku (zahŕňané v kúpnej cene). Vnútorná kúpeľňa na 3. poschodí je vetraná motorovým ventilátorom a je dobre osvetlená piatimi LED stropnými svietidlami.
K bytu patrí aj pivničný priestor a parkovacie miesto (nejde o duplex). Pre parkovacie miesto už existuje povolenie na inštaláciu wallboxu.
Byt aj budova boli priebežne modernizované a nachádzajú sa vo veľmi dobrom stave. Táto pôvabná mezo-netová jednotka dokonale spája priestor, svetlo a funkčnosť a je atraktívna ako pre majiteľov, tak aj pre investorov.
Ulica Preziosastraße sa nachádza v žiadanom mníchovskom obvode Bogenhausen, v rodinne prívetivej štvrti Johanneskirchen. Táto štvrť je známa svojím moderným mestským plánovaním, priestrannými zelenými plochami, doprave upokojovanými oblasťami a živou susedskou komunitou.
Obytná štvrť Freischützstraße, navrhnutá spoločnosťou Steidle + Partner, je považovaná za architektonický skvost mestskej kultúry bývania. V bezprostrednom okolí sa nachádzajú ihriská a športoviská, materské školy aj základná škola, ktoré sú všetky dostupné bez potreby prechádzania rušných ulíc. Reálna škola a gymnázium sú vzdialené približne 15 minút pešo, pričom Waldorfská škola je vzdialená 6 minút autom alebo 8 minút bicyklom.
Pre každodenné potreby sú k dispozícii dve blízke nákupné centrá so supermarketmi, obchodmi, reštauráciami a pivnicou. Aj Anglická záhrada je len na krátku prechádzku – za 20 minút sa dostanete k mlynu Emmeramsmühle, bráne do Isarauen a rozľahlým zeleným plochám.
Dopravná dostupnosť je vynikajúca: S-Bahn stanica Johanneskirchen (8 minút pešo) zabezpečuje spojenie s hlavným nádražím a letiskom za približne 20 minút. Autobusové a električkové linky sa tiež nachádzajú v blízkosti. Autom sa za 10 minút dostanete na diaľnicu A9 smer Nürnberg. Napriek výbornému spojeniu však lokalita zostáva príjemne pokojná.
Na voľnočasové aktivity lákajú Feringasee na severe, brehy Isaru na západe a Cosimabad na juhu, ktoré sú všetky pohodlne dostupné bicyklom alebo električkou.
Johanneskirchen a obytná štvrť Freischützstraße predstavujú moderné, udržateľné a rodinne orientované bývanie, a preto sú ideálne pre všetkých, ktorí chcú kombinovať mestský život s nádychom prírody.
V kúpnej cene sú zahrnuté zabudovaná kuchynská linka, markízy, práčka + sušička (Miele) a niekoľko na mieru vyrobených kusov nábytku či zariadení.
Byt je možné nastahovať od začiatku marca.
Parametre nehnuteľnosti
| Vek | Nad 50 rokov |
|---|---|
| Dispozícia | 3+1 |
| Číslo inzerátu | 975387 |
| Úžitková plocha | 94 m² |
| Stav | Dobrý |
|---|---|
| Poschodie | 3. poschodie z 5 |
| PENB | D - Menej hospodárne |
| Cena za jednotku | 7 394 € / m2 |
Čo táto nehnuteľnosť ponúka?
| Pivnica | |
| Výťah |
| Garáž | |
| MHD 0 minút pešo |
V okolí nehnuteľnosti nájdete
Stále hľadáte to pravé?
Nastavte si strážneho psa. Ponuky vybrané na mieru dostanete súhrnne 1× denne e-mailom. S Premium profilom máte po ruke rovno 5 strážcov a keď sa niečo objaví, informujú vás obratom.


























