
Predaj bytu 3+1 • 95 m² bez realitkyGrafing bei München Grafing bei München Bayern 85567
Grafing bei München Grafing bei München Bayern 85567Výťah • GarážObe viacrodinné budovy, každá s 6 bytmi, zaujmú modernou architektúrou a obytným konceptom prispôsobeným rôznym potrebám. Svetlé byty ponúkajú premyslené dispozície, veľké okná a – podľa jednotky – balkóny, terasy alebo strešné terasy pre príjemné chvíle vonku.
Špeciálny dôraz bol kladený na energetickú efektívnosť a udržateľnú výstavbu, takže tu bývate nielen komfortne, ale aj s ohľadom na budúcnosť. Pre zvýšený komfort sú k dispozícii parkovacie miesta v podzemnej garáži, úložné priestory a moderné domáce technológie, ktoré robia bývanie čo najpríjemnejším.
Hesselfurterstraße sa vyznačuje príjemným pokojom a nízkou premávkou. Napriek blízkosti centra mesta je príroda všade prítomná: množstvo peších chodníkov láka na výlety do zelene. Zároveň centrum mesta Grafing dosiahnete za pár minút chôdze – tu nájdete všetko, čo potrebujete pre každodenný život. Osobitnou výhodou týchto nehnuteľností je aj vynikajúce napojenie na verejnú dopravu: Stanica Grafing Stadt je rýchlo dostupná pešo a ponúka spojenie na S-Bahn aj autobusové linky do regiónu. Stanica Grafing s konceptom „Park & Ride“, regionálny dopravný uzol so S-Bahn, regionálnou a diaľkovou dopravou, je vzdialená len niekoľko minút autom a umožňuje rýchle spojenie do Mníchova a Rosenheimu.
„Naše Plus+“
Decentralizovaný ventilačný systém vo všetkých bytoch so spätným získavaním tepla zabezpečuje nepretržitú výmenu vzduchu a prispieva tak k zlepšeniu vnútorného prostredia aj energetickej efektívnosti.
Dva fotovoltaické systémy vyrábajú časť energie potrebnej na vykurovanie a chladenie, ako aj na bežnú spotrebu elektriny v dome.
Regulácia teploty prostredníctvom chladenia podlahových plôch existujúcim podlahovým kúrením a tepelným čerpadlom, ktoré prechádza do režimu chladenia.
Bezbariérový prístup je zabezpečený v 10 z 12 bytov.
E-mobilita a správa nabíjania sú umožnené prostredníctvom prípojok pre nabíjacie stanice a dátových liniek na všetkých parkovacích miestach v podzemnej garáži.
Pre viac informácií a kompletné expozitívne materiály navštívte www.riedl-baukultur.de
Parametre nehnuteľnosti
| Vek | Nad 50 rokov |
|---|---|
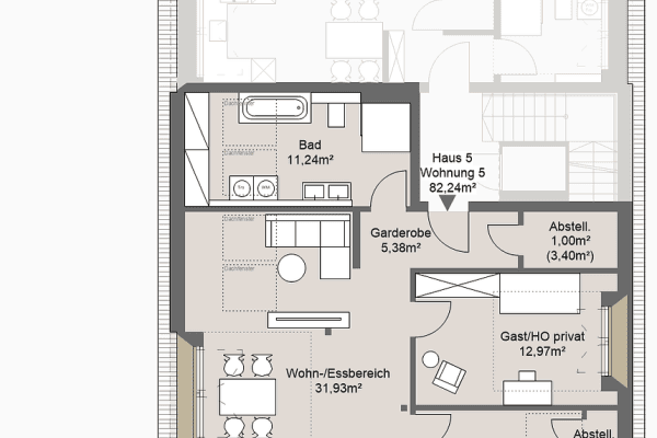
| Dispozícia | 3+1 |
| PENB | A - Mimoriadne úsporné |
| Cena za jednotku | 8 511 € / m2 |
| Dostupné od | 31. 10. 2027 |
|---|---|
| Číslo inzerátu | 975208 |
| Úžitková plocha | 95 m² |
Čo táto nehnuteľnosť ponúka?
| Bezbariérový prístup | |
| Garáž | |
| Terasa |
| Pivnica | |
| Výťah |
V okolí nehnuteľnosti nájdete
Stále hľadáte to pravé?
Nastavte si strážneho psa. Ponuky vybrané na mieru dostanete súhrnne 1× denne e-mailom. S Premium profilom máte po ruke rovno 5 strážcov a keď sa niečo objaví, informujú vás obratom.










