
Predaj bytu 3+1 • 71 m² bez realitkyPrandaugasse 60 Wien 22. Bezirk Wien 1220
Prandaugasse 60 Wien 22. Bezirk Wien 1220MHD 2 minúty pešoHistorický klenot s kouzlom znovu žiari novým leskom. Kompletnou rekonštrukciou štýlovej budovy a prerábaním podkrovia bol historickému klenotu vdýchnutý nový život. Blízkosť dunajského brehu, spojená s výhodami veľkomesta, predstavuje ideálne bývanie pre rodiny aj jednotlivcov.
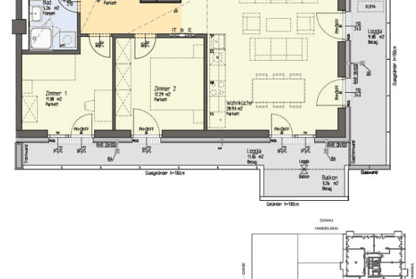
19 bytov (od 1 do 3 izieb) – všetky so svetlou chodbou a rozlohou od 25 m² do 70 m². Svetlé obývacie izby ponúkajú integrovanú okennú presvetlenú stenovú plochu. Všetky byty majú podlahové kúrenie.
4 byty v podkroví sú vybavené klimatizáciou a priestrannými terasami a strešnými terasami.
Detaily na: www.pg60.at
Dopyty: info@pg60.at
Električkou linky 25 sa dostanete za 10 minút na breh starej Dunaja. Metrom linky U1 za 15 minút na Dunajský ostrov alebo za 18 minút priamo na Stephansplatz do srdca Viedne.
Obchodné centrum Donauzentrum (nakupovanie, reštaurácie, kino a fitness) je len kúsok od domu.
Stará Dunaj prináša do života prírodu a pozýva na prechádzky.
Množstvo obchodov pre každodenné potreby máte doslova na dosah ruky.
Štýlový historický klenot s kompletnou rekonštrukciou jadra
Vysokokvalitné materiály, parkety z masívneho dreva – dub
Podlahové kúrenie
Novo zriadený osobný výťah
S&B Properties GmbH
Kolpingstraße 19 (3. poschodie)
1230 Viedeň
Rakúsko
Web: www.sb-properties.eu
Obchodný register: FN 596878 m – obchodný súd vo Viedni
Parametre nehnuteľnosti
| Stav | Po rekonštrukcii |
|---|---|
| Poschodie | 4. poschodie z 4 |
| Úžitková plocha | 71 m² |
| Dispozícia | 3+1 |
|---|---|
| Číslo inzerátu | 970461 |
| Cena za jednotku | 10 113 € / m2 |
Čo táto nehnuteľnosť ponúka?
| MHD 2 minúty pešo |
| Terasa |
V okolí nehnuteľnosti nájdete
Stále hľadáte to pravé?
Nastavte si strážneho psa. Ponuky vybrané na mieru dostanete súhrnne 1× denne e-mailom. S Premium profilom máte po ruke rovno 5 strážcov a keď sa niečo objaví, informujú vás obratom.








