
Predaj bytu 3+1 • 94 m² bez realitkyMarienburger Str. 11, , Severné Porýnie - Westfálsko
Tento kvalitne rekonštruovaný byt sa nachádza v 3. poschodí udržiavaného viacrodinného domu s len šiestimi jednotkami. Mimoriadne atraktívne je, že dve z bytov v dome sú na predaj, čo otvára zaujímavé možnosti pre vlastníkov aj investorov.
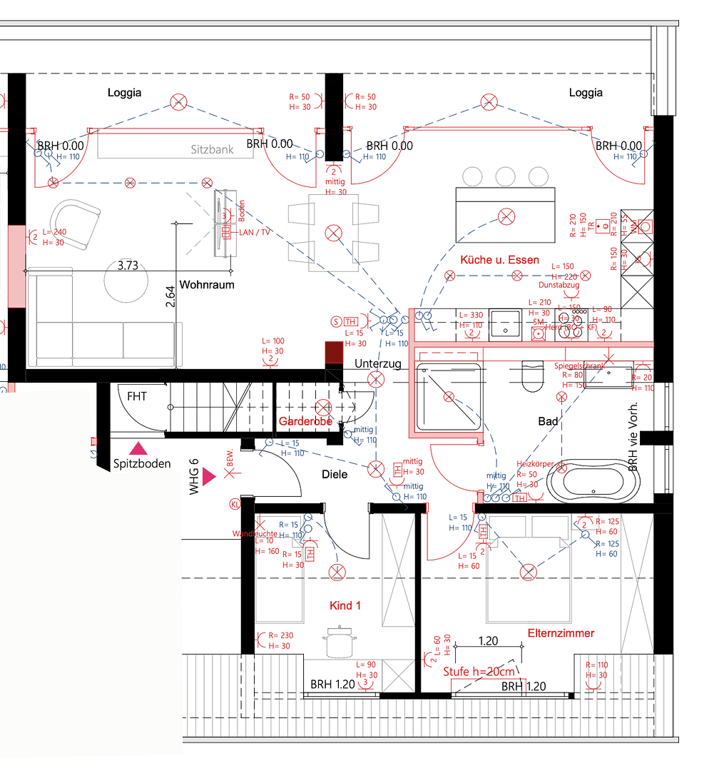
Hneď pri vstupe do bytu sa prejaví premyslené dispozície. Cez schodisko vchádzate do kompaktného vstupného priestoru s chodbou, možnosťou na vešiak a samostatnou skladacou miestnosťou.
V dennom, na svetle založenom kúpeľni sú k dispozícii sprcha, walk-in (obkladaná dlažbou) a vaňa. Prístupové priestory sú zámerne udržané efektívne, takže obytné miestnosti profitujú z výrazného úsporu miesta.
Následne sa nachádzajú dve spálne usporiadané vedľa seba, ktoré vďaka veľkým strešným oknám majú príjemné osvetlenie a napriek šikmym stenám poskytujú veľmi dobrý pocit z priestoru. Šikmé plochy sú ideálne pre zákazkové vstavané skrine, čo umožňuje výborné využitie priestoru.
Nasleduje priestranná, moderne navrhnutá kúpeľňa s walk-in sprchou, kvalitným novým obkladaním a úplne obnoveným technickým vybavením. V rámci rekonštrukcie boli tu – rovnako ako v celom byte – kompletne obnovené všetky potrubia a sanitárne inštalácie.
Srdcom bytu je otvorená obytná, jedálenská a kuchynská zóna, ktorá svojou priestrannosťou a premysleným dizajnom obzvlášť oslovuje. Celoplošné zasklenie zaisťuje veľa denného svetla a ponúka široký výhľad do okolia až smerom ku Kolínu nad Rýnom. Otvorená kuchyňa harmonicky zapadá do celkového konceptu, pričom okno navyše ponúka potenciál pre atraktívne integrované riešenie sedacieho koutu.
Byt bol v rámci komplexnej rekonštrukcie zrekonštruovaný v podstatných oblastiach. Patrí sem mimo iného aj kompletný demontáž a nová realizácia podlahového štuku a izolácie, nová vnútorná izolácia s Multiporom, nové okná s trojvrstvovým zasklením a rolietami, nové podlahové krytiny, nové priečky, statické optimalizácie s novými nosníkmi pre priestrannejšie dispozície, úplne obnovená elektroinštalácia, nové rozvody a prípojky pre kuchyňu a kúpeľňu, nové sanitárne inštalácie, nové podlahové kúrenie, nové obklady a rozsiahle omietacie a maliarske práce.
Celkovo vzniká byt, ktorý spája pôvab podkrovia s komfortom a technickou kvalitou takmer novo vyhotoveného interiéru.
Poznámka: Byt s dodatočnou izoláciou a trojvrstvovým zasklením bude mierne menší, než je uvedené v plánoch, pričom sa predpokladá zníženie energetickej spotreby na triedu D!
Byt sa nachádza v Bergisch Gladbach-Hand, vyhľadávanom a rozvinutom rezidenčnom sídle na západe mesta.
Hand susedí priamo so štvrťami Paffrath a Gronau a na juhu priamo s Köln Dellbrück; zároveň Bergisch Gladbach celkovo leží tesne pri mestských hraniciach Kolína nad Rýnom. Táto poloha spája pokojné, prevažne rezidenčné prostredie s rýchlou dostupnosťou metropoly a robí lokalitu mimoriadne atraktívnou pre všetkých, ktorí túžia bývať blízko prírody, ale zároveň byť dobre napojení na mesto.
Práve blízkosť k Köln-Dellbrück dodáva lokalite zvláštny pôvab: ťažíte z práce v susedstve s obľúbenou kolínskou štvrťou a tak získavate urbanistickejšie prostredie, bez toho aby ste museli vzdať uvoľnenej kvality bývania v Bergisch Gladbach. Dellbrück na východnej strane priamo susedí s Bergisch Gladbach, čo ešte viac zdôrazňuje ich tesné priestorové prepojenie.
Hand a jeho okolie navyše ponúkajú vysokú hodnotu pre voľný čas a oddych. Bergisch Gladbach je súčasťou Bergického turistického regiónu, ktorý ponúka množstvo turistických trás a tematických chodníkov. Dodatočne tu nájdete prírodné oblasti a lesnaté krajiny v okolí, napríklad v oblasti Diepeschrather Waldu a v lesnatých oblastiach východne od Dellbrück.
Tým je poloha ideálna pre prechádzky, beh či výlety do zelene priamo pred dverami.
Aj v každodennom živote presvedčuje mikro lokalita. Okolie Hand a Paffrath disponuje rozvinutou sociálnou infraštruktúrou so škôlkami, základnými školami a miestnymi obchodmi. Mesto Bergisch Gladbach má pre štatistický obvod Hand vlastné kapacity materských škôl a mimoškolských zariadení; navyše v bezprostrednom okolí Paffrath existujú aj ďalšie možnosti.
Pre voľný čas a oddych dopĺňajú profil lokality zariadenia ako Kombibad Paffrath a veľmi známe Mediterana v Bergisch Gladbach.
Obe tieto inštitúcie sú príkladom vysokej hodnoty bývania a voľnočasových možností v danom okolí.
Verejná doprava je taktiež základne dostupná: V súčasnej autobusovej sieti Rýnско-bergického okresu je Marienburger Straße vyznačená ako zastávka na linkách.
Celkovo ponúka poloha mimoriadne atraktívnu kombináciu pokojného bývania, ustáleného susedstva, kvalitnej každodennej infraštruktúry, prírodne orientovaných voľnočasových príležitostí a rýchlej dostupnosti Kolína nad Rýnom.
Na požiadanie je možné zabezpečiť premyslené, ekonomicky výhodné vybavenie zo strany architekta/projektového manažéra, ktoré zahŕňa vstavanú kuchyňu, osvetlenie a vstavaný nábytok.
Byt s dodatočnou izoláciou a trojvrstvovým zasklením bude mierne menší, než je uvedené v plánoch, pričom sa predpokladá zníženie energetickej spotreby na triedu D!
Parametre nehnuteľnosti
| Vek | Nad 50 rokov |
|---|---|
| Dispozícia | 3+1 |
| Číslo inzerátu | 1014733 |
| Cena za jednotku | 4 356,91 € / m2 |
| Stav | Po rekonštrukcii |
|---|---|
| Poschodie | 3. poschodie z 3 |
| Úžitková plocha | 94 m² |
Čo táto nehnuteľnosť ponúka?
| Balkón | |
| Parkovanie | |
| Terasa |
| Pivnica | |
| MHD 2 minúty pešo |
V okolí nehnuteľnosti nájdete
Stále hľadáte to pravé?
Nastavte si strážneho psa. Ponuky vybrané na mieru dostanete súhrnne 1× denne e-mailom. S Premium profilom máte po ruke rovno 5 strážcov a keď sa niečo objaví, informujú vás obratom.



















