
Predaj domu • 183 m² bez realitky, Bádensko-Wurttembersko
, Bádensko-WurttemberskoMHD 2 minúty pešoSamostatný rodinný dom / viacgeneračný dom v blízkosti S-Bahn
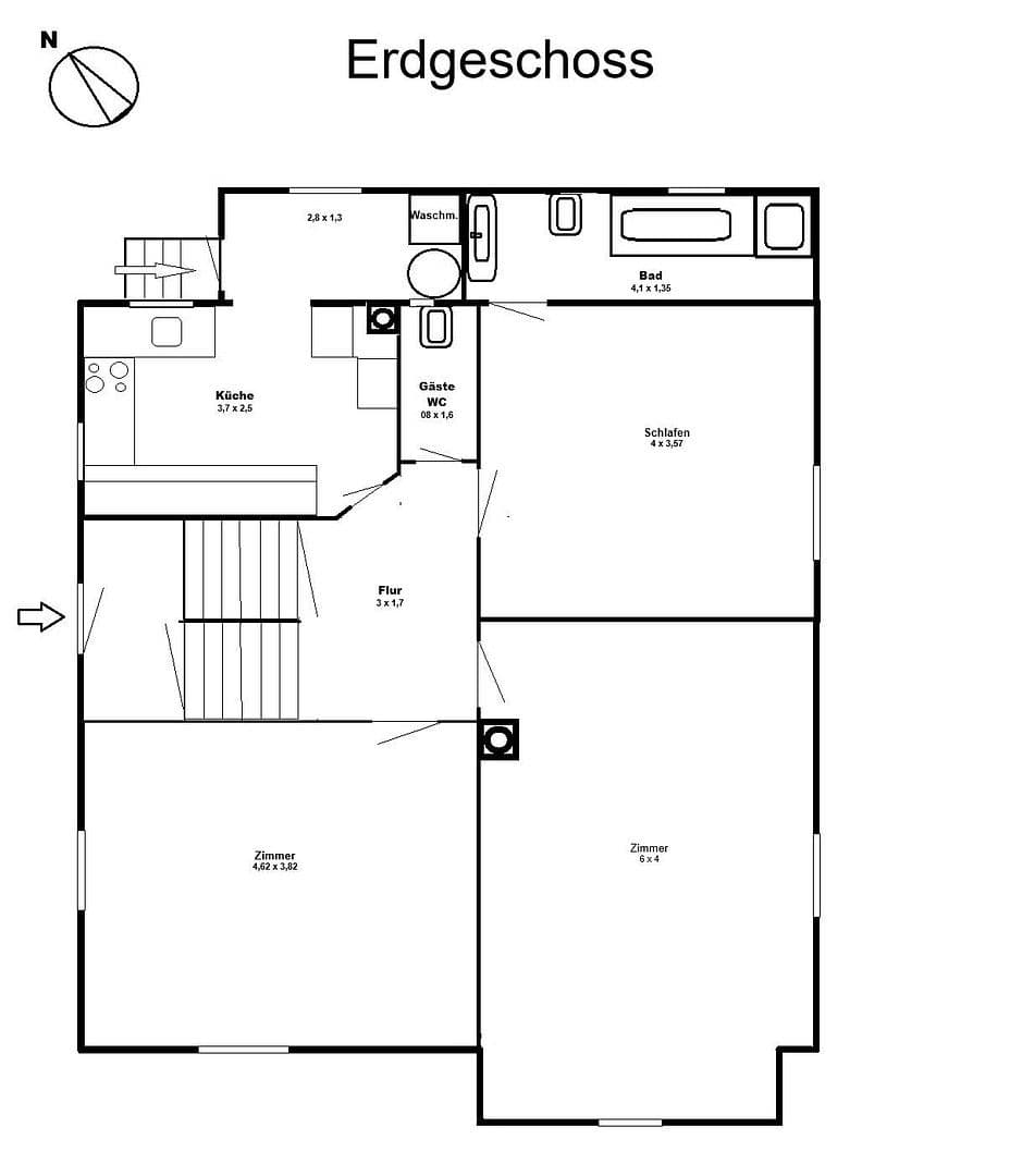
Dom sa rozprestiera na 3 obytných úrovniach a disponuje celkovo 8 izbami, hosťovskou toaletou, 2 kúpeľňami a 2 novými zabudovanými kuchyňami (2019), ako aj malou záhradou so záhradnou chatou (omietnutou) a dvoma veľkými pivnicami.
V prízemí sa nachádza 3-izbový byt s kuchyňou, kúpeľňou so svetlom s vaňou a sprchou, hosťovskou toaletou a práčovňou s plynovým kondenzačným kotlom (2016).
Na prvom poschodí sa nachádzajú ďalšie tri izby, druhá kuchyňa, nová kúpeľňa so svetlom a sprchou (2019) a prístup na strešinku so dvoma ďalšími izbami.
Dom sa v súčasnosti vyprázdňuje.
Dom bol priebežne modernizovaný a renovovaný:
2016: nové domové pripojenie na plyn, vodu a elektrinu, nová plynová kondenzačná technika, elektroinštalácia v prízemí
2019: nová kúpeľňa so sprchou na poschodí, ako aj nové zabudované kuchyne v prízemí a na poschodí
2022: nové dvere bytov v prízemí, nová laminátová podlaha v podkroví…
Tento viacúčelovo využiteľný dom je dopravne výhodne situovaný v blízkosti stanice S-Bahn Oberesslingen a je ideálny pre väčšiu rodinu alebo ako viacgeneračný dom. S-Bahn, autobus a všetky možnosti nakupovania, lekári, materská škola a školy sú v pešej vzdialenosti.
Parametre nehnuteľnosti
| Vek | Nad 50 rokov |
|---|---|
| Číslo inzerátu | 1014186 |
| Úžitková plocha | 183 m² |
| Celkové poschodia | 3 |
| Stav | Po rekonštrukcii |
|---|---|
| PENB | C - Hospodárne |
| Plocha pozemku | 300 m² |
| Cena za jednotku | 3 437,16 € / m2 |
Čo táto nehnuteľnosť ponúka?
| Pivnica |
| MHD 2 minúty pešo |
V okolí nehnuteľnosti nájdete
Stále hľadáte to pravé?
Nastavte si strážneho psa. Ponuky vybrané na mieru dostanete súhrnne 1× denne e-mailom. S Premium profilom máte po ruke rovno 5 strážcov a keď sa niečo objaví, informujú vás obratom.



















