
Predaj bytu 2+1 • 57 m² bez realitkyBerlin Schöneberg Berlin 10827
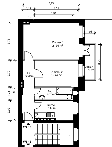
Berlin Schöneberg Berlin 10827MHD 1 minúta pešoDvojizbový byt s rozlohou cca 57 m² sa nachádza v berlínskej historickej budove z roku 1905. Pôdorys ponúka dobrý základ pre pekný mestský byt: obývačku, spálňu, samostatnú kuchyňu a kúpeľňu s vaňou a oknom, ktorá je denným svetlom naplnená. Originálne stukové prvky, kasetonové dvere a drevené dvojokná podčiarkujú charakter historickej budovy.
Byt, ktorý vyžaduje rekonštrukciu, je momentálne neobsadený a ponúka budúcim užívateľom možnosť ho podľa vlastných predstáv zariadiť a vytvoriť si skutočný domov.
V súčasnosti je vykurovaný naftovým kotlom. Nové vykurovacie zariadenie a ďalšie modernizácie domu sú už naplánované a náklady na tieto úpravy uhradí predávajúci.
Byt sa nachádza v žiadanej berlínskej štvrti Schöneberg (obvod Tempelhof‑Schöneberg) – charakterizovanej architektúrou obdobia Gründerzeit, živými miestnymi ulicami a rozvinutou občianskou vybavenosťou. Kaviarne a reštaurácie sú prakticky priamo za dverami, rovnako ako supermarkety a ďalšie obchody dennej potreby.
Zelené plochy na rýchlu oddychovú prestávku sú v pešej vzdialenosti a tiež Ludový park Schöneberg‑Wilmersdorf je rýchlo dosiahnuteľný. V tesnej blízkosti sa nachádzajú materské školy a základné školy, čo podčiarkuje vhodnosť tejto lokality pre každodenný život.
Doprava je vynikajúca: autobusová zastávka (cca 100 m), stanica S‑Bahnhof (cca 300 m) a stanica metra (cca 700 m) umožňujú rýchly presun do City‑West a City‑Ost. Regionálna/ďaleková stanica je vzdialená približne 1,2 km a mestská diaľnica A100 je dosiahnuteľná po ceste asi 750 m.
Parametre nehnuteľnosti
| Vek | Nad 50 rokov |
|---|---|
| Stav | Pred rekonštrukciou |
| Poschodie | 1. poschodie |
| Úžitková plocha | 57 m² |
| Dostupné od | 19. 4. 2026 |
|---|---|
| Dispozícia | 2+1 |
| Číslo inzerátu | 1013117 |
| Cena za jednotku | 4 649,12 € / m2 |
Čo táto nehnuteľnosť ponúka?
| Balkón | |
| MHD 1 minúta pešo |
| Pivnica |
V okolí nehnuteľnosti nájdete
Stále hľadáte to pravé?
Nastavte si strážneho psa. Ponuky vybrané na mieru dostanete súhrnne 1× denne e-mailom. S Premium profilom máte po ruke rovno 5 strážcov a keď sa niečo objaví, informujú vás obratom.























