
Predaj bytu 3+1 • 101 m² bez realitky, Hesensko
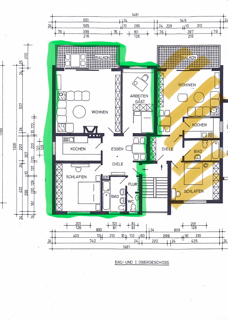
, HesenskoMHD 2 minúty pešo • GarážNa predaj je priestranný a udržiavaný 3-izbový vlastnícky byt v 1. nadzemnom podlaží vľavo v tichom viacrodinnom dome v Obertshausen-Hausen. S približne 102 m² obytných priestorov ponúka byt veľmi príjemný pocit zo žitia, premyslené rozloženie a veľký potenciál pre páry, malé rodiny alebo všetkých, ktorí chcú skombinovať komfortné bývanie s dobrou infraštruktúrou.
Byt upúta svojím priateľským, otvoreným charakterom a dispozíciou, ktorá je praktická aj útulná pre každodenný život. Okrem priestrannej obývacej izby sú k dispozícii spálňa a ďalšia izba, ktorá sa hodí ako detská izba, izba pre hostí alebo domáca kancelária. Dopĺňa ho samostatná kuchyňa, kúpeľňa aj dodatočné WC pre hostí.
Jedinečnou atrakciou je veľký balkón, ktorý v teplejších mesiacoch príjemne rozširuje obytný priestor a ponúka veľa miesta pre relaxačné chvíle na čerstvom vzduchu. Vďaka umiestneniu v 1. nadzemnom podlaží je byt dobre prístupný a zároveň príjemne oddelený od priameho prízemia.
K bytu patrí navyše aj garáž a ďalšie využiteľné a úložné priestory v suteréne, čím je zabezpečený aj praktický priestor na uskladnenie.
Byt sa nachádza v udržiavanom dome s iba piatimi obytnými jednotkami, čo prispieva k príjemnej a prehľadnej atmosfére bývania. Podľa energetického preukazu ide o viacrodinný dom postavený v roku 1976.
Nehnuteľnosť je ideálna pre kupujúcich, ktorí si cenia priestor, pekný balkón, dobré rozloženie a tichú, no zároveň praktickú polohu. Byt sa nachádza v Obertshausen, mestskej časti Hausen, v tichej a ustálenej obytné lokalite so sympatickým susedským prostredím. Ulica je obytná bez nadmerného priechodného premávky, čo zaručuje bývanie, ktoré je súčasne pokojné a rodinne priateľské.
Obzvlášť atraktívna je vynikajúca občianska vybavenosť: materská škôlka je vzdialená iba približne 150 metrov. Množstvo obchodov s bežnými potrebami je tiež rýchlo a pohodlne dostupných. V pešej vzdialenosti sa nachádzajú medzi inými obchody ako Penny, Norma, Netto, Aldi, Lidl, dm a Edeka, takže nákupy možno vybaviť bez väčšej námahy.
Výborné spojenie s verejnou dopravou je jasnou výhodou tejto lokality. Najbližšia autobusová zastávka je asi 5 minút chôdze a vlaková stanica približne 10 minút chôdze. Odtiaľ existuje priame spojenie do Frankfurtu nad Mohanom cez S-Bahn S1, čo robí lokalitu obzvlášť atraktívnou aj pre dochádzajúcich do práce.
Lokalita tak príjemne spája pokojné bývanie s veľmi dobrou každodennou dostupnosťou. Krátke vzdialenosti k zariadeniam starostlivosti, obchodným príležitostiam a verejnej doprave robia byt atraktívnym pre páry aj rodiny.
Okrem toho je parkovacia situácia v bezprostrednom okolí tiež výhodná. Vedľa garáže, ktorá patrí k bytu, sú v okolí ďalšie parkovacie možnosti v rámci obytných ulíc.
Celkovo ide o lokalitu, ktorá zaujme praktickou infraštruktúrou, dobrou dostupnosťou a pokojným obytným prostredím.
Byt disponuje vybavením, ktoré sa ukazuje ako praktické aj útulné. Obzvlášť stojí za zmienku veľký balkón s elektrickou markízou, ktorý výrazne zvyšuje komfort bývania počas teplejších mesiacov a je ideálny pre relaxačné popoludnia a príjemné večerné chvíle.
V obývacej izbe sa nachádza speckový krb (kamenný krb), ktorý nielen vytvára mimoriadne príjemnú atmosféru, ale prináša aj praktickú pridanú hodnotu. Práve počas chladnejších mesiacov môže výrazne zvýšiť útulnosť bytu a pozitívne ovplyvniť náklady na vykurovanie.
Medzi vybavenie patrí aj vstavaná kuchyňa, takže byt už disponuje solídnou a praktickou základou v tomto ohľade.
V posledných rokoch prešli viaceré izby modernizáciou a vizuálnym zlepšením. Obývacia izba bola zrekonštruovaná a premaľovaná. Navyše bola integrovaná zavesená stropná konštrukcia s nepriamym osvetlením, ktorá izbe dodáva modernú a príjemnú svetelnú atmosféru. Aj spálňa bola úplne zrekonštruovaná a prakticky a moderným spôsobom vybavená so vstavanou otvorene integrovanou skriňou.
Ďalším plusom je existujúci priestor navyše mimo samotnej obytné plochy. K bytu patria dodatočné priestorové úložné a využiteľné plochy v suteréne, ktoré poskytujú cenný priestor pre domácnosť, zásoby, koníčky či sezónne veci. Toto dopĺňa už spomínaná garáž, čím sa celkový dojem bytu ešte zvýrazní.
Celkovo ponúka byt úspešnú kombináciu priestrannosti, praktického rozloženia, útulnej atmosféry a vykonaných modernizácií.
Záhrada priamo za domom je voľne prístupná pre všetkých obyvateľov domu, a preto ju možno bez problémov využívať.
!! Pri telefonických prvej dopytoch budú uprednostnené odpovede !!
Byt sa nepredáva z dôvodu chýb, ale výlučne kvôli zmeneným rodinným potrebám. Práve preto je pre nás dôležité zdôrazniť, že sa cítime veľmi dobre nielen v samotnom byte, ale aj v okolí a v rámci spoločenstva vlastníkov.
Posledných 5 koláží obrázkov v galérii je zo staršej doby, pred našou kúpou – v tomto období bol byt tiež prázdny.
Domovské spoločenstvo je príjemne prehľadné, čo prispieva k pokojnej a udržiavanej atmosfére bývania. Pre mnohých záujemcov o kúpu je práve táto kombinácia kvality bývania, veľkosti bytu, balkóna, garáže a dobrej infraštruktúry mimoriadne atraktívna.
Ďalším plusom je, že centrálny vykurovací systém spoločenstva (WEG) bol v roku 2026 zmodernizovaný. Aj keď sa stále kúri na olej, kupujúci tým získavajú modernizovaný spoločný systém a dobrý pocit z toho, že do dôležitej technickej oblasti domu už bolo investované. Z dnešného pohľadu to naznačuje, že v blízkej budúcnosti nie je potrebná vekovo podmienená výmena vykurovacej jednotky. Podľa súčasných právnych predpisov môžu existujúce vykurovacie systémy naďalej fungovať; zároveň platí, že fosílne kotly môžu byť podľa aktuálnej legislatívy používané najneskôr do 31.12.2044. Nový vykurovací systém je tak v nadchádzajúcich rokoch jasným prínosom, hoci dlhodobé legislatívne alebo ekonomické zmeny samozrejme nemožno predvídať.
K nehnuteľnosti patrí platný energetický preukaz. Podľa preukazu ide o viacrodinný dom s 5 bytom. Konečná spotreba energie je 62,2 kWh/(m²·a) a primárna spotreba energie 68,4 kWh/(m²·a). Energetická trieda je B, pričom hlavným zdrojom energie pre vykurovanie a teplú vodu je vykurovací olej. Energetický preukaz je platný do 06.01.2029. Upozorňujeme, že aktuálny preukaz bol vydaný v roku 2019 a možno ešte nezohľadňuje rekonštruovaný vykurovací systém z roku 2026.
Byt sa nachádza v 1. nadzemnom podlaží vľavo a je ideálny pre kupujúcich, ktorí hľadajú priestranný vlastnícky byt v pokojnej, dobre dostupnej lokalite.
Parametre nehnuteľnosti
| Vek | Nad 50 rokov |
|---|---|
| Dispozícia | 3+1 |
| Číslo inzerátu | 1009544 |
| Cena za jednotku | 4 059,41 € / m2 |
| Stav | Dobrý |
|---|---|
| Poschodie | Prízemie |
| Úžitková plocha | 101 m² |
Čo táto nehnuteľnosť ponúka?
| Balkón | |
| Garáž |
| Pivnica | |
| MHD 2 minúty pešo |
V okolí nehnuteľnosti nájdete




Predaj bytuHeinrich-Hoffmann-Straße 2-6 Frankfurt am Main Niederrad Hessen 60528- 3+1
- 69 m²
359 990 € + 268 €
Stále hľadáte to pravé?
Nastavte si strážneho psa. Ponuky vybrané na mieru dostanete súhrnne 1× denne e-mailom. S Premium profilom máte po ruke rovno 5 strážcov a keď sa niečo objaví, informujú vás obratom.

















