
Predaj bytu 3+1 • 80 m² bez realitkyKetscher Str 36, , Bádensko-Wurttembersko
Pokojný 3-izbový byt v 1. poschodí s balkónom a garážou priamo pri vchode do domu na predaj
Ponúkame na predaj náš pokojne umiestnený 3-izbový byt v 1. poschodí s balkónom a garážou priamo pred vchodom do domu.
Byt je orientovaný na západ a ponúka nádherný výhľad na zeleň v prírodnom prostredí s malým potokom. Tento výhľad môžu noví obyvatelia denne vychutnávať.
K bytu patrí aj vlastná pivnica. Okrem toho sú k dispozícii spoločná sušiareň a priestor na bicykle. V dome sa tiež nachádza spoločná sauna.
Byt je obzvlášť vhodný pre rodiny s malými deťmi: Detské ihrisko v prírodnom a pokojnom prostredí je dobre vidieť z okna a nachádza sa v bezprostrednej blízkosti. Pretože ihrisko nie je obklopené inými budovami, vzniká tam veľmi málo rušivého hluku.
Na pokojnú prechádzku pozýva nedaleká cesta pozdĺž potoka až k rybníku alebo ďalej pozdĺž Rýna. Pri prechádzaní je často možné vidieť zvieratá ako labute, divé kačice alebo čierne jaseňáče.
Budova disponuje výťahom, ktorý bol vymenený v roku 2024.
K bytu je možné nasťahovať sa po dohode.
Kúrenie je centrálnym teplom, bez dodatočného kúrenia je v byte počas zimy teplota 20-23 stupňov.
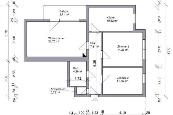
Energetický preukaz, výpočet obytných plôch, mapka domu a pôdorys sú k dispozícii.
Pokojná lokalita s výhľadom do zelene ponúka vysokú kvalitu života. Pešia dostupnosť k sprehádkovným chodníkom pozdĺž potoka až k Rýnu, ako aj možnosti nakupovania, materská škola a školy.
Predajná cena zahŕňa garáž – umiestnenú pred vstupom.
Pokojná lokalita s výhľadom do zelene.
Z bytu je viditeľné ihrisko.
Výťah bol vymenený v roku 2024.
Blízkosť prírody.
Parametre nehnuteľnosti
| Vek | Nad 50 rokov |
|---|---|
| Dispozícia | 3+1 |
| Číslo inzerátu | 1004105 |
| Úžitková plocha | 80 m² |
| Stav | Po rekonštrukcii |
|---|---|
| Poschodie | 1. poschodie z 6 |
| PENB | D - Menej hospodárne |
| Cena za jednotku | 2 988 € / m2 |
Čo táto nehnuteľnosť ponúka?
| Balkón | |
| Garáž | |
| MHD 0 minút pešo |
| Pivnica | |
| Výťah |
V okolí nehnuteľnosti nájdete



Predaj bytuNeustadter Ring 8 Ludwigshafen am Rhein Maudach Rheinland-Pfalz 67067- 3+1
- 70 m²
199 000 € + 251 €

Stále hľadáte to pravé?
Nastavte si strážneho psa. Ponuky vybrané na mieru dostanete súhrnne 1× denne e-mailom. S Premium profilom máte po ruke rovno 5 strážcov a keď sa niečo objaví, informujú vás obratom.


















