
Predaj bytu 3+1 • 70 m² bez realitkyNeustadter Ring 8 Ludwigshafen am Rhein Maudach Rheinland-Pfalz 67067
Neustadter Ring 8 Ludwigshafen am Rhein Maudach Rheinland-Pfalz 67067MHD 3 minúty pešo • Výťah • GarážByt sa nachádza v 3. poschodí viacrodinného domu so 20 obytnými jednotkami.
Viacrodinný dom bol postavený v roku 1995 a je vybavený výťahom. Okrem toho sú k dispozícii podzemná garáž, pivnica pre bicykle a sušiareň určená na spoločné využitie. Bytu je trvalo pridelené duplexné parkovacie miesto v podzemnej garáži.
Byt sa nachádza centrálne v pokojnej štvrti Ludwigshafen Maudach. V bezprostrednej blízkosti sú lekári, lekáreň, potravinové obchody, banka a ďalšie maloobchodné prevádzky. Najbližšia zastávka verejnej dopravy je dostupná pešo za 5 minút.
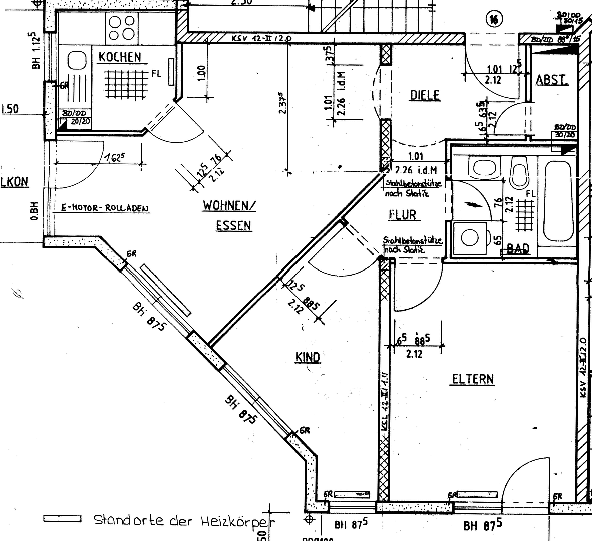
Byt má rozlohu približne 70 m². Tri izby, úložný priestor a kúpeľňa sa otvárajú priamo z chodby. Z obývacej a jedálenskej miestnosti vedie dvere do kuchyne. Všetky izby a kuchyňa majú veľké okná, ktoré zabezpečujú príjemné a svetlé denný osvetlenie. Výnimočnosťou sú dva balkóny, orientované na juh a západ, ktoré ponúkajú krásny výhľad do riečneho údolia a do regiónu Vorderpfalz. Obývacia/jedálenská miestnosť, kuchyňa aj kúpeľňa sú dlažbené. Zvyšné dve izby sú vybavené vinylovou podlahou.
Parametre nehnuteľnosti
| Vek | Nad 50 rokov |
|---|---|
| Dispozícia | 3+1 |
| Číslo inzerátu | 1000751 |
| Úžitková plocha | 70 m² |
| Stav | Dobrý |
|---|---|
| Poschodie | 3. poschodie z 1 |
| PENB | C - Hospodárne |
| Cena za jednotku | 2 843 € / m2 |
Čo táto nehnuteľnosť ponúka?
| Balkón | |
| Garáž | |
| MHD 3 minúty pešo |
| Pivnica | |
| Výťah |
V okolí nehnuteľnosti nájdete

Predaj bytuFriedrich-Naumann-Str. 12 Ludwigshafen Oggersheim Rheinland-Pfalz 67071- 3+1
- 65 m²
199 000 € + 299 €

Stále hľadáte to pravé?
Nastavte si strážneho psa. Ponuky vybrané na mieru dostanete súhrnne 1× denne e-mailom. S Premium profilom máte po ruke rovno 5 strážcov a keď sa niečo objaví, informujú vás obratom.









