
Predaj domu 5+1 • 139 m² bez realitkySilberdistelweg, 6a Berlin Rudow Berlin 12357
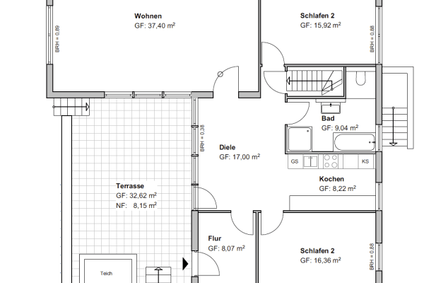
Tento moderný dvojdomový dom zo roku 2015 spája súčasný obytný komfort s útulnou, vysoko kvalitnou atmosférou bývania. Na približne 139 m² obytného priestoru ponúka dom premyslený koncept rozloženia izieb v troch podlažiach.
V roku 2023 bol celý dom novo natretý, pravé drevené parkety boli prebrúsené a čiastočne zrenovované. Dlaždice v kuchyni, predsieni a všetkých kúpeľniach, rovnako aj podlahové kúrenie v prízemí a v hornom podlaží, poskytujú moderný a komfortný pocit z bývania. Všetky sanitárne zariadenia sú značkové a zodpovedajú vyššiemu štandardu.
Zo časti kuchyne vedú široké dvere priamo na parkovacie miesto. Ústredným prvkom je kvalitná marková závesná terasová konštrukcia so spevnenými oceľovými stenami a voľne stojacou konštrukciou bez stredovej opory. LED osvetlenie a diaľkovo ovládateľný Markilux tieňací systém vytvára prikrytý vonkajší priestor, ktorý je využiteľný nielen v lete, ale aj v daždivých dňoch. Ďalšia drevená terasa rozširuje vonkajšiu časť domu. Záhrada je už starostlivo upravená, no zároveň ponúka mnoho možností pre individuálne usporiadanie – od priestorov na hry až po lounge zóny či grilovacie oblasti.
Inštalovaná domáca technika je moderná a orientovaná do budúcnosti: trojité bezpečnostné okná s izolačným zasklením, elektricky ovládané rolety, zariadenie na zmäkčovanie vody, úplná LAN inštalácia s centrálnou serverovou skriňou, pripravené vedenia pre wallbox, vonkajšie osvetlenie a pohybové senzory, ako aj predinštalované dráhy pre prípadnú kamerovú techniku. Dve satelitné siete a solárny systém dopĺňajú technické vybavenie. Okrem toho okná a dvere s vyššou bezpečnostnou úrovňou poskytujú cennú ochranu.
Dom tiež ponúka flexibilné možnosti zariadenia: Kuchyňu je možné bez väčších problémov premeniť na otvorenú obytnú kuchyňu. Podobne sa dá veľká izba v hornom podlaží s niekoľkými úpravami rozdeliť na dva samostatné priestory – ideálne pre rastúce rodiny alebo potreby domácej kancelárie.
Lokalita sa nachádza v obľúbenom Wildlumenviertel v Berlíne-Rudow (Neukölln), vyhľadávanej obytné oblasti s príjemným, rodinne orientovaným prostredím. Mimoriadne príťažlivá je blízkosť k Teltowkanalu, ktorý pozýva na prechádzky, športové aktivity alebo len relax pri vode.
Osídlenie bolo v rokoch 2013 až 2016 úplne postavené nové a skladá sa prevažne z rodinných domov a dvojdomov. Obyvateľstvo tvorí prevažne rodiny rôznych vekových kategórií a kultúrnych zázemí, čo prispieva k živému a zároveň harmonickému prostrediu.
Ulica je zriadená ako súkromná a spravuje ju a udržiava ju veľmi dobre zorganizovaná spoločenstvo vlastníkov. Boli vytvorené rezervy vo výške približne 13 000 €, ktoré sa momentálne ďalej nezvyšujú.
Doprava verejnou dopravou je veľmi dobrá: linky autobusu 172 a X11 sú dostupné pešo a poskytujú rýchle spojenie do okolitých mestských častí. Aj diaľnica je dostupná po niekoľkých minútach, čo umožňuje dosiahnuť centrum mesta alebo susedné okresy obzvlášť rýchlo.
V bezprostrednom okolí sa nachádza množstvo zariadení pre každodenné potreby, vrátane pekární, supermarketov a reštaurácií. Pre fitness a voľný čas sú k dispozícii rôzne štúdiá a zelené plochy či parky.
Lokalita tak spája pokojné bývanie v prírode, blízkosť k vode a vynikajúcu infraštruktúru s mestskou dostupnosťou – prostredie, ktoré je nielen komfortné, ale aj priateľské k rodinám.
Dom bol postavený ako KfW-70 účinný dom, čím spĺňa solídny energetický štandard. Kombinácia masívnej konštrukcie, solárneho systému, trojitého zasklenia a modernej domácej techniky zabezpečuje úspornú spotrebu energie a dlhodobú ekonomickosť.
Ďalšie údaje, fotografie a pôdorysy radi poskytneme na požiadanie. Termíny prehliadok sa dohadujú individuálne.
Parametre nehnuteľnosti
| Vek | Nad 50 rokov |
|---|---|
| Stav | Dobrý |
| Číslo inzerátu | 1002632 |
| Úžitková plocha | 139 m² |
| Celkové poschodia | 2 |
| Dostupné od | 18. 3. 2026 |
|---|---|
| Dispozícia | 5+1 |
| PENB | C - Hospodárne |
| Plocha pozemku | 293 m² |
| Cena za jednotku | 5 396 € / m2 |
Čo táto nehnuteľnosť ponúka?
| Parkovanie | |
| Terasa |
| MHD 4 minúty pešo |
V okolí nehnuteľnosti nájdete
Stále hľadáte to pravé?
Nastavte si strážneho psa. Ponuky vybrané na mieru dostanete súhrnne 1× denne e-mailom. S Premium profilom máte po ruke rovno 5 strážcov a keď sa niečo objaví, informujú vás obratom.
















