
Predaj domu 5+1 • 139 m² bez realitky, Brandenbursko
, BrandenburskoMHD 1 minúta pešo • GarážObjekt sa nachádza v veľmi pokojnej slepej uličke, na konci ktorej začína chránená krajinná zóna. Pozemok je orientovaný zo severu na juh s rozlohou 1098 m², 22 m územnou frontou pri ulici, mierne klesá dozadu a je veľmi tichý a slnečný.
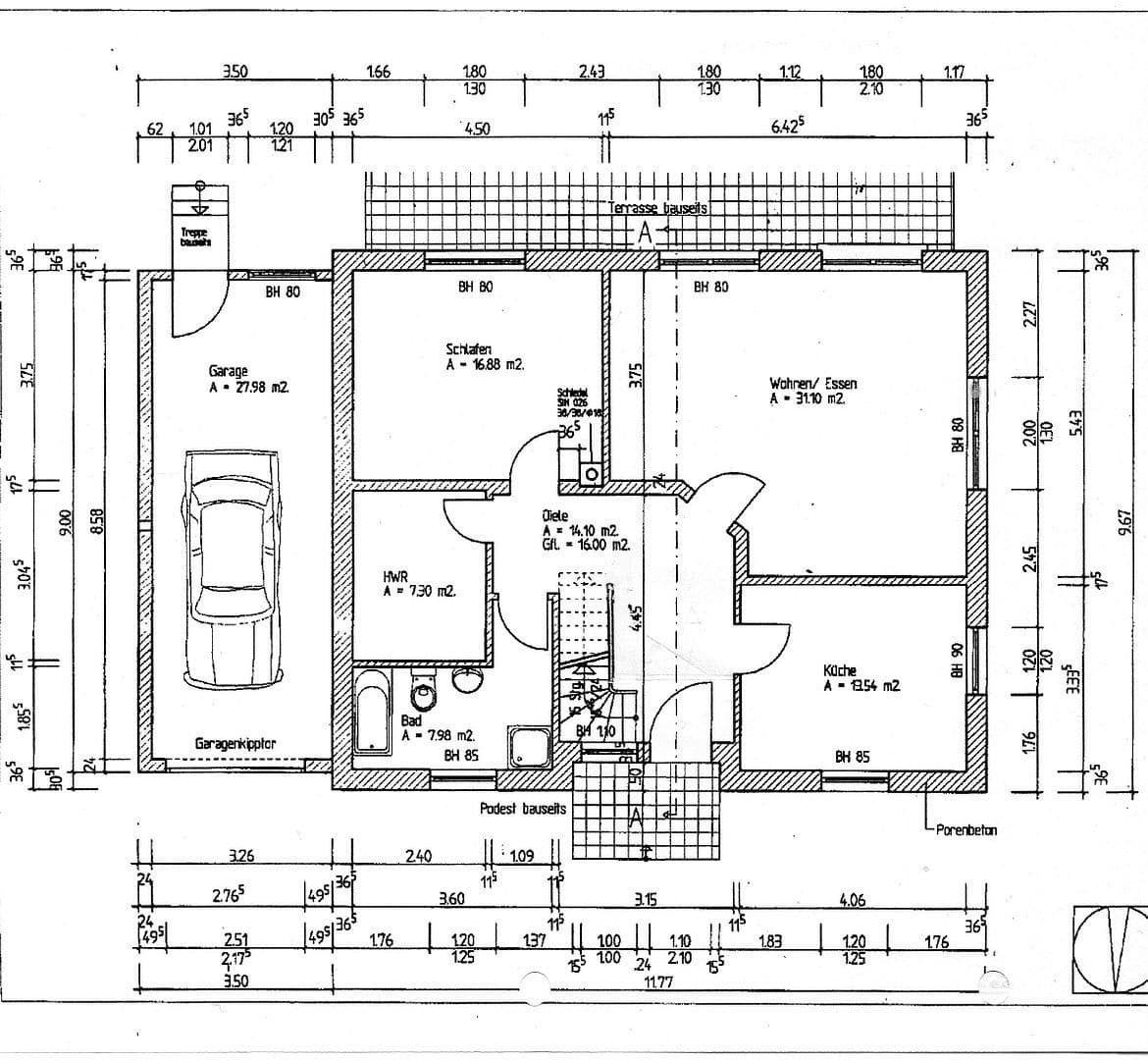
Bývanie bolo postavené v roku 2003. Ide o 1,5-poschodovú budovu s betónovou základovou doskou, postavenú z masívnych materiálov, so strechou vybavenou prekladanými nosníkmi. Obytné a podkrovné poschodia sú úplne dokončené a môžu byť využité ako spoločný obytný priestor alebo ako dve oddelené byty. Užitná plocha domu je celkovo 176 m², z toho obytná plocha je 139 m².
V jednej obývačke sa nachádza krbová pec.
Vybavenie
Vykurovanie: centrálny plynový kotol firmy Junkers
Podlahy: dlažba v kuchyni, kúpeľni a chodbe, parkety v obývačke a spálni
Schodisko: otvorené drevené schody vedúce do podkrovia
Celková cena od súkromného predajcu je 635 000 €, bez provízie
Maklérske ponuky nie sú vítané
Popis lokality
Obec Schildow susedí priamo so severnými berlínskymi mestskými časťami Pankow a Reinickendorf. Je to typické predmestské usídlenie s rekreačným charakterom, ktoré je výborne dostupné autom, autobusom alebo S-Bahn. Miestnosť sa nachádza v typickej brandenburskej krajine a je obklopená lesmi a jazerami.
Infraštruktúra v Schildow je veľmi dobrá. Okrem mnohých menších služieb tu nájdete niekoľko supermarketov, materské školy, európsku základnú školu, lekárov, lekárne a kvalitnú gastronómiu.
Parametre nehnuteľnosti
| Vek | Nad 50 rokov |
|---|---|
| Dispozícia | 5+1 |
| PENB | D - Menej hospodárne |
| Plocha pozemku | 1 098 m² |
| Stav | Dobrý |
|---|---|
| Číslo inzerátu | 997687 |
| Úžitková plocha | 139 m² |
| Cena za jednotku | 4 568 € / m2 |
Čo táto nehnuteľnosť ponúka?
| Bezbariérový prístup | |
| MHD 1 minúta pešo |
| Garáž | |
| Terasa |
V okolí nehnuteľnosti nájdete
Stále hľadáte to pravé?
Nastavte si strážneho psa. Ponuky vybrané na mieru dostanete súhrnne 1× denne e-mailom. S Premium profilom máte po ruke rovno 5 strážcov a keď sa niečo objaví, informujú vás obratom.





