
Predaj domu 5+1 • 141 m² bez realitky, Brandenbursko
Masívny dom z roku 2025 – rodinný dom, mestská vila, Eichwalde, novostavba, masívny dom s 5 izbami
Bývanie pri vode – moderný rodinný dom v Eichwalde
Priamo od majiteľa | Bez maklérskej provízie
Príchod. Nádych. Domov.
V žiadanej lokalite Eichwalde pri Berlíne, len pár krokov od jazera Zeuthen, na vás čaká tento kvalitný rodinný dom (novostavba, dokončenie 2025) – domov, ktorý dokonale spája moderné bývanie, vzájomnú blízkosť s prírodou a súkromie.
Tu si vychutnáte pokoj, zeleň a vodu – a napriek tomu ste rýchlo v Berlíne. Či už ide o ranné plávanie, prechádzky pri jazere alebo pohodové večery na terase, tento dom ponúka priestor pre životnú kvalitu na vysokej úrovni.
Záhrada zatiaľ nie je zámerne upravená, čím si otvárate možnosť vytvoriť si svoju osobnú oázu pohody – od rodinnej záhrady až po štýlové útočisko.
Výborná poloha na prvý pohľad:
• približne 3 minúty pešo k plavisku pri jazere Zeuthen
• približne 1 minúta pešo k autobusovej zastávke
• Pokojná, vyspelá obytná štvrť s vysokou rekreačnou hodnotou
• Vysoko kvalitné vybavenie a premyslená architektúra
Dom bol postavený podľa najnovších energetických predpisov (EnEV 2024) a zaujme čistými líniami, svetlými priestormi a modernou technikou.
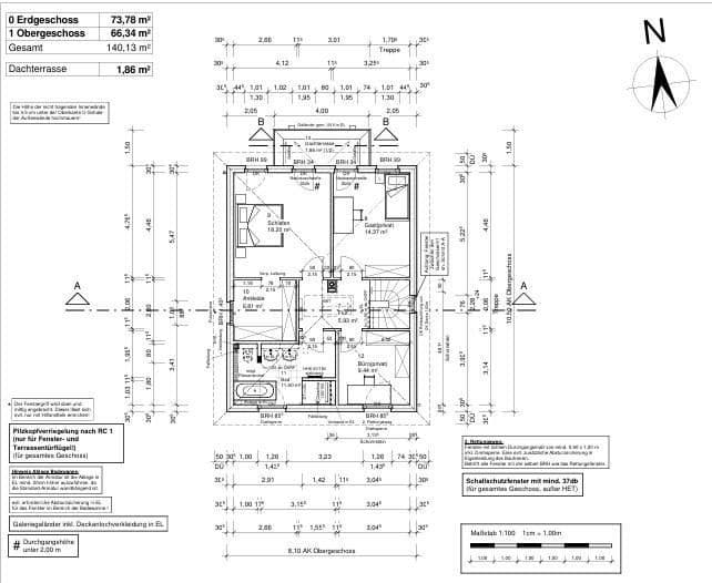
Prízemie – Žiť a vychutnávať si
• Štedrý, svetlom zaplavený obývací a jedálenský priestor s podlahovými oknami
• Príprava pre krbový kachľ – pre pohodové večery
• Priamy prístup na terasu cez štýlový výklenok
• Priestranná kuchyňa spojená s obytnou časťou s priestorom pre vašu individuálnu vysnívanú kuchyňu
• Moderná sprchová kúpeľňa pre hostí s vysoko kvalitnými sanitárnymi prvkami
• Domácnostná miestnosť s modernou domácou technikou
Poschodie – Útočisko a relax
• Dve svetlé spálne alebo izby pre hostí, každá s prístupom na balkón
• Samostatná šatňa
• Kancelária / Homeoffice – ideálna pre modernú prácu
• Štedrá rodinná kúpeľňa s:
– vaňou
– veľkou sprchou
– dvojitým umývadlom
– vysoko kvalitnými obkladmi a značkovými armaturami
Budúcnost zabezpečujúca technika a energetická efektívnosť
Rok výstavby 2024 | dokončenie 2025
• Energeticky efektívna konštrukcia podľa aktuálneho štandardu
• Podlahové kúrenie v celom dome
• Moderná vykurovacia technika
• Príprava pre fotovoltaickú inštaláciu (prítomné prázdne potrubia)
• Optické pripojenie
• Všetky mediálne prípojky na najmodernejšej úrovni
Záver
Tento dom je viac než len štyri steny – je to miesto, kde sa človek cíti doma, pre ľudí, ktorí ocenia vodu, prírodu a moderné bývanie. Ideálny pre rodiny, páry alebo pre tých, ktorí hľadajú niečo výnimočné.
Predaj priamo od majiteľa – pre vás to znamená: bez maklérskej provízie.
Poloha, poloha, poloha – iba 3 minúty do jazera Zeuthen
Predstavte si:
Začnete deň prechádzkou k vode, sledujete východ slnka nad jazerom – alebo si vychutnáte pohľad na zeleň priamo z jednej z balkónových izieb vášho nového domova. Tu bývate tam, kde ostatní trávia svoj voľný čas.
Eichwalde je čistá idyla.
Pred bránami hlavného mesta, v zelenej periférii Berlína, patrí Eichwalde ako nezávislá obec do okresu Dahme-Spreewald. Poloha na juhovýchodnej hranici Berlína jedinečne spája prírodu, pokoj a vynikajúcu blízkosť k mestu.
Rodinný dom sa nachádza na pokojnej vedľajšej ulici bez prechodnej premávky, len približne 3 minúty pešo od jazera Zeuthen alebo rieky Dahme. Okolie je charakterizované udržiavanými rodinnými domami na priestranných pozemkoch – vyspelá, výlučne obytná štvrť, ktorá ponúka pokoj, súkromie a takmer dedinskú atmosféru.
V lete sa blízke plavisko stáva miestom stretávania pre plavcov, vodných športovcov a milovníkov slnka. V zimných mesiacoch nastáva upokojujúce ticho, ktoré vyzýva na prechádzky a oddych. Cesty pozdĺž Havellandstraße alebo priamo pri brehu Dahme ponúkajú prírodný zážitok a oddych priamo pri vašich dverách.
Pozdĺž vody sa nachádzajú útulné reštaurácie, kaviarne a jachty – ideálne pre majiteľov lodí, plavcov či nadšencov stand-up pádlovania. Takmer žiadna oblasť okolo Berlína nenabízí tak vysokú kvalitu života a voľnočasových aktivít v bezprostrednej blízkosti vody.
Dopravné spojenie & infraštruktúra
Napriek pokojnej polohe je dostupnosť vynikajúca:
Len niekoľko metrov od domu sa nachádza autobusová zastávka s prepojením na S-Bahn stanicu Zeuthen a S-Bahn stanicu Königs Wusterhausen.
S-Bahn stanica Eichwalde je dostupná približne 7 minút bicyklom alebo 5 minút autom. Odtiaľ vás linky S8 a S46 pohodlne a priamo dovezú do Berlin-Westend, Südkreuz alebo Königs Wusterhausen.
Všetky zariadenia pre každodenné potreby sa nachádzajú v bezprostrednom okolí:
Supermarkety, pekárne, lekárne, reštaurácie, materské školy a školy. Humboldt gymnázium v Eichwalde je v blízkosti, rovnako ako početné materské školy a základné školy v Eichwalde aj v okolitých obciach Schulzendorf, Zeuthen a Schmöckwitz.
Na väčšie nákupy a výlety sa dostanete do:
• A10 Center Wildau – približne 12 minút autom
• Priemyselnej zóny Waltersdorf s IKEA a množstvom špecializovaných obchodov
Autom sa dostanete:
• Na Alexanderplatz približne za 35 minút
• Na Kurfürstendamm približne za 35 minút
Záver o polohe
Tu, na juhovýchodnom okraji hlavného mesta, vás čaká zriedkavá kombinácia vodnej polohy, pokoja a dokonalej dostupnosti. Obytná štvrť s vysokou hodnotou pre oddych – zelená, uvoľnená a napriek tomu blízko mesta.
Miesto, kde žijete v súlade so sezónami – a každý deň sa tešíte na návrat domov.
Vybavenie – exkluzívny obytný komfort na najvyššej úrovni
Tento exkluzívny rodinný dom (novostavba, dokončenie 2025) bol postavený podľa najnovších energetických predpisov (EnEV 2024) a spája nadčasovú architektúru, vysoko kvalitné materiály a najmodernejšiu domácu techniku do obytného konceptu pre najnáročnejších. Štedré dispozície, svetlé priestory a jasný dizajnový jazyk vytvárajú atmosféru pokoja, elegancie a hodnoty.
Prízemie – Reprezentatívne bývanie a štýlový oddych
• Štedrý obývací a jedálenský priestor s podlahovými oknami a exkluzívnym osvetlením
• Príprava na pripojenie krbového kachľa – pre štýlové večery s výnimočnou atmosférou
• Plynulý prechod na terasu cez elegantnú zimnú záhradu / výklenok
• Priestranná kuchyňa s priestorom pre na mieru vyrobenú dizajnovú kuchyňu
• Štýlová kúpeľňa pre hostí so špičkovými sanitárnymi zariadeniami a modernými armaturami
• Domácnostná miestnosť s centrálnou technikou, funkčne a kvalitne integrovaná
Poschodie – Súkromné útočiská s komfortom
• Dve svetlé spálňové alebo hosťovské suity, každá s priamym prístupom na balkón
• Samostatná šatňa – premyslená a zároveň luxusná
• Osobitná kancelária / Homeoffice, ideálna pre sústredenú prácu v pokojnej atmosfére
• Štedrá luxusná kúpeľňa s:
– veľkou vaňou
– priestrannou bezbariérovou (bezprahovou) sprchou
– dvojitým umývadlom
– starostlivo vybranými dizajnovými obkladmi a exkluzívnymi značkovými armaturami
Technika & energia – moderné, udržateľné, pripravené do budúcnosti
Rok výstavby 2024 | dokončenie 2025
• Vysoko efektívna konštrukcia podľa najnovších energetických štandardov
• Príprava pre fotovoltaickú inštaláciu (prítomné prázdne potrubia)
• Komfortné podlahové kúrenie vo všetkých obytných priestoroch
• Moderná, efektívna vykurovacia technika
• Optické pripojenie pre vysokorýchlostný internet
• Všetky mediálne prípojky na najmodernejšej technickej úrovni
Zhrnutie vybavenia
Domov pre ľudí s citom pre kvalitu, dizajn a udržateľnosť.
Tento dom spája luxusný obytný komfort s modernou technikou a nadčasovou eleganciou – útočisko, ktoré vás každý deň opäť nadchne.
Doplňujúce / dokumenty
K objektu sú k dispozícii všetky stavebné a plánovacie dokumenty v plnej miere:
• Architektonické výkresy, stavebné dokumenty a kompletný priebeh výstavby
• Všetky faktúry od inštalatérov a remeselníckych podnikov
• Kompletné rozvodné a inštalačné plány
• Podrobné situačné plány a popis vybavenia objektu
Tým je celý proces výstavby domu transparentne a zrozumiteľne zdokumentovaný.
Parametre nehnuteľnosti
| Vek | Nad 50 rokov |
|---|---|
| Dispozícia | 5+1 |
| PENB | A - Mimoriadne úsporné |
| Plocha pozemku | 525 m² |
| Cena za jednotku | 5 667 € / m2 |
| Stav | Veľmi dobrý |
|---|---|
| Číslo inzerátu | 999676 |
| Úžitková plocha | 141 m² |
| Celkové poschodia | 1 |
Čo táto nehnuteľnosť ponúka?
| Balkón | |
| MHD 6 minút pešo |
| Parkovanie | |
| Terasa |
V okolí nehnuteľnosti nájdete
Stále hľadáte to pravé?
Nastavte si strážneho psa. Ponuky vybrané na mieru dostanete súhrnne 1× denne e-mailom. S Premium profilom máte po ruke rovno 5 strážcov a keď sa niečo objaví, informujú vás obratom.










