
Predaj domu 6+1 • 200 m² bez realitkyBerlin Rahnsdorf Berlin 12589
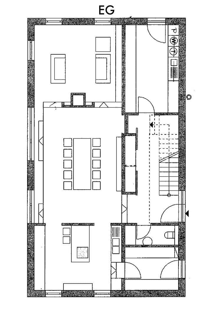
Berlin Rahnsdorf Berlin 12589MHD 2 minúty pešoDom je svetlý a prehľadne členěný. Je potrebné vyzdvihnúť veľkú, otvorenú obývaciu časť s kuchyňou, priestranným jedálenským priestorom a obývacím pokojom. Medzi jedálenskou časťou a obývacím priestorom sa nachádza dvojstranný krb. Výška stropu v jedálni a kuchyni je 3 m.
Zelená strecha pomáha domu vytvárať klimaticky príjemnú atmosféru.
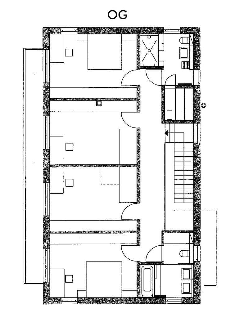
Vo vyššom poschodí sa tiež nachádzajú veľmi svetlé izby s oknami od podlahy až po strop. Každá izba má priamy prístup na balkón. Tiež vo vyššom poschodí sú umiestnené kúpeľne – jedna s obkladom a sprchou, druhá s vaňou.
Na pozemku sa nachádza niekoľko kvalitných chĺpkov spolu s bicyklovým parkovacím priestorom. Prevádzkuje sa wallbox. Dve priestranné terasy pozývajú k oddychu.
Dom v juhovýchodnom Berlíne sa nachádza v pokojnej lokalite, približne 10 minút pešo od stanice S-Bahn Wilhelmshagen a základnej školy s materskou školou. Supermarkety, lekáreň aj lekári sú v okruhu 1 km. Plážové kúpalisko Müggelsee je vzdialené 10 minút bicyklom. Za domom začína chránená prírodná oblasť Püttberge, ktorá je v zime obľúbeným sánkovým kopcom.
Podlahy v prízemí sú starostlivo obklady dlažbou. Schodisko, chodba a izby vo vyššom poschodí sú pokryté linoleom. Kúpeľne vo vyššom poschodí sú obklady dlažbou.
Parametre nehnuteľnosti
| Vek | Nad 50 rokov |
|---|---|
| Dispozícia | 6+1 |
| PENB | B - Veľmi úsporné |
| Plocha pozemku | 668 m² |
| Cena za jednotku | 4 625 € / m2 |
| Stav | Dobrý |
|---|---|
| Číslo inzerátu | 999114 |
| Úžitková plocha | 200 m² |
| Celkové poschodia | 2 |
Čo táto nehnuteľnosť ponúka?
| Balkón | |
| Terasa |
| MHD 2 minúty pešo |
V okolí nehnuteľnosti nájdete
Stále hľadáte to pravé?
Nastavte si strážneho psa. Ponuky vybrané na mieru dostanete súhrnne 1× denne e-mailom. S Premium profilom máte po ruke rovno 5 strážcov a keď sa niečo objaví, informujú vás obratom.














