
Prenájom bytu 3+1 • 102 m² bez realitkyMemlingstr. 2 München Solln Bayern 81479
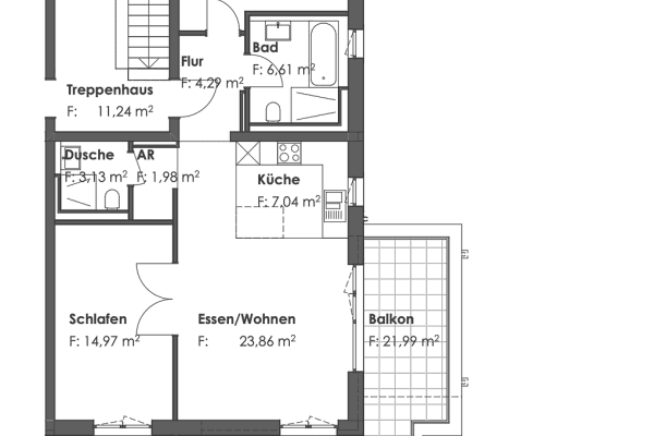
Memlingstr. 2 München Solln Bayern 81479MHD 5minút pešo • GarážSvetlom naplnený duplexový byt sa rozprestiera na 1. poschodí aj v podkroví malého viacrodinného domu. Je vybavený priestrannými modernými schodmi do podkrovia. Na prvej úrovni sa nachádza viac ako 50 m² veľký a veľmi svetlý obývací a jedálenský priestor s modernou, vysoko kvalitne vybavenou kuchyňou (nie je súčasťou prenájmu) a veľmi moderne a štýlovo zrekonštruovaná kúpeľňa pre hostí so sprchou.
V podkroví sa nachádzajú 2 priestranné spálne s veľkými strešnými oknami a moderne vybavená kúpeľňa s vaňou. Jedna z izieb má moderné priemyselné sklenie (loftové sklenie) a je ideálna ako detská izba aj ako domáca kancelária. Medzi spálňami sa nachádza pekná strešná terasa orientovaná na západ (cca 10 m²) s výhľadom na strechy Alt-Sollns.
Okrem obytných priestorov byt disponuje aj sklepným priestorom (6 m²) a parkovacím miestom v podzemnej garáži (nie duplex).
Byt bol kľúčovo zrekonštruovaný v roku 2019. K bytu náleží aj hobby miestnosť v suteréne s rozlohou cca 15 m². Táto miestnosť momentálne nie je súčasťou prenájmu, ale o niekoľko rokov môže byť prípadne pridaná k prenájmu.
Byt sa nachádza v veľmi pokojnej vedľajšej ulici v Alt-Solln, veľmi blízko starého centra, uprostred pôvodného osídlenia. Vzdialenosť od starého centra je 1 minúta na bicykli, verejná doprava je vzdialená 5 minút pešo a obchody pre každodenné potreby sú vzdialené 7 minút pešo.
Byt bol pri rekonštrukcii v roku 2019 veľmi kvalitne vybavený. Kuchyňa patrí majiteľovi, a preto si noví nájomníci budú musieť inštalovať vlastnú kuchyňu.
Parametre nehnuteľnosti
| Vek | Nad 50 rokov |
|---|---|
| Stav | Po rekonštrukcii |
| Poschodie | 1. poschodie z 2 |
| Úžitková plocha | 102 m² |
| Dostupné od | 1. 5. 2026 |
|---|---|
| Dispozícia | 3+1 |
| Číslo inzerátu | 996786 |
| Cena za jednotku | 22 € / m2 |
Čo táto nehnuteľnosť ponúka?
| Pivnica | |
| MHD 5 minút pešo |
| Garáž |
V okolí nehnuteľnosti nájdete
Stále hľadáte to pravé?
Nastavte si strážneho psa. Ponuky vybrané na mieru dostanete súhrnne 1× denne e-mailom. S Premium profilom máte po ruke rovno 5 strážcov a keď sa niečo objaví, informujú vás obratom.




















