
Prenájom bytu 3+1 • 87 m² bez realitkyDorfstraße 11b Germering Germering Bayern 82110
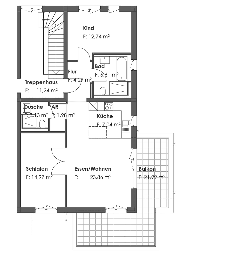
Dorfstraße 11b Germering Germering Bayern 82110MHD 1 minúta pešo • GarážTáto vysoko kvalitne vybavená bytosť disponuje modernou kúpeľňou a sprchovacím kúpeľňou, dvoma peknými spálňami a zároveň priestranným a otvoreným obývacím priestorom. Balkon láka na oddych.
Byt bol postavený podľa najnovších štandardov energetickej efektívnosti a je vybavený decentralizovaným systémom vetrania obytných priestorov, aby zabezpečil príjemné a zdravé životné prostredie.
Bytový dom sa nachádza v dedinskej ulici a disponuje dobrou dostupnosťou do centra mesta a okolia, ako aj do Mníchova.
Vybaveniu patrí pivničná miestnosť, úložný priestor a parkovacie miesto v podzemnej garáži.
- cca 20 km od Mníchova
- dobrá dostupnosť na diaľnicu A99 a aj na cestné spojnice B2 a B471
- múrované prevedenie
- vysoko kvalitné okná s trojsklovou tepelnoizolačnou ochranou
- elektrické hliníkové rolety
- kúpeľne a chodby s kvalitnými obkladmi
- obývací a spálňový priestor a kuchyňa so dizajnovými podlahami
- vstupné dvere bytu s protihlukovou ex-izoláciou a zbadacím okom
- elektrické zariadenie podzemnej garážovej brány s diaľkovým ovládačom
- pripojenie pre práčku sa nachádza vo vlastnej pivnici
- zemné teplo
- rovnomerné podlahové kúrenie vrátane izbových termostatov
- decentralizovaný ventilačný systém
- domček s interkomom a vzájomnou komunikáciou
Parametre nehnuteľnosti
| Vek | Nad 50 rokov |
|---|---|
| Stav | Veľmi dobrý |
| Poschodie | 1. poschodie z 2 |
| PENB | A - Mimoriadne úsporné |
| Cena za jednotku | 21 € / m2 |
| Dostupné od | 1. 2. 2025 |
|---|---|
| Dispozícia | 3+1 |
| Číslo inzerátu | 996821 |
| Úžitková plocha | 87 m² |
Čo táto nehnuteľnosť ponúka?
| Balkón | |
| Pivnica | |
| MHD 1 minúta pešo |
| Bezbariérový prístup | |
| Garáž |
V okolí nehnuteľnosti nájdete
Stále hľadáte to pravé?
Nastavte si strážneho psa. Ponuky vybrané na mieru dostanete súhrnne 1× denne e-mailom. S Premium profilom máte po ruke rovno 5 strážcov a keď sa niečo objaví, informujú vás obratom.








