
Predaj bytu 3+1 • 79 m² bez realitkySchillerstraße München Ludwigsvorstadt Bayern 80336
Tento šarmantný 3-izbový byt s optimálnou dispozíciou sa nachádza v 1. poschodí udržiavaného bytového domu v najlepšej lokalite Mníchova (Ludwigsvorstadt).
Hlavné prednosti nehnuteľnosti:
- Kompletná rekonštrukcia do konca mája 2026
- Veľmi centrálne, medzi hlavným nádražím a starým mestom
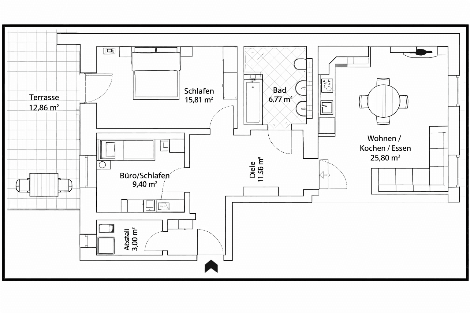
- Priestranný a pokojný balkón (cca 12 m²) do vnútorného dvora
- Kupujúci môže pri včasnej kúpe spolurozhodovať o vnútornom vybavení a materiáloch (výber vzorov)
- Zavesené stropy v chodbách a kúpeľni (LED reflektory)
- Úložný kútik (cca 3 m²) v byte a pivnica (cca 5 m²) zabezpečujú dodatočný úložný priestor
Vďaka premyslenej dispozícii a kvalitným materiálom ponúka byt moderné, útulné prostredie. Byt je predávaný prázdny, úplne zrekonštruovaný a na požiadanie môže byť odovzdaný s novou kuchyňou – sťahujte sa a užívajte si pohodlie!
Spoločné vlastníctvo:
- V roku 2006 bola jadrová rekonštrukcia historickej budovy vykonaná renomovanou mníchovskou stavebnou firmou
- Udržiavaný celkový stav
- Žiadne oneskorenie s údržbovými prácami
Nehnuteľnosť sa nachádza v centrálnej časti Mníchova – v štvrti München-Ludwigsvorstadt-Isarvorstadt, živom a urbanizovanom okolí s veľmi dobrou infraštruktúrou. Obchodné príležitosti, supermarkety, lekárne, kaviarne a reštaurácie sa nachádzajú v bezprostrednom okolí. Školy, materské školy a zdravotnícke zariadenia sú dostupné pešo. Dopravné spojenie verejnou dopravou je vynikajúce: stanice metra ako Theresienwiese a hlavné nádražie, niekoľko autobusových a električkových liniek a mníchovské hlavné nádražie ponúkajú optimálnu mobilitu do všetkých častí mesta. Lokalita spája mestský život s krátkymi cestami a vysokou každodennou praktickosťou.
- Nová kúpeľňa vrátane úplnej výmeny vodovodných potrubí
- Kvalitné sanitárne zariadenia a nadčasové jemné keramické obklady
- Možnosť voľby medzi sprchovacou vaňou a prístupnou sklenenou sprchou
- Nová elektroinštalácia v celom byte
- Nový dátový rozvodník (LAN zásuvka v každej izbe)
- Kvalitne omietnuté steny pre moderný pocit bývania
- Nové dvere a dverové rámiky v nadčasovom dizajne
- Kvalitná parketová podlaha vo všetkých obytných miestnostiach (vidiecke dosky z dubu)
- Nová zabudovaná kuchyňa vrátane moderných elektrospotrebičov
Ďalšie vybavenie:
- Priestranná terasa pre oddych vonku (cca 12 m²)
- Pivničné priestory (cca 5 m²) pre dodatočný úložný priestor
Celková cena predstavuje 895 000 € – bez provízie pre realitného makléra.
Inventár, ktorý ostáva v byte: nová zabudovaná kuchyňa, stropné osvetlenie, zrkadlá a spodná skriňa v kúpeľni.
Parkovacie miesto nie je súčasťou predaja, avšak vedľa domu je k dispozícii podzemná garáž (verejná garáž).
Parametre nehnuteľnosti
| Vek | Nad 50 rokov |
|---|---|
| Dispozícia | 3+1 |
| Číslo inzerátu | 990675 |
| Cena za jednotku | 11 329 € / m2 |
| Stav | Po rekonštrukcii |
|---|---|
| Poschodie | 1. poschodie z 4 |
| Úžitková plocha | 79 m² |
Čo táto nehnuteľnosť ponúka?
| Balkón |
| MHD 5 minút pešo |
V okolí nehnuteľnosti nájdete
Stále hľadáte to pravé?
Nastavte si strážneho psa. Ponuky vybrané na mieru dostanete súhrnne 1× denne e-mailom. S Premium profilom máte po ruke rovno 5 strážcov a keď sa niečo objaví, informujú vás obratom.















