
Predaj bytu 3+1 • 80 m² bez realitkyStuttgart Bergheim Baden-Württemberg 70499
Stuttgart Bergheim Baden-Württemberg 70499MHD do minúty pešo • Výťah • GarážČoskoro k dispozícii – Rezervácie na prehliadku dňa 21.02.2026 sú odteraz možné
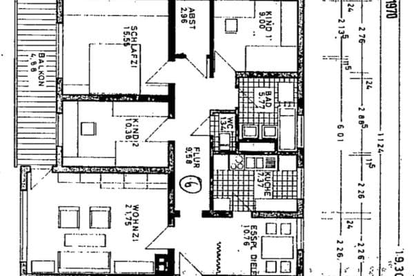
Tento 3-izbový byt vo Stuttgart-Weilimdorf (Bergheim) sa aktuálne dokončuje a čoskoro bude k dispozícii. Obrázky budú nasledovať.
Byt bol zmodernizovaný, medzi iným s novou kúpeľňou, sprchovacím kútom so vstupom na úrovni podlahy a s úplne obnovenej elektroinštaláciou. Kvalitné povrchové úpravy – parkety a veľkoformátové dlaždice – a premyslené osvetlenie s nepriamym, stmievateľným svetlom dopĺňajú celkový dojem.
Byt je orientovaný na juh/západ a ponúka neobmedzený výhľad.
Byt je bezbariérový (bez schodov od vstupu k bytu, k dispozícii je výťah) a disponuje sprchovacím kútom s podlahovým vstupom – čo poskytuje komfort v každodennom živote.
Hodnotné črty:
• cca 80 m² | 3 izby | 9. poschodie | výťah | bezbariérový prístup
• nová kúpeľňa, sprchový kút s podlahovým vstupom
• parkety + veľkoformátové dlaždice + omietané steny
• osvetlenie s nepriamym, stmievateľným svetlom
• úložná miestnosť v byte + sklepné priestory
• južný balkón cca 6 m²
• uzamykateľná podzemná garáž
• kompletná obnova elektroinštalácie (3-adrig)
• poplatok spojený s bytom 390 EUR/mesiac vrátane kúrenia (teplá voda nadizolovaná samostatne)
• energetická trieda C
Okolie
Nehnuteľnosť sa nachádza v pokojnej obytné oblasti v štvrti Bergheim, na severnom okraji Stuttgartu. Okolie je ideálne pre všetkých, ktorí si cenia uvoľnenú a bezpečnú atmosféru bývania. Obchodné možnosti ako Mix Markt, Aldi a Penny sú dostupné len pár minút chôdze. Aj lekárne, pekárne a ordinácie sú v blízkosti a sú pohodlne dostupné na bicykli alebo pešo.
Ponuka voľnočasových a kultúrnych aktivít
Okolie vyniká množstvom možností na rekreáciu v prírode. Oblúbená rekreačná oblasť okolo zámku Solitude a Rotwildpark sú len pár minút vzdialené a vyzývajú na dlhé prechádzky, jogging alebo cyklistiku. Aj Bärensee-Schlössle a lesná turistická trasa sú obľúbenými výletnými destináciami pre milovníkov prírody. V blízkom okolí sa nachádza niekoľko športových klubov a fitness centier. Kultúrnu pestrú ponuku poskytuje Porsche Múzeum v Zuffenhausen a divadelné centrum Theaterhaus Stuttgart so širokým programom divadla, tanca a koncertov. Kultúrne atrakcie stuttgartskej centra sú vďaka výbornej dopravnej dostupnosti takisto rýchlo dosiahnuteľné.
Doprava MHD a autom
Stanica metra „Giebel“ je vzdialená len minútu chôdze a umožňuje pohodlné cestovanie linkou U6 do stuttgartskej centra alebo na hlavnú železničnú stanicu. Šoféri profitujú zo rýchlej dostupnosti na ceste B295 a diaľniciach A8 a A81, takže aj letisko Stuttgart a okolitá mestá sú ľahko dostupné.
Parametre nehnuteľnosti
| Vek | Nad 50 rokov |
|---|---|
| Stav | Po rekonštrukcii |
| Číslo inzerátu | 989275 |
| Úžitková plocha | 80 m² |
| Dostupné od | 11. 2. 2026 |
|---|---|
| Dispozícia | 3+1 |
| PENB | C - Hospodárne |
| Cena za jednotku | 4 688 € / m2 |
Čo táto nehnuteľnosť ponúka?
| Balkón | |
| Garáž | |
| MHD 0 minút pešo |
| Pivnica | |
| Výťah |
V okolí nehnuteľnosti nájdete
Stále hľadáte to pravé?
Nastavte si strážneho psa. Ponuky vybrané na mieru dostanete súhrnne 1× denne e-mailom. S Premium profilom máte po ruke rovno 5 strážcov a keď sa niečo objaví, informujú vás obratom.







