
Predaj bytu 3+1 • 76 m² bez realitkyFrankfurt / Kalbach-Rieberg Kalbach Hessen 60437
Frankfurt / Kalbach-Rieberg Kalbach Hessen 60437MHD do minúty pešo • Výťah • GarážTáto moderná, takmer ako nová 3-izbová bytová jednotka sa nachádza v prvom poschodí veľmi udržiavaného novostavby z roku 2015/2016 (prvé nasťahovanie v roku 2017). Od prvého nasťahovania bola nehnuteľnosť nepretržite obývaná samotným majiteľom, a preto je vo výnimočne udržiavanom stave. Celý obytný komplex je prevažne obývaný vlastníkmi, čo zaručuje pokojné a kvalitné susedstvo.
V tejto časti budovy sa nachádzajú iba 4 bytové jednotky (jeden v prízemí, dva v prvom poschodí, jeden v druhom poschodí), čo prispieva k pokojnej a príjemnej atmosfére bývania.
Celý komplex pozostáva zo 2 budov s celkovo tromi vchodmi. Prístup na pozemok je zabezpečený ako cez hlavnú cestu Kalbach, tak aj cez Langen Meile.
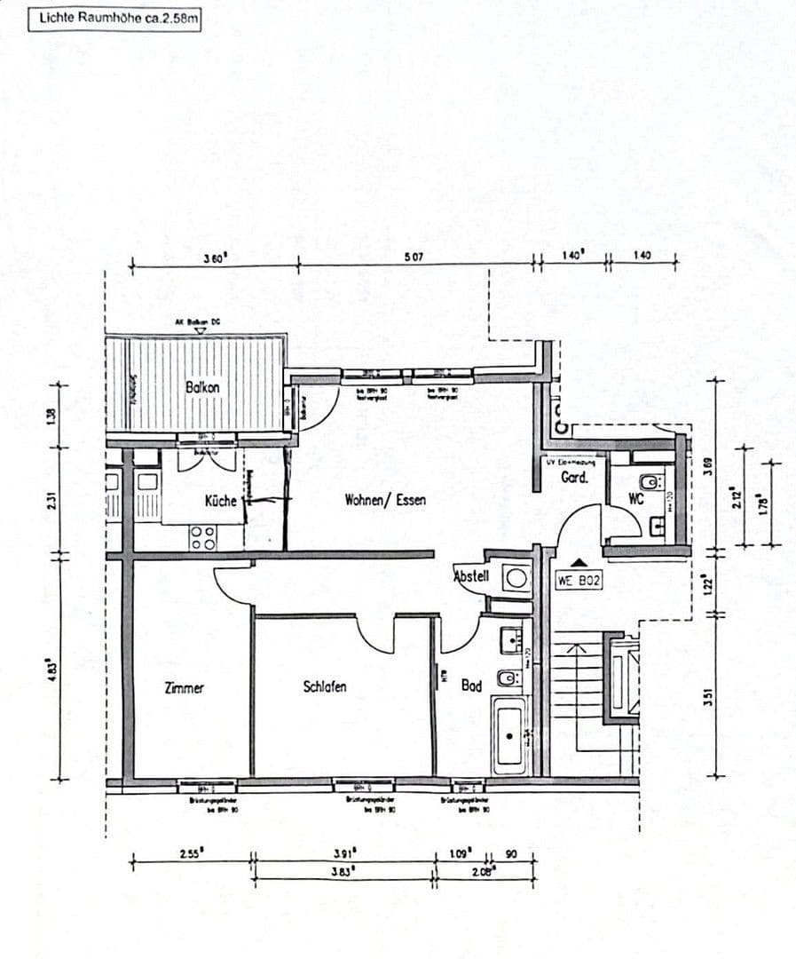
Svetlý obývací a jedálenský priestor, vybavený kvalitnými podlahovými parketami z pravého dreva a podlahovými oknami, ponúka prístup na slnečný západný balkón (cca 6,5 m²), ktorý je vybavený elektrickou markízou. Otvorená, plne vybavená kuchyňa na mieru, s vlastným prístupom na balkón, sa harmonicky začleňuje do celého priestoru.
Hlavná spálňa a flexibilná dodatočná izba (ideálna ako kancelária alebo detská izba) sú taktiež priestranné a disponujú podlahovými oknami.
Priestranná kúpeľňa denného svetla zaujme vaňou vybavenou kvalitnou sklenenou sprchovou výplňou. Rozloženie miestností je ideálne doplnené o samostatnú návštevnú toaletu a malý technický priestor s pripojením pre práčku.
K bytu patrí súkromný sklep a bezpečné horné parkovacie miesto v multiparkingu (súkromný majetok).
Celý byt je samozrejme vybavený podlahovým kúrením a nachádza sa v bezchybne udržiavanom stave.
Na spoločné využitie sú k dispozícii stojany na bicykle, kneja pre bicykle a malé ihrisko. Celý obytný komplex je veľmi dobre udržiavaný a profesionálne spravovaný.
Byt sa nachádza v obľúbenom mestskom obvode Kalbach, ktorý je známy svojím zeleným okolím, rodinne prívetivou atmosférou a vynikajúcim dopravným spojením. Tu si užijete vysokú kvalitu života s priamym prístupom k prírode a všetkým základným zariadeniam dennej potreby.
Supermarket Rewe, pekáreň, mäsiarsky obchod, lekárne, MHD, školy a škôlky sú pohodlne pešo dostupné len za pár minút a navyše využijete rozsiahle zelené plochy v bezprostrednej blízkosti bytu.
Pokiaľ ide o dopravu, je lokalita optimálne spojená:
• autobusová linka a metro smerom do centra
• blízkosť k Riedbergu, Oberurselu, Bad Homburg a diaľničným prístupom
• letisko dostupné za menej ako 20 minút
V bezprostrednej blízkosti nájdete aj početné športové a rekreačné možnosti (golfové ihrisko, golfový driving range, tenisové a športové ihriská, rôzne športové kluby, fitness centrá, rozsiahle polia a rekreačné oblasti).
• Rok výstavby 2015/2016 – prvé nasťahovanie v roku 2017 (veľmi udržiavaný, takmer ako nový stav – od prvého nasťahovania nepretržite obývaný majiteľom)
• Budova je spravovaná finančne stabilným spoločenstvom vlastníkov. Existujúci fond údržby pokrýva plánované budúce opravy a poskytuje kupujúcemu vysokú istotu pred nepredvídanými mimoriadnymi príplatkami.
• Energetická trieda C
• Komfortné podlahové kúrenie vo všetkých miestnostiach, samostatne nastaviteľné
• Parkety z pravého dreva vo všetkých obytných miestnostiach
• Podlahové okná
• Plne vybavená kuchyňa na mieru
• Západný balkón (cca 6,5 m²), prístupný z kuchyne aj obývacej/jedálenskej miestnosti, vybavený elektrickou markízou
• Samostatná návštevná toaleta
• Samostatná miestnosť s pripojením pre práčku
• Výťah
• Videointercom
• Súkromné parkovacie miesto v garáži (horné miesto vhodné pre kompaktné SUV, napr. VW T-Roc, v multiparkingu, samostatný majetok + 19 500 €)
• Vlastný sklep
• Kneja pre bicykle
• Udržiavaná záhradná časť
Predaj prebieha súkromne – prosíme, vyhnite sa dopytom od maklérov.
Potrebné dokumenty môžu byť k dispozícii aj v digitálnej podobe.
Prosíme o pochopenie, že prehliadky budú najprv ponúkané záujemcom s preukázaným zabezpečeným financovaním, aby bola zabezpečená rýchla a záväzná realizácia pre všetky strany.
Parametre nehnuteľnosti
| Vek | Nad 50 rokov |
|---|---|
| Stav | Dobrý |
| Poschodie | 1. poschodie z 3 |
| PENB | C - Hospodárne |
| Cena za jednotku | 6 039 € / m2 |
| Dostupné od | 1. 5. 2026 |
|---|---|
| Dispozícia | 3+1 |
| Číslo inzerátu | 987685 |
| Úžitková plocha | 76 m² |
Čo táto nehnuteľnosť ponúka?
| Balkón | |
| Pivnica | |
| Výťah |
| Bezbariérový prístup | |
| Garáž | |
| MHD 0 minút pešo |
V okolí nehnuteľnosti nájdete
Stále hľadáte to pravé?
Nastavte si strážneho psa. Ponuky vybrané na mieru dostanete súhrnne 1× denne e-mailom. S Premium profilom máte po ruke rovno 5 strážcov a keď sa niečo objaví, informujú vás obratom.





























