
Predaj domu 5+kk • 103 m² bez realitky, Bádensko-Wurttembersko
, Bádensko-WurttemberskoMHD 3 minúty pešo • Parkovanie • GarážNasťahovanie – Pohoda
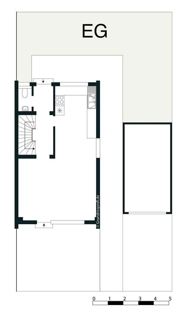
Táto kompletne zmodernizovaná dvojdomovňa v blízkosti centra oslovuje svojimi prehĺbenými, svetlými priestormi a štýlovým vybavením. Štědré okná zabezpečujú svetlé a prívetivé prostredie, pričom záhrada je starostlivo upravená a láka na oddych. Rozsiahla obytná plocha poskytuje veľa úložného priestoru na rôznych poschodiach aj v garáži.
VÝHLY AD PREGLED:
• Kompletná modernizácia 2018 – každoročné investície až do roku 2024
• Veľké okná – a tak svetlé miestnosti v celom dome
• Blízko centra – len pár minút do centra Nürtingenu
• Dopravne upokojovaná ulica – pokojná lokalita s príjemným susedstvom
• Veľká, slnečná juhozápadná terasa – kompletne oplotená s elektrickou markízou
• Udržiavaná záhrada – s priestrannou pergolou, technickou budkou a priestorom na bicykle
• Samostatná garáž s elektrickou bránou a silovým pripojením s wallboxom
MODERNIZÁCIE:
2009 Plastové okná (prízemie, poschodie, podkrovia)
2011 Plynové kúrenie so solárnou termikou
2012 Kúpeľňa & hosťovské WC
2015 Strešný hrebienok
2016 Vodovodné potrubia od suterénu po podkrovia
2018 Otvorenie priechodu steny pri obývacej/jedálenskej miestnosti, elektroinštalácie, podlahy, kúrenárske telesá, kuchyňa, wallbox, zábradlie schodiska, omietnutie všetkých stien vrátane maliarskych prác, vnútorné dvere
2019 Plastové okná v suteréne, nová úprava záhrady
2021 Rolety v spálni/šatníku, práčovňa s vaňou
2023 Kompletné utesnenie balkóna, elektrická markíza na terase
2024 Nová prístupová cesta do garáže
Dvojdomovňa sa nachádza v pokojnej, no zároveň centrálnej lokalite Nürtingenu. Obchody, školy, materské školy, pekárne ako aj verejná doprava sú v bezprostrednej blízkosti. Nürtingenská stanica je vzdialená približne 12 minút pešo, rovnako aj zastávka Tälesbahn „Nürtinger Vorstadt“.
VYBAVENIE:
• Luxusná omietka na všetkých stenách
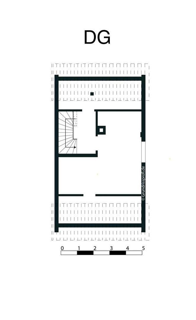
• Podlahy: v suteréne – dlaždice/prírodný materiál, prízemie – vinyl/desingová podlaha, poschodie a podkrovia – laminát
• Kvalitná vstavaná kuchyňa s Miele a Bosch spotrebičmi
• V podkroví veľa úložného priestoru so dvoma skladišťami a špicovou komorou
• Elektrická markíza na terase
• Veľká technická budka pre bicykle, odpadkové nádoby a náradie, so zásuvkami a elektrickým pripojením na osvetlenie
• Pod pergolou dostatok priestoru na gril a napríklad sedenie
• Vaňa v suteréne
• Kvalitné vstavané kuchynské skrine v práčovni v suteréne
• Garáž s elektrickou bránou a wallboxom
• Plynové ústredné kúrenie s ohrevom vody pomocou solárnej termiky
Parametre nehnuteľnosti
| Vek | Nad 50 rokov |
|---|---|
| Stav | Po rekonštrukcii |
| Číslo inzerátu | 984341 |
| Úžitková plocha | 103 m² |
| Celkové poschodia | 3 |
| Dostupné od | 1. 9. 2026 |
|---|---|
| Dispozícia | 5+kk |
| PENB | E - Nehospodárne |
| Plocha pozemku | 182 m² |
| Cena za jednotku | 5 777 € / m2 |
Čo táto nehnuteľnosť ponúka?
| Balkón | |
| Garáž | |
| MHD 3 minúty pešo |
| Pivnica | |
| Parkovanie | |
| Terasa |
V okolí nehnuteľnosti nájdete

Predaj domuSophie Tschorn Str. 71 Stuttgart Bad Cannstatt Baden-Württemberg 70374- 5+1
- 136 m²
- 144 m²
685 000 €

Stále hľadáte to pravé?
Nastavte si strážneho psa. Ponuky vybrané na mieru dostanete súhrnne 1× denne e-mailom. S Premium profilom máte po ruke rovno 5 strážcov a keď sa niečo objaví, informujú vás obratom.





















