
Predaj bytu 2+1 • 58 m² bez realitkyHamburg Hohenfelde Hamburg 22087
Táto vysoko kvalitne zmodernizovaná 2-izbová byt zjednocuje premyslené rozdelenie priestoru, dostatok denného svetla a výnimočnú polohu priamo pri kanáli Eilbek.
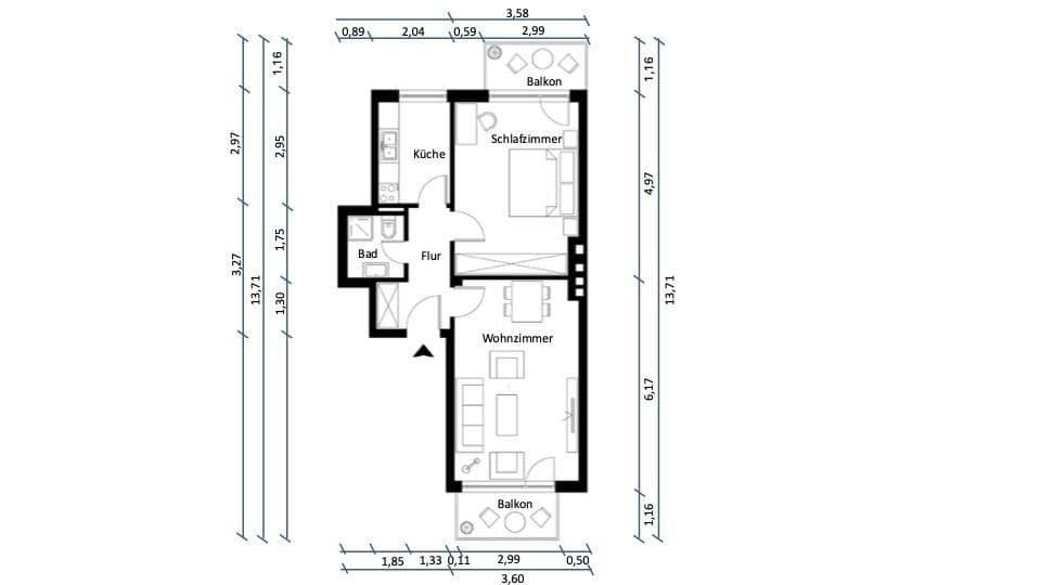
S približne 58 m² obytného priestoru ponúka byt dve dobre vyvážené izby, ktoré je možné flexibilne využívať – ideálne pre rôzne koncepčné bývanie. Čistý pôdorys zabezpečuje štruktúru a súkromie, zatiaľ čo veľké okná prinášajú svetlú a priateľskú atmosféru.
Skutočným lákadlom sú dva balkóny orientované na juh s výhľadom do zelene aj na kanál – ideálne miesta pre oddychové chvíle uprostred mesta.
Moderná sprchovňa s bezbariérovou sprchou, elektrické vonkajšie žalúzie a praktická vstavaná skriňa v chodbe zdôrazňujú súčasný komfort bývania. K bytu patrí aj pivnica a spoločná záhrada, ktoré výhodne dopĺňajú celkovú ponuku.
Byt sa nachádza v udržiavanom viacrodinnom dome z roku 1959 a je okamžite k dispozícii na nasťahovanie.
Eilenau prebieha paralelne s kanálom Eilbek – zelená, pokojná a napriek tomu úžasne centrálná. Tu Hamburg prezentuje svoju pokojnejšiu stránku, bez toho, aby sa musel vzdať svojej mestskosti.
Alster, Kuhmühlenteich a dlhé cesty popri vode sú doslova za rohom. Či už ide o ranný beh, spontánnu SUP túru alebo jednoducho relax pri kanáli – voľný čas začína priamo na prahu.
Kaviarne, reštaurácie, obchody a verejná doprava sú ľahko dostupné pešo. Krátke vzdialenosti do centra a k dôležitým dopravným uzlom robia každodenný život príjemne jednoduchým. Hohenfelde patrí medzi najžiadanejšie mestské lokality Hamburgu – pokojne vybudovaná, vynikajúco prepojená a charakterizovaná vodou, zeleňou a klasickou architektúrou.
Blízkosť k vonkajšiemu Alsteru aj kanálu Eilbek dodáva štvrti výnimočnú kvalitu bývania: krátke cesty do centra sa prelínajú s uvoľnenými prechádzkami, joggingovými trasami popri vode a skutočnými útočiskami priamo uprostred mesta.
Typické pre Hohenfelde sú udržiavané historické budovy, zeleň lemujúce ulice a pokojné, príjemné susedstvo. Kaviarne, reštaurácie, obchody a verejná doprava sa nachádzajú v bezprostrednej blízkosti, čo robí každodenný život jednoduchým a flexibilným.
Vďaka centrálnej polohe medzi centrom, Alsterom a východnými mestskými časťami patrí Hohenfelde medzi lokality, ktoré si už roky udržiavajú stabilný a vysoký dopyt – ako pre vlastné bývanie, tak aj ako dlhodobá, hodnotná investícia.
Vybavenie – Moderné, udržiavané, pripravené na okamžité nasťahovanie
Byt bol na konci roku 2025 vysoko kvalitne zmodernizovaný a prezentuje sa v súčasnom, udržiavanom stave:
• Moderná sprchovňa s bezbariérovou sprchou
• Dva balkóny
• Elektrické vonkajšie žalúzie
• Vstavaná skriňa v chodbe pre praktické úložné priestory
• Svetlé izby s čistými líniami
• Pivnica a spoločná záhrada
• Flexibilné rozdelenie izieb vhodné aj pre spolubývanie
Okamžite k dispozícii
Všetko je pripravené na priamy nástup – bez stavebných prác, bez čakania.
Byt pre každého, kto si chce užívať Hamburg – centrálne, zelené a pri vode.
Jednoducho, premyslene a s perspektívou.
Predaj súkromným osobám od súkromných osôb.
Jasné. Priame. Bez provízie.
Parametre nehnuteľnosti
| Vek | Nad 50 rokov |
|---|---|
| Stav | Po rekonštrukcii |
| Číslo inzerátu | 985447 |
| Úžitková plocha | 58 m² |
| Dostupné od | 28. 1. 2026 |
|---|---|
| Dispozícia | 2+1 |
| PENB | E - Nehospodárne |
| Cena za jednotku | 7 741 € / m2 |
Čo táto nehnuteľnosť ponúka?
| MHD 1 minúta pešo |
V okolí nehnuteľnosti nájdete
Stále hľadáte to pravé?
Nastavte si strážneho psa. Ponuky vybrané na mieru dostanete súhrnne 1× denne e-mailom. S Premium profilom máte po ruke rovno 5 strážcov a keď sa niečo objaví, informujú vás obratom.











