
Predaj bytu 3+1 • 86 m² bez realitkyBerlin Rummelsburg Berlin 10317
Berlin Rummelsburg Berlin 10317MHD 3 minúty pešoTento provízni oslobodený 3-izbový byt v staršej budove sa nachádza v Berlíne-Lichtenberg na mieste, ktoré je v Berlíne zriedkavé: len cca 2 minúty pešo k S-Bahn, pričom je príjemne tichý – a centrum mesta je dostupné S- a U-Bahn rýchlo a čiastočne aj bez prestupov. Ideálny pre tých, ktorí chcú bývať centrálne, ale nechcú sa vzdať kvality bývania.
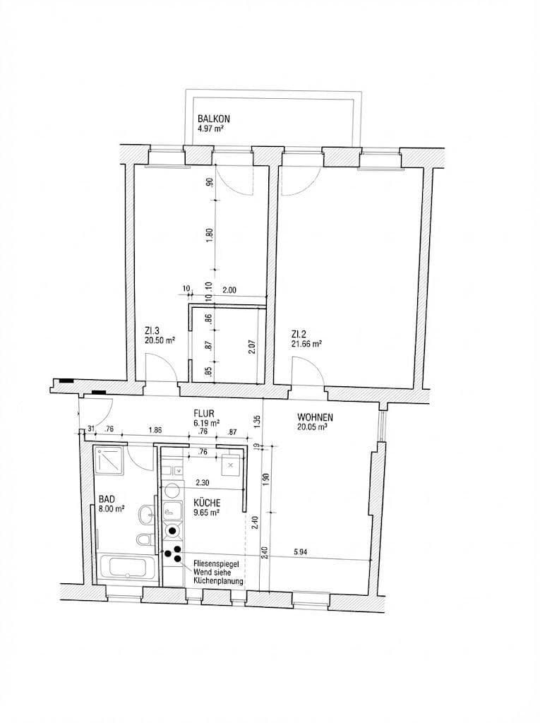
Dispozícia bytu je premyslená a vhodná do každodenného života: Dve uzamykateľné izby ponúkajú flexibilné využitie (spálňa, pracovňa, pre deti/hostí), doplnené priestranným obývacím a jedálenským priestorom s otvorenou kuchyňou, ktorá tvorí centrálny bod bytu.
Kuchyňa je funkčná a ponúka kvalitné detaily ako mramorová pracovná doska a novo inštalovaná umývadlová misa s batériou. Zvyšný stav kuchyne je použitý, ale plne funkčný.
Výnimočným komfortným prvkom je spálňa s prechodným šatníkom, v ktorom boli nedávno nainštalované nové zabudované skrine – veľké úložné priestory bez straty obytného priestoru.
Kúpeľňa ponúka veľkú vaňu a samostatný sprchovací kút (bez prahu alebo priamo na podlahe), čím spája praktickosť aj komfort.
K bytu patrí aj veľký pivničný priestor, ktorý je v starších budovách mimoriadne cenný. Celkovo je byt udržiavaný; niektoré vybavovacie detaily boli počas posledných rokov obnovené, takže je možný okamžitý vklad bez väčších rekonštrukčných prác.
Byt sa nachádza v berlínskom obvode Lichtenberg (Wönnichstraße), v lokalite, ktorá ideálne spája centrálnu dostupnosť a pokojné bývanie. S-Bahn stanica je pešo dostupná za cca dve minúty.
Odtiaľ je veľmi dobré spojenie do berlínskeho centra. Či už so S-Bahn alebo U-Bahn, mnohé centrálné body sú dostupné rýchlo a čiastočne aj bez prestupov.
Napriek vynikajúcej dopravnej dostupnosti je okolie bytu príjemne pokojné. V blízkosti sa nachádzajú obchody, kaviarne, lekári a ďalšie zariadenia dennej potreby. Lokalita je obzvlášť obľúbená u tých, ktorí chcú bývať blízko centra, no nechcú sa vzdať kvality bývania.
• Byt v staršej budove
• Udržiavaný stav
• Drevené podlahy
• Priestranný obývací a jedálenský priestor s otvorenou kuchyňou
• Kuchyňa s mramorovou pracovnou doskou, novým umývadlom a novou batériou
• Spálňa s prechodným šatníkom a novými policami
• Kúpeľňa
• Veľký pivničný priestor
• Predaj bez provízie, súkromný predaj
Parametre nehnuteľnosti
| Vek | Nad 50 rokov |
|---|---|
| Stav | Dobrý |
| Poschodie | 1. poschodie z 5 |
| Úžitková plocha | 86 m² |
| Dostupné od | 24. 1. 2026 |
|---|---|
| Dispozícia | 3+1 |
| Číslo inzerátu | 984333 |
| Cena za jednotku | 5 291 € / m2 |
Čo táto nehnuteľnosť ponúka?
| Balkón | |
| MHD 3 minúty pešo |
| Pivnica |
V okolí nehnuteľnosti nájdete
Stále hľadáte to pravé?
Nastavte si strážneho psa. Ponuky vybrané na mieru dostanete súhrnne 1× denne e-mailom. S Premium profilom máte po ruke rovno 5 strážcov a keď sa niečo objaví, informujú vás obratom.


















