
Predaj bytu 3+1 • 82 m² bez realitkyAngerstraße 5 Augsburg Haunstetten Bayern 86179
Angerstraße 5 Augsburg Haunstetten Bayern 86179MHD 3 minúty pešo • Parkovanie • GarážOkamžite nasťahovateľný, zrekonštruovaný byt so západným balkónom a dvoma parkovacími miestami v podzemnej garáži
Ponúkaný byt sa nachádza v udržiavanom viacfamilijnom dome v dobrom stave. Budova bude ešte v tomto roku vybavená novým plynovým vykurovaním. Náklady spojené s touto inštaláciou budú úplne pokryté už schválenými mimoriadnymi príspevkami, takže kupujúci nebude čeliť ďalším mimoriadnym poplatkom.
Byt bol dôkladne zrekonštruovaný a predstavuje moderný, veľmi udržiavaný stav. Pri rekonštrukcii boli obnovené elektroinštalácie, sanitárne potrubia boli úplne vymenené a kúpeľňa kompletne zmodernizovaná. Okrem toho boli položené nové podlahy, čím vzniká súčasná a príjemná atmosféra.
Vďaka prepracovanému dispozíciu a príjemnému osvetleniu ponúka byt veľmi dobrý pocit z bývania. Byt je okamžite nasťahovateľný a je ideálny nielen na vlastné bývanie, ale aj ako atraktívna investícia.
Byt je ponúkaný bez provízie, teda bez sprostredkovateľa.
K bytu patria dve parkovacie miesta v podzemnej garáži, pričom každé je ohodnotené na 20 000 €. Celková cena za obe miesta je teda 40 000 € a príde nad rámec uvádzané kúpnej ceny bytu.
Spoločné vlastníctvo budovy je celkovo v dobrom a udržiavanom stave.
Byt sa nachádza v obľúbenom štvrti Haunstetten na juhu Augsburgu. Táto štvrť sa vyznačuje pokojnou, ustálenou obytnou štruktúrou a veľmi dobrou infraštruktúrou a patrí medzi žiadané životné oblasti mesta.
Obchodné možnosti pre každodenné potreby, pekárne, lekárne a ordinácie sú dostupné pešo. Dopravné spojenie s verejnou dopravou je veľmi dobré, takže centrum Augsburgu ako aj ďalšie štvrte sú rýchlo a pohodlne dostupné.
V blízkosti sa nachádza množstvo zelených plôch a príležitostí na rekreáciu, čo prispieva k vysokej kvalite bývania a života. Poloha ponúka ideálnu kombináciu mestského prístupu a príjemného obytného pokoja.
Vzhľadom na stabilný dopyt je byt vynikajúcou voľbou nielen na vlastné bývanie, ale aj ako atraktívna investícia.
Byt disponuje vysoko kvalitným a nadčasovým vybavením a nachádza sa vo veľmi udržiavanom stave. V obytných priestoroch boli položené parkety, ktoré vytvárajú teplé a príjemné prostredie. Kúpeľňa a ďalšie funkčné priestory sú vybavené kvalitnými dlaždicami.
Priestranná kúpeľňa bola zmodernizovaná a komfortne upravená. Jednou z výnimočností je bezbariérový, bezešvý prechod do sprchy, ktorý pôsobí nielen esteticky, ale aj funkčne. Priestranná dažďová sprcha zabezpečuje vysoký komfort pri sprchovaní. Kúpeľňa je navyše vybavená dvoma kvalitnými umývadlami, osvetleným zrkadlom a pripojením pre práčku vo veľkej kúpeľni. Vybraný podlahový kryt sa harmonicky začleňuje do celkového dojmu.
V byte sú už nainštalované stropné svietidlá, takže je možný okamžitý nástup bez ďalších inštalačných prác.
Byt sa predáva bez vstavané kuchyne, čo kupujúcemu poskytuje možnosť zariadiť si kuchyňu individuálne podľa vlastných predstáv.
Parametre nehnuteľnosti
| Vek | Nad 50 rokov |
|---|---|
| Stav | Po rekonštrukcii |
| Poschodie | 2. poschodie z 3 |
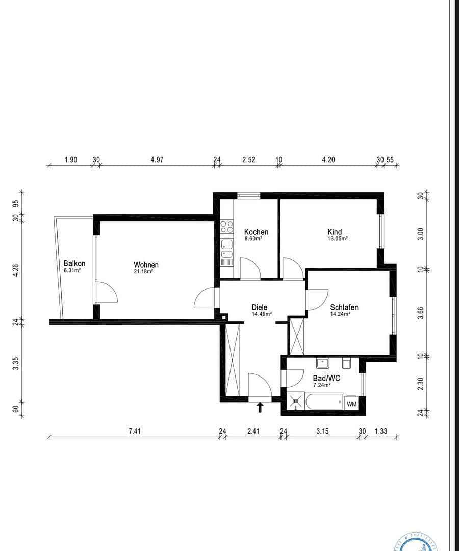
| Úžitková plocha | 82 m² |
| Dostupné od | 28. 1. 2026 |
|---|---|
| Dispozícia | 3+1 |
| Číslo inzerátu | 984227 |
| Cena za jednotku | 4 817 € / m2 |
Čo táto nehnuteľnosť ponúka?
| Balkón | |
| Pivnica | |
| Parkovanie |
| Bezbariérový prístup | |
| Garáž | |
| MHD 3 minúty pešo |
V okolí nehnuteľnosti nájdete
Stále hľadáte to pravé?
Nastavte si strážneho psa. Ponuky vybrané na mieru dostanete súhrnne 1× denne e-mailom. S Premium profilom máte po ruke rovno 5 strážcov a keď sa niečo objaví, informujú vás obratom.














