
Predaj bytu 3+1 • 85 m² bez realitkySchottstraße 6 Stuttgart Nord Baden-Württemberg 70192
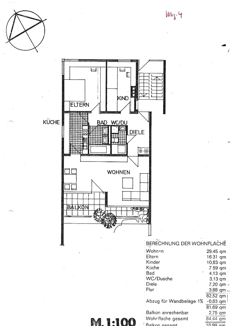
Schottstraße 6 Stuttgart Nord Baden-Württemberg 70192MHD 2 minúty pešo • ParkovanieTento krásny, udržiavaný byt v nadzemnom poschodí sa vyznačuje kvalitným vnútorným vybavením. Okrem troch príjemných izieb patrí k bytu kúpeľňa a samostatná sprchovňa s WC. K dispozícii je aj aktuálny energetický preukaz. Všimnite si, že balkón ponúka úžasnú možnosť oddýchnuť si od každodenného zhonu. Okrem toho máte k dispozícii vstavanú kuchyňu, prístrešené parkovacie miesto pre vaše auto a dve pivnice. Byt sa nachádza v pokojnej spoločnosti ôsmich bytov.
Vstavaná kuchyňa, veľká svetlá moderná vstavaná skriňa (5 m) v spálni, vstavaná skriňa so šatníkom v predsieni a vstavaný regál v detskej izbe. Vstavaná skriňa sa nachádza aj v kúpeľni a v sprchovni.
Kúpeľňa je vybavená vaňou, umývadlom a prípojkou pre práčku.
Samostatná sprchovňa so WC.
V obývacej a jedálni je zabudovaná posuvná oknová stena od podlahy až po strop dlhá približne 8 metrov s výhľadom do zelene, pričom veľké sklenené posuvné dvere vedú na balkón.
V obývacích priestoroch bol položený diagonálny masívny parket.
Schottstraße, ktorá sa nachádza na mierne vyvýšenom mieste pod Bismarckturm, patrí medzi najprestížnejšie adresy v Stuttgarte.
Moderný a udržiavaný dom stojí v mimoriadne pokojnej lokalite s množstvom zelene, rozľahlou záhradou a krásnym výhľadom až k televíznej veži na druhej strane Stuttgartu.
Autobusové zastávky smerujúce do centra mesta a k Pragsattel cez Killesberg sú pešo vzdialené približne 3 minúty. Autobus jazdí každých 10 minút.
Königstraße je pešo dostupná za 25 minút.
Parametre nehnuteľnosti
| Vek | Nad 50 rokov |
|---|---|
| Dispozícia | 3+1 |
| Číslo inzerátu | 982844 |
| Úžitková plocha | 85 m² |
| Stav | Dobrý |
|---|---|
| Poschodie | 1. poschodie z 3 |
| PENB | D - Menej hospodárne |
| Cena za jednotku | 5 635 € / m2 |
Čo táto nehnuteľnosť ponúka?
| Balkón | |
| Parkovanie |
| Pivnica | |
| MHD 2 minúty pešo |
V okolí nehnuteľnosti nájdete
Stále hľadáte to pravé?
Nastavte si strážneho psa. Ponuky vybrané na mieru dostanete súhrnne 1× denne e-mailom. S Premium profilom máte po ruke rovno 5 strážcov a keď sa niečo objaví, informujú vás obratom.

























