
Prenájom bytu 2+1 • 82 m² bez realitkyHauptstraße 2, , Severné Porýnie - Westfálsko
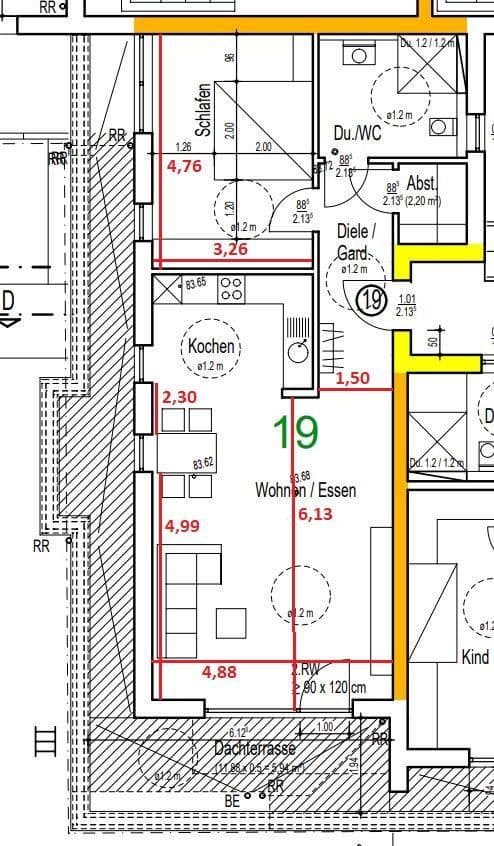
Hauptstraße 2, , Severné Porýnie - WestfálskoMHD 3 minúty pešo • Výťah • ParkovanieTento exkluzívny 2-izbový byt s približne 76 m² obytnou plochou sa nachádza v druhom nadzemnom poschodí moderného viacbytového domu novej výstavby s KfW 55 štandardom v Siegburg-Kaldauen. Byt disponuje balkónom s rozlohou približne 12 m², z ktorého je výhľad na Siebengebirge a les.
K vysokej vybavenosti patrí parketová podlaha v obývacej izbe a spálni, pričom v ostatných miestnostiach sú položené veľké dlaždice.
Všetky miestnosti sú vybavené podlahovým kúrením.
Sprchová kúpeľňa sa nachádza v prízemí, je osvetlená oknom a vybavená kúrením so systémom držiaka na uteráky.
Parkovacie miesto je z bytu viditeľné.
Výťah uľahčuje prístup k bytu, ktorý je zároveň navrhnutý pre bezbariérový prístup.
K dispozícii je aj profesionálne vybavená zabudovaná kuchyňa so spotrebičmi značky Bosch; kúrenie je zabezpečené prostredníctvom centrálneho vykurovania, ktorého náklady sú zahrnuté v prevádzkových nákladoch.
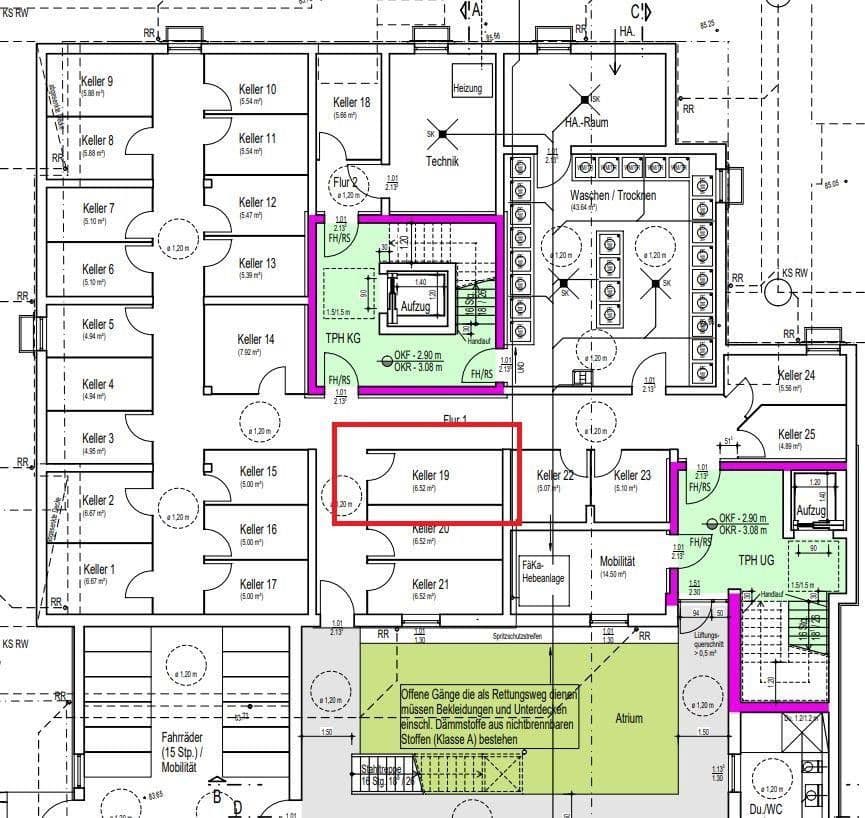
Vlastná pivnica s rozlohou 6,5 m² poskytuje ďalší úložný priestor.
Byt je k dispozícii od 1.1.2026.
Domáce zvieratá nie sú povolené.
Siegburg-Kaldauen, nachádzajúci sa v srdci okresu Rhein-Sieg, ponúka vynikajúcu infraštruktúru.
Množstvo obchodov, ordinácií a reštaurácií je dostupných pešo.
Vynikajúce spojenie s verejnou dopravou umožňuje rýchle spojenie s Kolínom nad Rýnom a Bonnom.
Blízke zelené plochy a možnosti rekreácie lákajú na oddych.
Byt je vybavený veľmi kvalitne.
Okrem výťahu a vysoko kvalitných podláh je aj kúpeľňa zariadená – nachádza sa tu zrkadlo, spodná skriňa a kúrenie so systémom držiaka na uteráky.
Parametre nehnuteľnosti
| Vek | Nad 50 rokov |
|---|---|
| Stav | Novostavba |
| Poschodie | 2. poschodie |
| Úžitková plocha | 82 m² |
| Dostupné od | 1. 1. 2026 |
|---|---|
| Dispozícia | 2+1 |
| Číslo inzerátu | 979831 |
| Cena za jednotku | 16 € / m2 |
Čo táto nehnuteľnosť ponúka?
| Balkón | |
| Pivnica | |
| Parkovanie |
| Bezbariérový prístup | |
| Výťah | |
| MHD 3 minúty pešo |
V okolí nehnuteľnosti nájdete
Stále hľadáte to pravé?
Nastavte si strážneho psa. Ponuky vybrané na mieru dostanete súhrnne 1× denne e-mailom. S Premium profilom máte po ruke rovno 5 strážcov a keď sa niečo objaví, informujú vás obratom.






























