
Predaj bytu 2+1 • 58 m² bez realitkyHamburg Hohenfelde Hamburg 22085
Volám sa Ann-Kristin Trost a predstavujem Vám tento vysoko kvalitne kompletne zrenovovaný 2-izbový byt, situovaný na atraktívnej lokalite priamo pri Eilbekkanal v srdci Hamburgu.
Byt bol kompletne prepracovaný a modernizovaný s vysokými nárokmi na kvalitu, funkčnosť a moderný dizajn. Premyslený koncept priestoru spája súčasné bývanie s pokojným, prírodným prostredím v centrálnej oblasti.
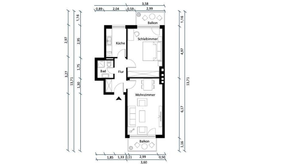
Na ploche približne 58 m² Vás čakajú svetlé, príjemne zariadené miestnosti a neblokovateľný výhľad na Eilbekkanal. Byt je ideálny pre jednotlivcov alebo páry, ktorí chcú spojiť mestský život s možnosťou oddychu.
Medzi špeciálne vybavenie patria dva balkóny. Pokojne situovaný južný balkón s výhľadom do zelene ponúka dodatočný komfort bývania a vyzýva na relax. Už pri vstupe do bytu panuje príjemná a kvalitná atmosféra.
Moderná sprchovňa je vybavená kvalitnými materiálmi, elegantnými veľkoformátovými dlaždicami a moderným zariadením.
Byt je okamžite k dispozícii na nastěhovanie. Rada Vám poskytnem ďalšie informácie alebo sprostredkujem osobnú prehliadku.
Atraktívna lokalita medzi Außenalster a Eilbekkanal
Byt sa nachádza v obľúbenom hamburskom mestskom obvode Hohenfelde, ktorý je cenený pre svoju centrálnu polohu a blízkosť k Außenalster a Eilbekkanal. Eilenau preteká priamo pozdĺž kanála a vyznačuje sa pokojnou, zelene obklopenou atmosférou a historickým charakterom.
Obytné prostredie je charakterizované udržiavanými budovami zakladateľskej éry, starým stromovým porastom a upravenými záhradami, čo celému štvrti dodáva príjemnú a vyspelú atmosféru bývania. Nedaleký Kuhmühlenteich ponúka dodatočné možnosti oddychu a vyzýva na prechádzky, športové aktivity alebo len tak k posedávaniu pri vode.
Dopravné spojenie je veľmi dobré. Hamburger centrum aj ďalšie mestské časti sú dostupné za pár minút, či už autom alebo verejnou dopravou.
Obchody pre každodenné potreby, kaviarne, reštaurácie, vysoké školy a kultúrne inštitúcie sa nachádzajú v pešej vzdialenosti, čo zabezpečuje vynikajúcu infraštruktúru.
Kombinácia centrálnej polohy, blízkosti vody a zelenej krajiny robí z Hohenfelde vyhľadávanú adresu pre všetkých, ktorí chcú spojiť mestský život s vysokou kvalitou bývania.
Moderné bývanie – svetlé, kvalitné a premyslené
Tento byt zaujme vďaka jasne usporiadanému pôdorysu, komplexnej vysoko kvalitnej modernizácii a priestrannému prístupu denného svetla, ktoré vytvára príjemnú a priateľskú atmosféru. Pri rekonštrukcii sa kládol veľký dôraz na kvalitu, funkčnosť a nadčasové vybavenie.
Zariadenie v prehľade:
• Svetlý obývací a jedálenský priestor s veľkými oknami a výhľadom na Eilbekkanal
• Pokojne situovaná spálňa s výhľadom do zelene
• Novoinštalované, moderné podlahové krytiny vo všetkých obytných miestnostiach
• Dva balkóny: slnečný južný balkón s výhľadom na zeleň a ďalší balkón s výhľadom na kanál
• Moderná sprchovňa s kvalitnými dlaždicami a značkovými armaturami
• Samostatná kuchyňa s priestorom na varenie a spoločné stolovanie
• Praktická vstavaná skriňa pri vstupe pre dodatočné úložné priestory
• Elektrické žalúzie a uzamykateľné okná pre zvýšený komfort a bezpečnosť
• Integrované osvetľovacie systémy v kuchyni, kúpeľni a chodbe
• Samostatná pivničná miestnosť (približne 7 m²) ako dodatočný úložný priestor
Atraktívna ponuka bývania, ktorá spája súčasný komfort s príjemnou atmosférou a vyhľadávanou lokalitou – ideálna pre náročných vlastníkov alebo investičných kupcov.
Súkromný predaj
Parametre nehnuteľnosti
| Vek | Nad 50 rokov |
|---|---|
| Stav | Po rekonštrukcii |
| Poschodie | 1. poschodie |
| PENB | E - Nehospodárne |
| Cena za jednotku | 7 741 € / m2 |
| Dostupné od | 11. 1. 2026 |
|---|---|
| Dispozícia | 2+1 |
| Číslo inzerátu | 979751 |
| Úžitková plocha | 58 m² |
Čo táto nehnuteľnosť ponúka?
| MHD 2 minúty pešo |
V okolí nehnuteľnosti nájdete
Stále hľadáte to pravé?
Nastavte si strážneho psa. Ponuky vybrané na mieru dostanete súhrnne 1× denne e-mailom. S Premium profilom máte po ruke rovno 5 strážcov a keď sa niečo objaví, informujú vás obratom.













