
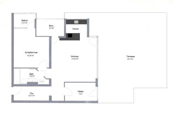
Predaj bytu 3+1 • 99 m² bez realitkyOhechaussee 161, , Šlezvicko-Holštajnsko
Ohechaussee 161, , Šlezvicko-HolštajnskoMHD 5minút pešo • Výťah • GarážModerná budova z klinkeru, pozostávajúca z podzemného garáže/pivnice, prízemia, poschodí a podkrovia, bola dokončená v roku 2019. V celej budove sa nachádza 8 bytov, pričom v podkroví sú 2 byty. Ku každému bytu náleží parkovacie miesto v podzemnej garáži. Priestory sa vyznačujú prémiovým interiérovým vybavením s veľkoformátovými dlaždicami a designovým vinylovým podlahovým krytom s dreveným vzhľadom. K bytu patrí aj vstavaná kuchyňa s prémiovými spotrebičmi. Byt disponuje priestrannou kúpeľňou s bezbariérovou sprchou a samostatným WC pre hostí.
Mesto Norderstedt sa nachádza na severe Hamburgu. Je piatym najväčším mestom Šleswig-Holštajnska. Navyše, Norderstedt je najväčším mestom okresu Segeberg. Vďaka diaľnici A7 a ceste B432 ste rýchlo dostupní vo všetkých smeroch – hlavné nádražie v Hamburgu dosiahnete približne za 30 minút. Verejná doprava taktiež optimálne spája mesto s Hamburgom. Zastávka autobusovej linky 191 je vzdialená len niekoľko minút chôdze. Vďaka výhodnej polohe sú všetky obchody dennej potreby dostupné pešo.
Nehnuteľnosť je vysoko kvalitne vybavená:
- podzemná garáž
- výťah
- strešná terasa s rozlohou viac ako 32 m²
- designová vinylová podlaha s autentickým dreveným vzhľadom
- veľkoformátové dlaždice
- bezbariérová sprcha
- hostinské WC
- vstavaná kuchyňa
- domofón s videofunkciou
- podlahové kúrenie
- plynová kondenzačná jednotka a solárny systém
- decentralizovaný systém vetrania a odsávania vzduchu
- okná s odhlučnením
Parametre nehnuteľnosti
| Vek | Nad 50 rokov |
|---|---|
| Dispozícia | 3+1 |
| Číslo inzerátu | 977212 |
| Cena za jednotku | 5 343 € / m2 |
| Stav | Veľmi dobrý |
|---|---|
| Poschodie | 2. poschodie z 3 |
| Úžitková plocha | 99 m² |
Čo táto nehnuteľnosť ponúka?
| Garáž | |
| MHD 5 minút pešo |
| Výťah |
V okolí nehnuteľnosti nájdete
Stále hľadáte to pravé?
Nastavte si strážneho psa. Ponuky vybrané na mieru dostanete súhrnne 1× denne e-mailom. S Premium profilom máte po ruke rovno 5 strážcov a keď sa niečo objaví, informujú vás obratom.
















