
Predaj bytu 2+1 • 93 m² bez realitkyDuncker Str. 20 Berlin Prenzlauer Berg Berlin 10437
Byt so záhradou bez provízie v blízkosti Helmholtzplatz
93 m² obytná plocha + 82 m² záhrada
SÚKROMNE PREDAJ.
Na predaj je pôvabný byt so záhradou na Dunckerstraße – len pár krokov od obľúbeného Helmholtzplatz. Byt sa nachádza v prízemí udržiavaného staršieho domu a ponúka obytnú plochu cca 93 m² a priestrannú záhradu s rozlohou cca 82 m². Predaj prebieha bez provízie priamo od vlastníka.
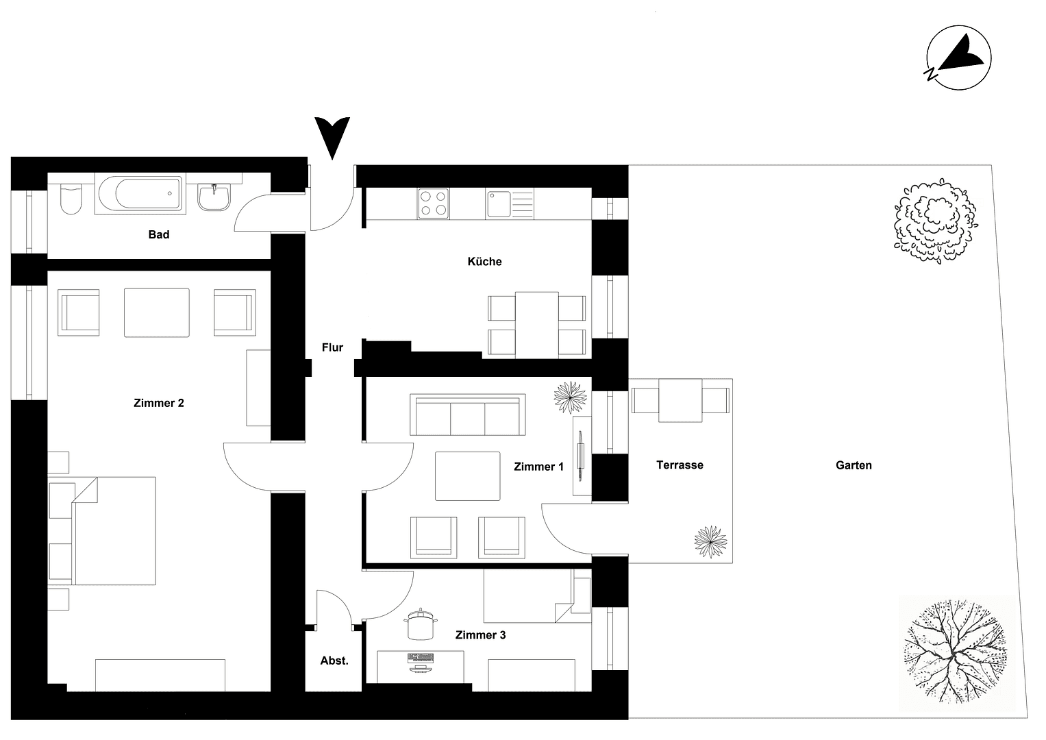
Aktuálny pôdorys:
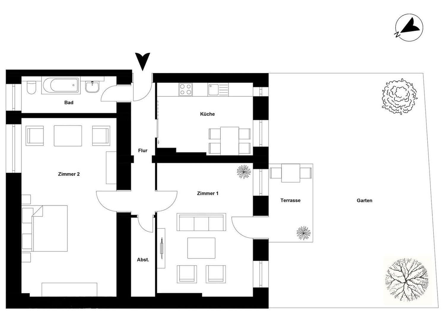
Byt je momentálne zariadený ako priestranný 2-izbový byt a disponuje obývacou izbou, spálňou, kuchyňou, kúpeľňou, úložným priestorom a záhradou. (Pozrite pôdorys a fotografie.)
Možnosti úprav:
Po rekonštrukcii by bolo možné premeniť byt na 3-izbový. Rovnako je možné vytvoriť otvorenú kuchyňu spojenú s obývacou izbou alebo realizovať iné individuálne priestorové koncepty.
Špeciálne výhody:
Hlavnou prednosťou tohto bytu je veľká záhrada – zelená oáza uprostred Berlín-Prenzlauer Berg, ideálna na oddych, záhradkárčenie alebo pre domáce zvieratá. Ideálne pre ľudí so psami, mačkami alebo inými zvieratami.
Bezbariérový prístup:
Byt je výborný pre páry, malé rodiny, seniorov alebo osoby s obmedzenou pohyblivosťou. Prístup je takmer bezbariérový – iba tri schody oddeľujú vstup do bytu, ktoré je možné prekonať aj s malou rampou.
Ďalšie výhody:
Okamžitá možnosť nasťahovania – ideálny na vlastné bývanie alebo ako investícia. Nový vlastník môže byt okamžite zaujať.
Lokalita – Život na Helmholtzplatz v Dunckerstraße:
Byt sa nachádza v žiadanej Dunckerstraße, len pár krokov od obľúbeného Helmholtzplatz – jednej z najpôvabnejších štvrti priamo v srdci Berlín-Prenzlauer Berg. Okolie je charakteristické historickými budovami, malými kaviarňami, butikmi, bio supermarketmi a živým životom štvrte. Helmholtzplatz je obľúbeným miestom stretávania rodín, kreatívnych ľudí a gurmánov a ponúka zelené plochy, ihriská aj výbornú infraštruktúru. Vďaka veľmi dobrej dostupnosti MHD (S-Bahn, U-Bahn, električka a autobus) sa centrum Berlína dosiahne za pár minút. Lokalita ideálne spája mestský život s uvoľnenou susedskou atmosférou.
Vybavenie:
• Udržiavaný starší dom s historickým šarmom (rok výstavby 1898)
• Terasa/záhrada. Záhrada o rozlohe 82 m² určená na výlučné užívanie
• Vybavená kuchyňa
• Veľmi dobré rozloženie miestností
• Kúpeľňa s denným svetlom a vaňou
• Laminátová podlaha
• Keller a úložný priestor v byte
• Centrálny plynový kúrenie
• Udržiavaný stav objektu
• Spoločné náklady: 350 €/mesiac
• Rezerva na údržbu: 138,90 €/mesiac
• Celková rezerva: cca 60 000 €
• Možnosť individuálneho usporiadania pôdorysu
• Okamžite k dispozícii
Energia:
Rok výstavby (podľa energetického preukazu): 1898
Koncová energetická náročnosť: 69 kWh(m²*a)
Energetický preukaz: Preukaz spotreby energie
Energetická trieda: B
Spotreba energie na ohrev vody zahrnutá
Spotreba energie: 69 kWh(m²*a)
Druh vykurovania: Centrálne kúrenie
Hlavné zdroje energie: Plyn
Pre otázky som Vám rád k dispozícii. Ďalšie fotografie, informácie a dokumentáciu poskytnem na požiadanie.
Parametre nehnuteľnosti
| Vek | Nad 50 rokov |
|---|---|
| Dispozícia | 2+1 |
| Úžitková plocha | 93 m² |
| Stav | Po rekonštrukcii |
|---|---|
| Číslo inzerátu | 975151 |
| Cena za jednotku | 7 194 € / m2 |
Čo táto nehnuteľnosť ponúka?
| MHD 3 minúty pešo |
| Terasa |
V okolí nehnuteľnosti nájdete
Stále hľadáte to pravé?
Nastavte si strážneho psa. Ponuky vybrané na mieru dostanete súhrnne 1× denne e-mailom. S Premium profilom máte po ruke rovno 5 strážcov a keď sa niečo objaví, informujú vás obratom.

























