
Predaj bytu 2+1 • 65 m² bez realitkyBerlin Friedrichshain Berlin 10245
DE:
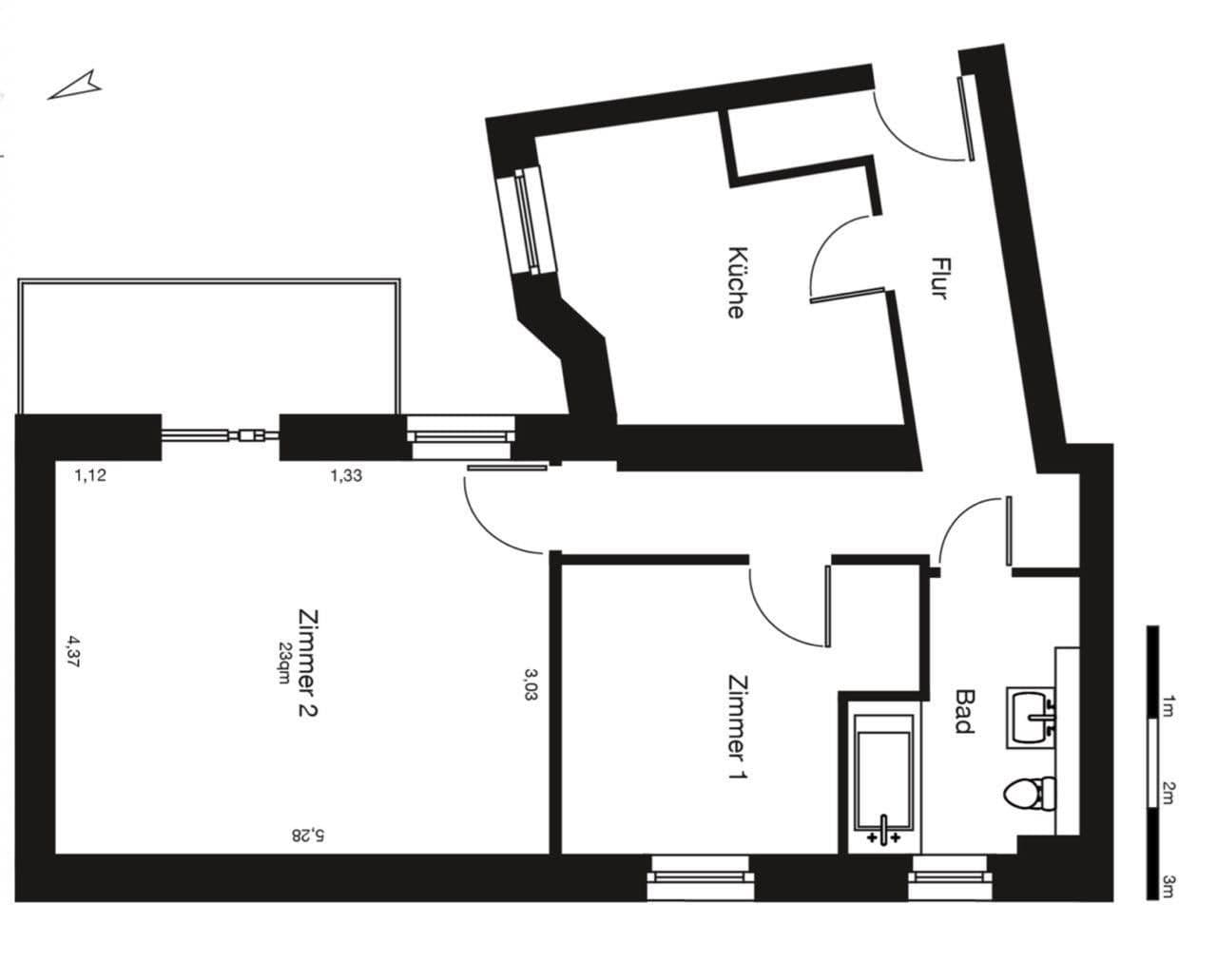
Tento kompletne zrekonštruovaný a zariadený byt v historickej budove o rozlohe približne 65 m² sa nachádza v prvom poschodí klasickej berlínskej viacrodinnej budovy. Spája historický šarm s moderným vybavením: vysoké stropy, pokojný výhľad na vnútorný dvor, elegantné parkety a kvalitný nábytok, čo z neho robí ideálny domov alebo atraktívnu investíciu. Byt je pripravený na nasťahovanie, kompletne zariadený a predávaný bez provízie.
EN:
Tento kompletne zrekonštruovaný a zariadený 65 m² Altbau byt sa nachádza v prvom poschodí klasickej berlínskej obytnosti. Spája historický šarm s modernými prvkami: vysoké stropy, výhľad na pokojný vnútorný dvor, parketové podlahy a starostlivo vybraný nábytok. Byt je pripravený na nasťahovanie, kompletne zariadený a predávaný bez provízie, ideálny ako bývanie pre vlastné potreby alebo investíciu.
DE:
Nachádza sa priamo v Simon-Dach-Kieze, jednej z najobľúbenejších lokalít vo Friedrichshaine. Boxhagener Platz, týždenné trhy, butiky, kaviarne a reštaurácie sú dostupné pešo. Výborné dopravné spojenie zabezpečujú metro, S-Bahn aj autobusové linky, ktoré sú v bezprostrednej blízkosti. Napriek centrálnej polohe je byt pokojne umiestnený v zadnej časti budovy.
EN:
Nachádza sa v srdci Simon-Dach-Kieze, jednej z najvyhľadávanejších lokalít vo Friedrichshaine. Len pár krokov od Boxhagener Platz, týždenných trhov, butikov, kaviarní a reštaurácií. Vynikajúce spojenie cez metro, S-Bahn a autobusové linky. Napriek centrálnej polohe je byt pokojne situovaný v zadnom nádvorí.
DE:
Byt je predávaný kompletne zariadený: patrí k nemu prispôsobená vstavaná kuchyňa, designerská sedačka, kvalitné textílie, kúpeľňa s vaňou a práčkou a balkónový nábytok. Celý inventár je zahrnutý v kúpnej cene. Interiér bol zariadený s veľkou láskou k detailom – stačí sa nasťahovať a okamžite sa cítiť ako doma.
EN:
Byt je predávaný kompletne zariadený, vrátane prispôsobenej vstavané kuchyne, designerskej sedačky, kvalitných textílií, kúpeľne s vaňou a práčkou a balkónového nábytku. Celý inventár je zahrnutý v cene. Interiér bol navrhnutý s mimoriadnou pozornosťou k detailom a je pripravený na nasťahovanie – stačí sa presťahovať a hneď sa cítiť ako doma.
Parametre nehnuteľnosti
| Vek | Nad 50 rokov |
|---|---|
| Dispozícia | 2+1 |
| Číslo inzerátu | 971047 |
| Úžitková plocha | 65 m² |
| Stav | Po rekonštrukcii |
|---|---|
| Poschodie | 1. poschodie z 5 |
| PENB | E - Nehospodárne |
| Cena za jednotku | 8 462 € / m2 |
Čo táto nehnuteľnosť ponúka?
| Balkón | |
| MHD 3 minúty pešo |
| Pivnica |
V okolí nehnuteľnosti nájdete
Stále hľadáte to pravé?
Nastavte si strážneho psa. Ponuky vybrané na mieru dostanete súhrnne 1× denne e-mailom. S Premium profilom máte po ruke rovno 5 strážcov a keď sa niečo objaví, informujú vás obratom.

























